前へ
次へ
前へ
次へ
マンション

マチュリティ小石川(201)

27.5 万円
共益費 10,000
27.5万円
27.5万円
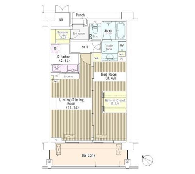
間取り
1LDK
専有面積
56.33㎡
所在階
5階建ての2階
向き
  • アイコン: 住所 東京都文京区春日2丁目
  • アイコン: 交通 東京メトロ丸ノ内線 「茗荷谷駅」 徒歩11分 / 東京メトロ南北線 「後楽園駅」 徒歩15分 / 都営三田線 「春日駅」 徒歩15分
簡単無料
アイコン: お電話 0037-6001-06881
IP電話ご利用のお客様 : 03-3381-7770
ピタットハウス
中野南口店
お気軽にお問い合わせください!
簡単無料
お気軽にお問い合わせください!
物件情報・周辺環境・契約手続きについてなどお気軽にお問い合わせください。

設備・条件

建物・立地
  • エレベータ
  • 宅配ボックス
  • フロントサービス
  • 敷地内ごみ置き場
  • 常時ゴミ出し可能
  • バイク置場
通信
  • インターネット対応
  • CATV
  • BSアンテナ
  • CSアンテナ
セキュリティ
  • オートロック
  • モニタ付オートロック
部屋設備
  • バルコニー
  • 室内洗濯機置場
冷暖房
  • エアコン
キッチン
  • システムキッチン
  • IHコンロ
  • グリル
バス・トイレ
  • バス・トイレ別
  • 浴室乾燥機
  • 追い焚き風呂
特徴
  • ペット相談可
  • ピアノ相談可
  • 事務所利用不可

物件概要

物件種別

部屋種別 マンション
建物名称 マチュリティ小石川(201)
所在地 東京都文京区春日2丁目 MAP
築年月 2006年3月 階数 5階建ての2階
建物構造 鉄筋コンクリート造 総戸数 -
間取り 1LDK 専有面積 56.33㎡
向き バルコニー面積 12.00㎡
その他 管理形態:日勤管理 

費用

賃料 27.5万円 初期費用の確認をする 初期費用の確認をする 共益費 10,000円
礼金 27.5万円 敷金 27.5万円
保証金 - 償却金 -
その他一時金 室内清掃費:105337円 / 鍵交換費:33000円
その他月額費用 口座振替事務手数料:220円/月
住宅保険 要加入
保証会社 必須
保証会社補足 初回保証委託料(最低15,000円):月額賃料等の50%、 2年目以降:10,000円/年
更新料 - 更新事務手数料 -
その他 本物件は、「仲介物件」です。ご成約の際には仲介手数料を申し受けます。

契約条件

貸家契約区分 定期賃貸借 契約期間 2年
入居可能日 2026年6月30日予定 空室状況を確認をする 空室状況を確認をする 引渡時期相談内容 -
フリーレント -
クレジットカード決済 -

駐車場

駐車場 なし 駐車場について質問する 駐車場について質問する
駐車場契約形態 -
駐車場備考 -
バイク置き場 -
駐輪場 -

備考

その他
関連リンク
取引態様 媒介 管理コード 4688859
情報登録(更新)日 2026年5月29日 次回更新予定日 2026年6月6日
備考 めやす賃料:

めやす賃料とは賃料、共益費・管理費、敷引金、更新料を含み、賃料等条件の改定がないものと仮定して4年間賃借した場合(定期借家の場合は契約期間)の1ヶ月当たりの金額です。

※敷引金は、敷金の償却、保証金の償却など、預かった金額から必ず引くものをいいます。
※めやす賃料は、消費者に適切な情報を提供するための表示であり事業者に一時金を推奨するものではありません。
※めやす賃料は、実際の総支払額と異なる場合があります。詳しくは不動産会社にご確認ください。  

取扱店舗

ピタットハウス中野南口店
ピタットハウス中野南口店
株式会社松崎ハウジング
交通
JR中央線・東京メトロ東西線中野駅南口より徒歩1分
営業時間
10:00 〜 18:00
定休日
毎週水曜日・臨時休業:6/1〜6/3
お電話 0037-6001-06881 無料
メール お問い合わせ
  • お問い合わせ区分

  • 内見希望日時

    第一希望

    第二希望

  • お名前

    全角
  • ご希望の連絡方法

    メールアドレス

    電話番号

    半角
    半角
  • その他ご希望等

ピタットハウスの個人情報の取り扱いについて

ピタットハウスでは信頼されるサイトを目指して、物件情報の精度向上に努めています。
掲載物件に誤りがある場合は こちら からご連絡ください。現状と異なる場合は、現状を優先させていただきます。
取引態様の欄に「媒介」と表示された物件は「仲介物件」です。ご成約の際には仲介手数料を申し受けます。

その他の取扱店舗

不動産会社毎に募集条件等が異なる場合があります。詳細は各店の物件詳細ページにてご確認ください。
交通
JR線「新宿」駅西口より徒歩6分、都営大江戸線「新宿西口」駅D5出口より徒歩2分
営業時間
09:30 〜 18:30
定休日
毎週水曜日・2月3月は無休、夏季休暇無し・年末年始
お電話 0037-6001-05237 無料
交通
東京メトロ東西線 木場駅 4A出口 徒歩1分
営業時間
10:00 〜 17:00
定休日
毎週土日・祝祭日
  • 近隣駐車場あり
お電話 0037-6001-05750 無料
交通
東京メトロ丸ノ内線 方南町駅 東改札2番出口を出てから徒歩1分
営業時間
09:00 〜 18:00
定休日
毎週水曜日
お電話 0037-6001-05701 無料
交通
JR中央線 『武蔵境駅』 南口より 徒歩30秒 駐車場有 
営業時間
10:00 〜 19:00
定休日
毎週水曜日・冬期休業・12/28から1/4まで
  • 近隣駐車場あり/キッズスペースあり
お電話 0037-6001-08163 無料

生活情報

文京区の暮らしデータ

文京区は、東京23区の中心部に位置し、由緒ある寺社、歴史を語る建造物等が数多く残るほか、江戸の大名屋敷庭園の面影を残す庭園もあります。また、明治時代には東京大学をはじめ多くの学校がつくられ、さらに、森鴎外、夏目漱石、樋口一葉、石川啄木など多くの文人ゆかりの地であり、緑豊かな文化の薫り高いまちとして発展してきました。

基本データ

市区役所所在地 文京区春日1-16-21
公式ホームページURL https://www.city.bunkyo.lg.jp/
総人口 240,069人
人口増減率(2015年/2020年) 109.3%
文京区の生活情報を詳しくみる

地域のおすすめ情報ブログ

一覧を見る

茗荷谷駅近隣の駅から探す

文京区の近隣エリアから探す

FAQ

  • A. マチュリティ小石川(ZZ4688859_28)の内見は、見学予約でお問い合わせいただくか、直接中野南口店(0037-6001-06881)までご連絡ください。
  • A. 可能です。マチュリティ小石川(ZZ4688859_28)周辺の情報は、ピタットハウスの地域情報ブログ「街ピタ」住みたい街の暮らしデータをご活用ください。
  • A. マチュリティ小石川(ZZ4688859_28)の費用は、こちらよりお問い合わせいただくか、直接中野南口店(0037-6001-06881)までご連絡ください。
  • A. はい、可能です。賃貸希望物件リクエストをご利用ください。マチュリティ小石川(ZZ4688859_28)に似た物件も合わせてご紹介させていただきます。