賃貸マンション
ソフィア東松原
NEW-
東京都世田谷区松原5丁目 MAP
-
- 京王井の頭線 「東松原駅」 徒歩1分 / 京王井の頭線 「新代田駅」 徒歩7分 / 小田急小田原線 「世田谷代田駅」 徒歩11分
- 築年月
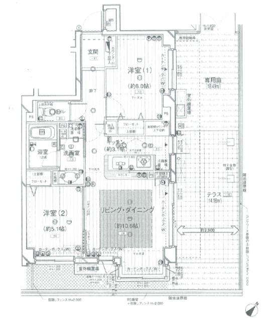
- 2000年3月
- 構造
- 鉄筋コンクリート造
- 階数/戸数
- 地上3階建て / 15戸
- 管理形態
- -
- 建物設備
- オートロック/宅配BOX/外壁タイル張り/分譲マンションタイプ
- 管理会社
- -
- 施工会社
- -
更新日:2025年12月26日
ソフィア東松原の他の空室物件
1
件
お問い合わせお待ちしております!
周辺環境
-
世田谷区立代田図書館:632m -
トップパルケ松原店:133m -
ココカラファイン東松原店:104m
- コンビニ
-
ローソン・スリーエフ東松原駅前店90m
- 買物
-
トップパルケ松原店133m
- ショッピング施設
-
渋谷パルコ4622m
- ドラッグストア
-
ココカラファイン東松原店104m
- ホームセンター
-
スーパーバリューロピア松原店1508m
- 病院
-
東京リハビリテーションセンター世958m
- 役所
-
世田谷区北沢総合支所1637m
- 郵便局
-
東松原駅前郵便局58m
- 図書館
-
世田谷区立代田図書館632m
- 交番
-
北沢警察署611m
- 公園
-
羽根木小緑地358m
- 銀行
-
城南信用金庫世田谷支店771m
- 幼稚園
-
認定こども園羽根木こども園180m
- 小学校
-
世田谷区立松原小学校676m
- 中学校
-
世田谷区立梅丘中学校545m
- 高校
-
私立日本学園高校999m
ソフィア東松原の近隣物件
生活情報
世田谷区の暮らしデータ
世田谷区は、23区中の西南端にあり、東は目黒区・渋谷区、北は杉並区・三鷹市、西は狛江市・調布市、南は大田区とそれぞれ接し、さらに多摩川をはさんで神奈川県川崎市と向かい合っています。現在約91万人の住む住宅都市となり、開発が進む中、緑化の推進や環境保全など、潤いのあるまちづくりに取り組んでいます。
基本データ
| 市区役所所在地 | 世田谷区世田谷4-21-27 |
|---|---|
| 公式ホームページURL | https://www.city.setagaya.lg.jp// |
| 総人口 | 943,664人 |
| 人口増減率(2015年/2020年) | 104.5% |
地域のおすすめ情報ブログ
一覧を見る
-
奥沢の素敵なギャラリーのご紹介です♪こんにちは!ピタットハウス店の神田です!今日は、自由が丘・奥沢にある「galleryms+w」というギャラリーをご紹介します。店...続きを読む -
都内唯一の渓谷で森林浴はいかが?世田谷区にある等々力渓谷は、都内で草木と川のマイナスイオンを感じられる癒しスポットです。令和5年7月に倒木が発生したため、一部の...続きを読む -
昼と夜で楽しめる二つの顔先日、ずっと気になっていた「ひるがお駒沢大学店」に行ってきました。駒沢大学駅から歩いて15分程度、ラーメン好きの間では有名なお店...続きを読む -
多種多様な遊具のある広々とした公園こんにちは!調布店の曽根です。今回は住宅街の中にある大きく遊具も充実した「上祖師谷一丁目公園」をご紹介します!鉄棒や滑り台、ブラ...続きを読む
取扱店舗
スターツピタットハウス株式会社
- 交通
- 京王線・井の頭線明大前駅改札より正面方向へ約10m正面ビルの3階となります。
- 営業時間
- 10:00 〜 18:00
- 定休日
- 毎週水・木曜日・冬季休業:12/28(日)〜1/3(土)