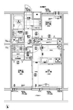
賃貸マンション
ステラメゾン下北沢
-
東京都世田谷区代田5丁目 MAP
-
- 京王井の頭線 「下北沢駅」 徒歩1分 / 小田急小田原線 「世田谷代田駅」 徒歩8分 / 京王井の頭線 「新代田駅」 徒歩8分
- 築年月
- 2000年12月
- 構造
- 鉄筋コンクリート造
- 階数/戸数
- 地上4階建て / -
- 管理形態
- -
- 建物設備
- オートロック/宅配BOX/外壁タイル張り
- 管理会社
- -
- 施工会社
- -
更新日:2026年3月29日
ステラメゾン下北沢の他の空室物件
1
件
お問い合わせお待ちしております!
周辺環境
-
ローソン下北沢駅西口店:123m -
成城石井下北沢西口店:87m -
世田谷区立下北沢小学校:769m -
世田谷区北沢総合支所:619m -
世田谷北沢郵便局:438m -
世田谷区立代田図書館:643m -
医療法人社団青泉会下北沢病院:683m
- コンビニ
-
ローソン下北沢駅西口店123m
- 買物
-
成城石井下北沢西口店87m
- ショッピング施設
-
渋谷パルコ3738m
- ドラッグストア
-
-
- ホームセンター
-
ノジマレシピ下北沢店300m
- 病院
-
医療法人社団青泉会下北沢病院683m
- 役所
-
世田谷区北沢総合支所619m
- 郵便局
-
世田谷北沢郵便局438m
- 図書館
-
世田谷区立代田図書館643m
- 交番
-
北沢警察署1456m
- 公園
-
羽根木小緑地1067m
- 銀行
-
みずほ銀行北沢支店300m
- 幼稚園
-
スマイルキッズドレミファ保育園181m
- 小学校
-
世田谷区立下北沢小学校769m
- 中学校
-
私立下北沢成徳中学校520m
- 高校
-
私立下北沢成徳高校474m
ステラメゾン下北沢の近隣物件
生活情報
世田谷区の暮らしデータ
世田谷区は、23区中の西南端にあり、東は目黒区・渋谷区、北は杉並区・三鷹市、西は狛江市・調布市、南は大田区とそれぞれ接し、さらに多摩川をはさんで神奈川県川崎市と向かい合っています。現在約92万人の住む住宅都市となり、開発が進む中、緑化の推進や環境保全など、潤いのあるまちづくりに取り組んでいます。
基本データ
| 市区役所所在地 | 世田谷区世田谷4-21-27 |
|---|---|
| 公式ホームページURL | https://www.city.setagaya.lg.jp// |
| 総人口 | 943,664人 |
| 人口増減率(2015年/2020年) | 104.5% |
地域のおすすめ情報ブログ
一覧を見る
-
奥沢の素敵なギャラリーのご紹介です♪こんにちは!ピタットハウス店の神田です!今日は、自由が丘・奥沢にある「galleryms+w」というギャラリーをご紹介します。店...続きを読む -
都内唯一の渓谷で森林浴はいかが?世田谷区にある等々力渓谷は、都内で草木と川のマイナスイオンを感じられる癒しスポットです。令和5年7月に倒木が発生したため、一部の...続きを読む -
昼と夜で楽しめる二つの顔先日、ずっと気になっていた「ひるがお駒沢大学店」に行ってきました。駒沢大学駅から歩いて15分程度、ラーメン好きの間では有名なお店...続きを読む -
多種多様な遊具のある広々とした公園こんにちは!調布店の曽根です。今回は住宅街の中にある大きく遊具も充実した「上祖師谷一丁目公園」をご紹介します!鉄棒や滑り台、ブラ...続きを読む
取扱店舗
株式会社西武住宅
- 交通
- 下北沢で創業40年。下北沢駅西口出て左に徒歩10秒。賃貸も売買も、様々な物件を数多く取揃えてお客様のご来店をお待ちしております。
- 営業時間
- 10:00 〜 19:00
- 定休日
- 毎週水曜日・12月27日〜1月4日まで年末年始休業・GW休暇、夏期休暇、冬期休暇