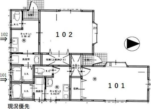
賃貸アパート
サラティ2
NEW-
愛知県安城市大山町2丁目 MAP
-
- 名鉄西尾線 「南安城駅」 徒歩15分 / JR東海道本線 「安城駅」 徒歩20分 / 名鉄西尾線 「碧海古井駅」 徒歩20分
- 築年月
- 2008年3月
- 構造
- 木造
- 階数/戸数
- 地上1階建て / -
- 管理形態
- -
- 建物設備
- -
- 管理会社
- -
- 施工会社
- -
更新日:2026年4月19日
サラティ2の他の空室物件
1
件
お問い合わせお待ちしております!
周辺環境
-
業務スーパー 安城店:1054m -
安城フランテ館:903m
- コンビニ
-
-
- 買物
-
業務スーパー 安城店1054m
- ショッピング施設
-
-
- ドラッグストア
-
-
- ホームセンター
-
-
- 病院
-
-
- 役所
-
-
- 郵便局
-
-
- 図書館
-
-
- 交番
-
-
- 公園
-
-
- 銀行
-
-
- 幼稚園
-
-
- 小学校
-
-
- 中学校
-
-
- 高校
-
-
サラティ2の近隣物件
生活情報
安城市の暮らしデータ
安城市は名古屋市から約30kmの位置にある人口約19万人の都市です。明治用水の豊かな水資源を活かした農業が盛んで、「日本デンマーク」と呼ばれるほど農業先進都市として発展してきました。現在も市域の4割を占める田畑での農業とともに、自動車関連産業をはじめとする大企業が集積するほか、2025年4月には「三井ショッピングパーク ららぽーと安城」が開業するなど、農・工・商のバランスが取れたまちづくりが進んでいます。交通面ではJR東海道本線や名鉄線、新幹線の三河安城駅があり、名古屋市や豊田市へのアクセスも良好です。医療・教育機関も充実し、子育て世代から高齢者まで安心して暮らせる環境が整っています。
基本データ
| 市区役所所在地 | 安城市桜町18-23 |
|---|---|
| 公式ホームページURL | https://www.city.anjo.aichi.jp// |
| 総人口 | 187,990人 |
| 人口増減率(2015年/2020年) | 102.1% |
取扱店舗
株式会社ウエルカムコーポレーション
- 交通
- 東海道新幹線「三河安城」駅南口徒歩1分、駐車場4台有
- 営業時間
- 10:00 〜 19:00
- 定休日
- 毎週水曜日