前へ
次へ
前へ
次へ
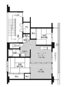
賃貸マンション

ビレッジハウス洲本2号棟

NEW
築年月
1999年11月
構造
鉄筋コンクリート造
階数/戸数
地上5階建て / -
管理形態
-
建物設備
-
管理会社
-
施工会社
-
更新日:2026年1月24日

ビレッジハウス洲本2号棟の他の空室物件

1

周辺環境

  • すき家 洲本桑間店:1038m
    すき家 洲本桑間店:1038m
  • ワークマンプラス 洲本店:1134m
    ワークマンプラス 洲本店:1134m
  • 業務スーパー洲本店:1290m
    業務スーパー洲本店:1290m
  • ファッションセンターしまむら洲本店:2407m
    ファッションセンターしまむら洲本店:2407m
  • マルナカ 物部店:2553m
    マルナカ 物部店:2553m
  • ファミリーマート 洲本宇原店:3477m
    ファミリーマート 洲本宇原店:3477m
コンビニ
ファミリーマート 洲本宇原店
3477m
買物
業務スーパー洲本店
1290m
ショッピング施設
ワークマンプラス 洲本店
1134m
ドラッグストア
-
ホームセンター
-
病院
-
役所
-
郵便局
-
図書館
-
交番
-
公園
-
銀行
-
幼稚園
-
小学校
-
中学校
-
高校
-

生活情報

洲本市の暮らしデータ

洲本市は、大阪湾から瀬戸内海に至る地域に位置し、温暖で暮らしやすい気候です。豊かな自然と歴史、文化を誇り、本州と四国を結ぶ「神戸淡路鳴門自動車道」が走る交通の要衝に位置する淡路島の中核として、島内外の人・もの・情報が集まる人口約4.1万人の淡路島の中心都市となっています。

基本データ

市区役所所在地 洲本市本町3-4-10
公式ホームページURL https://www.city.sumoto.lg.jp//
総人口 41,236人
人口増減率(2015年/2020年) 93.2%
洲本市の生活情報を詳しくみる

取扱店舗

株式会社ライブデザイン
交通
全線三宮駅北側 徒歩1分 フラワーロード東沿いです。
営業時間
09:00 〜 19:00
定休日
年末年始