駐車場
ミモアート
NEW-
兵庫県姫路市白浜町神田2丁目 MAP
-
- 山陽電鉄本線 「白浜の宮駅」 徒歩15分 / 山陽電鉄本線 「妻鹿駅」 徒歩34分 / JR山陽本線 「姫路駅」 バス20分 「神田二丁目」 徒歩3分
- 築年月
- 2010年8月
- 構造
- 木造
- 階数/戸数
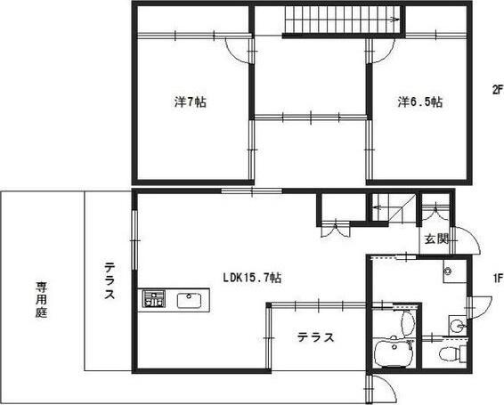
- 地上2階建て / -
- 管理形態
- -
- 建物設備
- オール電化
- 管理会社
- -
- 施工会社
- -
更新日:2026年4月30日
ミモアートの他の空室物件
1
件
周辺環境
-
ローソン 姫路白浜町寺家店:758m -
ボンマルシェ 白浜店:764m -
マルアイ 白浜店:992m -
セブンイレブン 姫路白浜町北店:1100m -
ハウジングランドいない 姫路東山店:991m -
姫路白浜北郵便局:765m
- コンビニ
-
ローソン 姫路白浜町寺家店758m
- 買物
-
ボンマルシェ 白浜店764m
- ショッピング施設
-
-
- ドラッグストア
-
-
- ホームセンター
-
ハウジングランドいない 姫路東山991m
- 病院
-
-
- 役所
-
-
- 郵便局
-
姫路白浜北郵便局765m
- 図書館
-
-
- 交番
-
-
- 公園
-
-
- 銀行
-
-
- 幼稚園
-
-
- 小学校
-
-
- 中学校
-
-
- 高校
-
-
生活情報
姫路市の暮らしデータ
姫路市は、兵庫県の南西部に位置し、広大な播磨平野の中心にある播磨の中核都市です。古くから交通の要衝として発展し、播磨地方の政治・経済・文化の中心地として栄えてきました。世界遺産・国宝姫路城など数多くの歴史的資源をはじめ、市内の各地域に伝わる祭り、地場産業など個性あふれる多彩な地域資源が今も息づいています。また、2025年2月にブランドメッセージを策定し、シビックプライドの醸成及び都市イメージの向上を図っています。
基本データ
| 市区役所所在地 | 姫路市安田4-1 |
|---|---|
| 公式ホームページURL | https://www.city.himeji.lg.jp// |
| 総人口 | 530,495人 |
| 人口増減率(2015年/2020年) | 99.0% |
取扱店舗
株式会社ライブデザイン
- 交通
- JR姫路駅中央改札口を南側へ ホテル日航姫路1Fにございます。徒歩約2分姫路駅までお出迎え致します。
- 営業時間
- 09:00 〜 19:00
- 定休日
- 年末年始