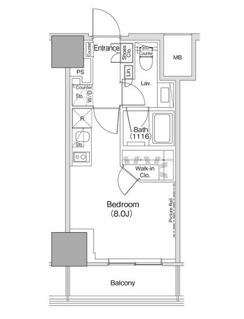
賃貸マンション
ザ・パークハビオ荏原中延駅前
-
東京都品川区東中延1丁目 MAP
-
- 東急池上線 「荏原中延駅」 徒歩1分 / 都営浅草線 「中延駅」 徒歩7分
- 築年月
- 2023年1月
- 構造
- 鉄筋コンクリート造
- 階数/戸数
- 地上13階建て / -
- 管理形態
- -
- 建物設備
- オートロック/宅配BOX
- 管理会社
- -
- 施工会社
- -
更新日:2025年10月14日
ザ・パークハビオ荏原中延駅前の他の空室物件
1
件

お問い合わせお待ちしております!
周辺環境
- コンビニ
-
コンビニ45m
- 買物
-
スーパー361m
- ショッピング施設
-
-
- ドラッグストア
-
ドラッグストア197m
- ホームセンター
-
-
- 病院
-
-
- 役所
-
-
- 郵便局
-
-
- 図書館
-
-
- 交番
-
-
- 公園
-
-
- 銀行
-
-
- 幼稚園
-
-
- 小学校
-
-
- 中学校
-
-
- 高校
-
-
ザ・パークハビオ荏原中延駅前(809)の近隣物件
生活情報
品川区の暮らしデータ
品川区は、東京都の南東部に位置し、東京湾に面する臨海部と山の手に連なる台地から形成され、面積は22.85km2で23区では平均的な広さです。人口は約40万人余りで、1964年をピークに減少していましたが、1998年以降は増加に転じています。
基本データ
市区役所所在地 | 品川区広町2-1-36 |
---|---|
公式ホームページURL | https://www.city.shinagawa.tokyo.jp// |
総人口 | 422,488人 |
人口増減率(2015年/2020年) | 109.2% |
地域のおすすめ情報ブログ
一覧を見る
-
心あたたまるパン屋さん本日は、東急池上線・荏原中延駅のすぐ目の前にあるパン屋さんをご紹介します。惣菜パンから菓子パンまで、バラエティ豊かにそろった、ど...続きを読む
-
日本考古学発祥の地こんにちは!ピタットハウス蒲田店です。今回は、歴史好きの方にもファミリーにもおすすめのスポット「大森貝塚庭園」をご紹介します。大...続きを読む
-
坂本龍馬の息吹こんにちは!ピタットハウス蒲田店です。本日は立会川にある坂本龍馬像についてお話します♪薩長同盟や大政奉還の実現に尽力し、幕末の志...続きを読む
-
変わらぬ味のおでん屋さんこんにちは、五反田店の武田です。今回紹介するのは、戸越駅から徒歩6分の場所にお店を構える、「後藤かまぼこ店」です。創業は65年!...続きを読む
取扱店舗

株式会社スバル
- 交通
- 都営浅草線 戸越駅 徒歩1分 東急池上線 戸越銀座駅 徒歩3分
- 営業時間
- 10:00 〜 19:00
- 定休日
- 「毎週水曜日」