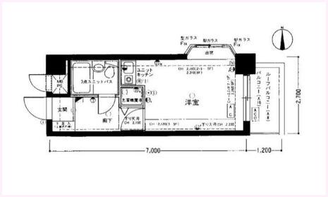
賃貸マンション
ライオンズマンション桜ヶ丘駅前
NEW-
神奈川県大和市福田1丁目 MAP
-
- 小田急江ノ島線 「桜ヶ丘駅」 徒歩4分 / 小田急江ノ島線 「高座渋谷駅」 徒歩28分
- 築年月
- 1988年8月
- 構造
- 鉄筋コンクリート造
- 階数/戸数
- 地上6階建て / -
- 管理形態
- -
- 建物設備
- オートロック/宅配BOX/分譲マンションタイプ
- 管理会社
- -
- 施工会社
- -
更新日:2026年1月11日
ライオンズマンション桜ヶ丘駅前の他の空室物件
1
件
お問い合わせお待ちしております!
周辺環境
-
横浜市瀬谷区役所:3987m -
大和桜ヶ丘郵便局:348m -
医療法人社団哺育会桜ヶ丘中央病院:223m -
平塚信用金庫桜ヶ丘支店:58m -
いなげやina21大和桜ヶ丘店:340m -
ローソン小田急桜ケ丘店:96m -
マルイファミリー海老名:8497m -
私立フェリス女学院大学緑園キャンパス:6965m -
TSUTAYA下瀬谷店:2049m
- コンビニ
-
ローソン小田急桜ケ丘店96m
- 買物
-
いなげやina21大和桜ヶ丘店340m
- ショッピング施設
-
マルイファミリー海老名8497m
- ドラッグストア
-
くすりのオダギリ桜ケ丘店132m
- ホームセンター
-
島忠ホームズ大和店1084m
- 病院
-
医療法人社団哺育会桜ヶ丘中央病院223m
- 役所
-
横浜市瀬谷区役所3987m
- 郵便局
-
大和桜ヶ丘郵便局348m
- 図書館
-
大和市立図書館2407m
- 交番
-
大和警察署2030m
- 公園
-
緑の広場45号880m
- 銀行
-
平塚信用金庫桜ヶ丘支店58m
- 幼稚園
-
桜ヶ丘はないろ保育園415m
- 小学校
-
大和市立桜丘小学校686m
- 中学校
-
大和市立引地台中学校1309m
- 高校
-
神奈川県立大和南高校1848m
ライオンズマンション桜ヶ丘駅前の近隣物件
生活情報
大和市の暮らしデータ
大和市は、人口約24万人、面積約27km2で、都心から40km圏内にあり、神奈川県のほぼ中央に位置しています。3つの鉄道が東西南北に走り、道路網も国道16号線、246号線および467号線のほか県道4線が縦横に走り、交通の利便性に恵まれたとても便利なまちです。
基本データ
| 市区役所所在地 | 大和市下鶴間1-1-1 |
|---|---|
| 公式ホームページURL | https://www.city.yamato.lg.jp// |
| 総人口 | 239,169人 |
| 人口増減率(2015年/2020年) | 102.7% |
地域のおすすめ情報ブログ
一覧を見る
-
追い求めていたチャーシュー追い求めていたチャーシューがこんなところに!?ラーメン小川で感動の一杯〇選べる楽しさ-2つの味のこだわりメニュー看板には「選べる...続きを読む -
【純度100%豚骨】横浜家系ラーメン今日は、神奈川県民のソウルフードとも言える「横浜家系ラーメン」の中でも、特にこだわり抜かれた一杯を提供する「壱六家(いちろくや)...続きを読む -
和菓子 みどりや さんへ行ってきました!お目当てはもちろん、季節の名物いちご大福この時期になるとどうしても食べたくなってしまう一品です。伺ったのは14時ごろ。すでに“大...続きを読む -
洋麺屋 五右衛門、ついに大和へ!五右衛門のパスタ、久しぶりに行ってきました!学生のころや若い時代によく通っていたお店なので、メニューを見るだけで懐かしさがぶわっ...続きを読む
取扱店舗
株式会社ゼフィール
- 交通
- 小田急江ノ島線・相鉄いずみ野線・横浜市営地下鉄:湘南台駅から徒歩2分♪
- 営業時間
- 09:30 〜 18:30
- 定休日
- 火曜日、水曜日