賃貸アパート
STREET82万屋
NEW-
鹿児島県奄美市笠利町大字万屋 MAP
-
- しまバス 万屋 1分
- 築年月
- 2026年7月
- 構造
- 木造
- 階数/戸数
- 地上2階建て / 2戸
- 管理形態
- 自主管理
- 建物設備
- -
更新日:2026年4月24日
STREET82万屋の他の空室物件
1
件
お問い合わせお待ちしております!
STREET82万屋の特徴
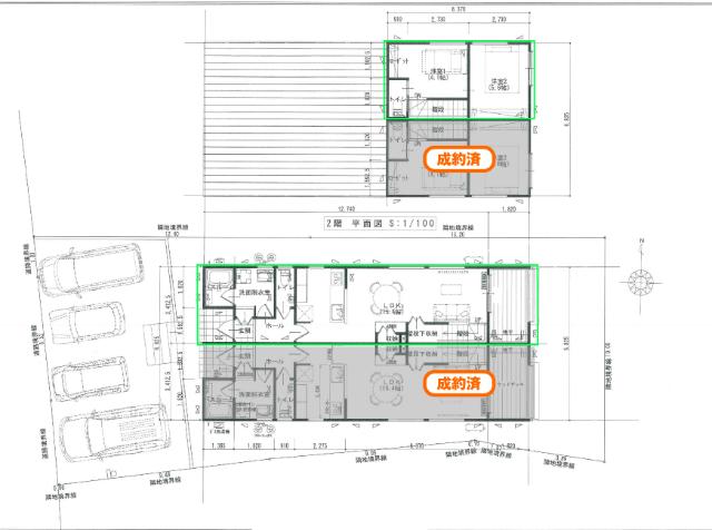
新築2DK・残り1室!空港近くで通勤・通学に便利な立地です。駐車場2台付きでファミリーや共働き世帯にもおすすめ。システムキッチン・エアコン・洗浄便座・照明完備で新生活もすぐスタート可能。ペット相談可なのも嬉しいポイント。ウッドデッキ付きで、ゆったりとした時間を楽しめます。
掲載内容につきましては、登録時と情報が変わっている可能性があります。現況と異なる場合は、現況を優先させていただきます。
周辺環境
- コンビニ
-
島人mart笠利店8603m
- 買物
-
A・コープ笠利店3578m
- ショッピング施設
-
-
- ドラッグストア
-
-
- ホームセンター
-
-
- 病院
-
社会医療法人鹿児島愛心会笠利病院4392m
- 役所
-
-
- 郵便局
-
宇宿郵便局804m
- 図書館
-
-
- 交番
-
-
- 公園
-
奄美市太陽が丘総合運動公園1810m
- 銀行
-
奄美大島信用金庫笠利支店4706m
- 幼稚園
-
奄美市立宇宿保育所1233m
- 小学校
-
奄美市立宇宿小学校998m
- 中学校
-
奄美市立赤木名中学校4206m
- 高校
-
鹿児島県立大島北高校4414m
生活情報
奄美市の暮らしデータ
奄美市は、2006年3月20日に名瀬市、住用村、笠利町の3市町村の合併により誕生しました。鹿児島から南に約380kmに位置し、奄美群島における観光・産業・福祉・医療・教育等の中核を担う都市です。亜熱帯海洋性気候で、四季を通じ温暖多湿です。1,300年余の伝統を持つ本場奄美大島紬の「紬の里」で、黒糖焼酎づくりも盛んです。豊かな自然環境や貴重な動植物、島唄など独自の地域文化を有しています。また、2021年7月には世界自然遺産への登録を受けました。
基本データ
| 市区役所所在地 | 奄美市名瀬幸町25-8 |
|---|---|
| 公式ホームページURL | https://www.city.amami.lg.jp// |
| 総人口 | 41,390人 |
| 人口増減率(2015年/2020年) | 95.9% |
地域のおすすめ情報ブログ
一覧を見る
-
宿 オーシャンフロントの大型貸切宿奄美大島・笠利町の海を目前に望むオーシャンフロントヴィラ「HarbourfrontJIRAMA」は、潮の満ち引きや空の色の変化を...続きを読む -
宿 空港近くで海と星空を眺めるバルコニー奄美空港から車で約5分。奄美大島北部・笠利町に佇む「海を眺める庭とバルコニーキース・ヴィラ・コドマリ」は、オーシャンビューとプラ...続きを読む -
絶景の海を一望できるカフェ兼観光案内所みしょらんCafe(ミショランカフェ)は、鹿児島県奄美大島の「あやまる岬観光公園」内にある、絶景の海を一望できるカフェ兼観光案内...続きを読む -
奄美に到着してすぐ絶景が楽しめるスポットあやまる岬観光公園は、奄美大島最北端(奄美市笠利町)の太平洋に突き出した「あやまる岬」にある景勝地・総合公園です。奄美十景の一つ...続きを読む
取扱店舗
深田建設株式会社
- 交通
- 鹿児島県奄美大島名瀬鳩浜町の県道81号線沿いドラッグイレブン向かい側
- 営業時間
- 09:00 〜 17:00
- 定休日
- 毎週日曜日・祝祭日・年末休12/26(土)〜1/4(月)