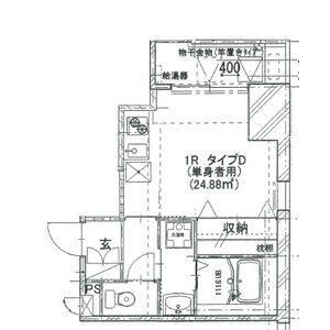
賃貸マンション
ラ・ルーシュ泉
NEW-
愛知県名古屋市東区泉1丁目 MAP
-
- 名古屋市桜通線 「高岳駅」 徒歩3分 / 名古屋市名城線 「久屋大通駅」 徒歩6分 / 名古屋市東山線 「栄駅」 徒歩12分
- 築年月
- 2008年9月
- 構造
- 鉄筋コンクリート造
- 階数/戸数
- 地上11階建て / 43戸
- 管理形態
- -
- 建物設備
- オートロック/24時間セキュリティ/宅配BOX
- 管理会社
- -
- 施工会社
- -
更新日:2026年3月21日
ラ・ルーシュ泉の他の空室物件
1
件
お問い合わせお待ちしております!
周辺環境
-
ローソン東区高岳店:112m -
成城石井栄セントラルパーク店:745m -
KoKuMiNセントラルパーク店:652m
- コンビニ
-
ローソン東区高岳店112m
- 買物
-
成城石井栄セントラルパーク店745m
- ショッピング施設
-
-
- ドラッグストア
-
KoKuMiNセントラルパーク店652m
- ホームセンター
-
-
- 病院
-
医療法人すみれ会中央病院487m
- 役所
-
名古屋市中区役所1052m
- 郵便局
-
名古屋高岳郵便局529m
- 図書館
-
-
- 交番
-
-
- 公園
-
-
- 銀行
-
-
- 幼稚園
-
-
- 小学校
-
-
- 中学校
-
-
- 高校
-
-
ラ・ルーシュ泉の近隣物件
生活情報
名古屋市の暮らしデータ
名古屋は日本のほぼ中央に位置し、人口が233万人を超える中部地方の政治・経済・文化の中枢都市です。様々な文化を受け入れ、足し算し、独自の文化や「名古屋発祥」を生み出してきました。都市機能も揃い、利便性も高くあらゆる分野において高水準で調和のとれた大都市でありながら、寛容で人を想うマインドが根付き、自然体で生きられるその源泉は、豊かさやゆとりがもたらす「大きなこころ」であり「やさしさ」です。アジア・アジアパラ競技大会の開催や、リニア中央新幹線の品川-名古屋間の開業も予定され、さらに発展していく中、さりげなく、かっこつけることなく、ゆとりがあって豊かな毎日が送れる「やさしい大都市」名古屋です。
基本データ
| 市区役所所在地 | 名古屋市中区三の丸3-1-1 |
|---|---|
| 公式ホームページURL | https://www.city.nagoya.jp// |
| 総人口 | 2,332,176人 |
| 人口増減率(2015年/2020年) | 101.6% |
地域のおすすめ情報ブログ
一覧を見る
-
5年振りの友人と…お世話になっております!ピタットハウス本陣店です('◇')ゞどーもどーも!12月入りましたね!2025年ラスト1ヶ月ですか…。早...続きを読む -
地元民はあんまり行かない?金シャチ横丁!お世話になっております!ピタットハウス本陣店です('◇')ゞご無沙汰しております…1件のみ投稿して、更新していませんでした(´;...続きを読む -
【港区】行列のできる中華料理屋!こんにちは!ピタットハウス金山北店です!本日ご紹介するのは港区にある辛い物好きにはおすすめの「中華料理四川」さんです!地元の方に...続きを読む -
【中区】本格中国料理のお店!こんにちは!ピタットハウス金山北店です!本日ご紹介するのは中区新栄で本格中華が食べられる「四川料理川香」さんです!新栄エリアはさ...続きを読む
取扱店舗
株式会社すまいらんど
- 交通
- 地下鉄桜通線 久屋大通駅から徒歩5分
- 営業時間
- 10:00 〜 18:00
- 定休日
- 毎週火・水曜日