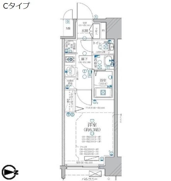
賃貸マンション
ディアレイシャス矢場町
-
愛知県名古屋市中区新栄1丁目 MAP
-
- 名古屋市名城線 「矢場町駅」 徒歩9分 / 名古屋市東山線 「栄駅」 徒歩13分 / 名古屋市東山線 「新栄町駅」 徒歩13分
- 築年月
- 2022年8月
- 構造
- 鉄筋コンクリート造
- 階数/戸数
- 地上15階建て / 100戸
- 管理形態
- -
- 建物設備
- オートロック/24時間セキュリティ/宅配BOX/分譲マンションタイプ
- 管理会社
- -
- 施工会社
- -
更新日:2026年5月2日
ディアレイシャス矢場町の他の空室物件
2
件
お問い合わせお待ちしております!
周辺環境
-
バロー新栄店:723m -
ファミリーマート新栄一丁目店:209m -
スギ薬局東新町店:555m
- コンビニ
-
ファミリーマート新栄一丁目店209m
- 買物
-
バロー新栄店723m
- ショッピング施設
-
-
- ドラッグストア
-
スギ薬局東新町店555m
- ホームセンター
-
HIDA名古屋店901m
- 病院
-
医療法人勝又病院393m
- 役所
-
名古屋市中区役所914m
- 郵便局
-
名古屋東陽町郵便局349m
- 図書館
-
-
- 交番
-
-
- 公園
-
-
- 銀行
-
-
- 幼稚園
-
-
- 小学校
-
-
- 中学校
-
-
- 高校
-
-
ディアレイシャス矢場町の近隣物件
生活情報
名古屋市の暮らしデータ
名古屋は日本のほぼ中央に位置し、人口が233万人を超える中部地方の政治・経済・文化の中枢都市です。様々な文化を受け入れ、足し算し、独自の文化や「名古屋発祥」を生み出してきました。都市機能も揃い、利便性も高くあらゆる分野において高水準で調和のとれた大都市でありながら、寛容で人を想うマインドが根付き、自然体で生きられるその源泉は、豊かさやゆとりがもたらす「大きなこころ」であり「やさしさ」です。アジア・アジアパラ競技大会の開催や、リニア中央新幹線の品川-名古屋間の開業も予定され、さらに発展していく中、さりげなく、かっこつけることなく、ゆとりがあって豊かな毎日が送れる「やさしい大都市」名古屋です。
基本データ
| 市区役所所在地 | 名古屋市中区三の丸3-1-1 |
|---|---|
| 公式ホームページURL | https://www.city.nagoya.jp// |
| 総人口 | 2,332,176人 |
| 人口増減率(2015年/2020年) | 101.6% |
地域のおすすめ情報ブログ
一覧を見る
-
5年振りの友人と…お世話になっております!ピタットハウス本陣店です('◇')ゞどーもどーも!12月入りましたね!2025年ラスト1ヶ月ですか…。早...続きを読む -
地元民はあんまり行かない?金シャチ横丁!お世話になっております!ピタットハウス本陣店です('◇')ゞご無沙汰しております…1件のみ投稿して、更新していませんでした(´;...続きを読む -
都会にたたずむ自然【ノリタケの森】こんにちは!ピタットハウス<丸の内東店〉新人の小島です!最近は風が強いですが、だんだんと暖かくなってきて春が近づいてくるのを感じ...続きを読む -
栄のメインストリート【大津通り】こんにちは!ピタットハウス<丸の内東店〉新人の小島です!今回ご紹介するのは栄のメインストリート!!【大津通り】です!前回に続き【...続きを読む
取扱店舗
株式会社すまいらんど
- 交通
- 地下鉄桜通線 久屋大通駅から徒歩5分
- 営業時間
- 10:00 〜 18:00
- 定休日
- 毎週火・水曜日