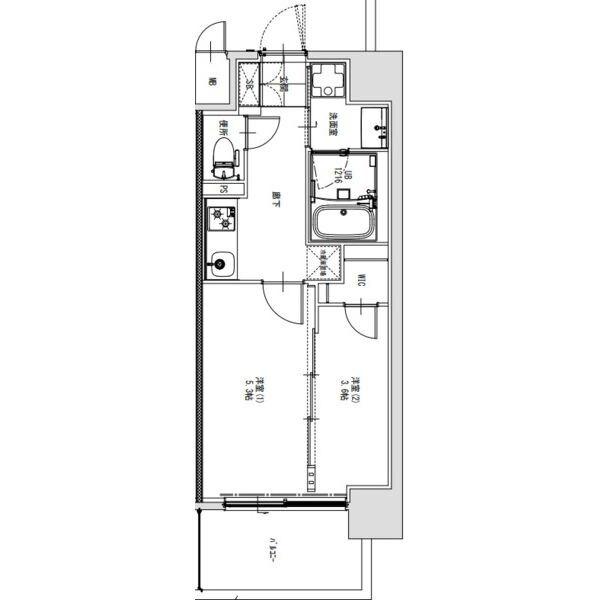
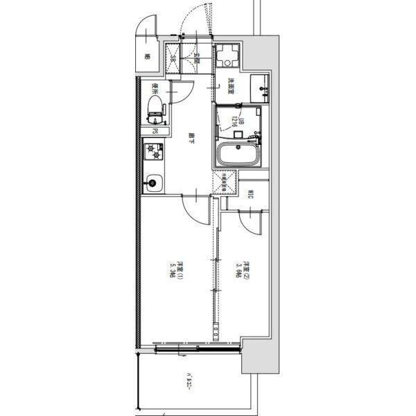
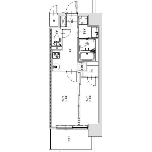
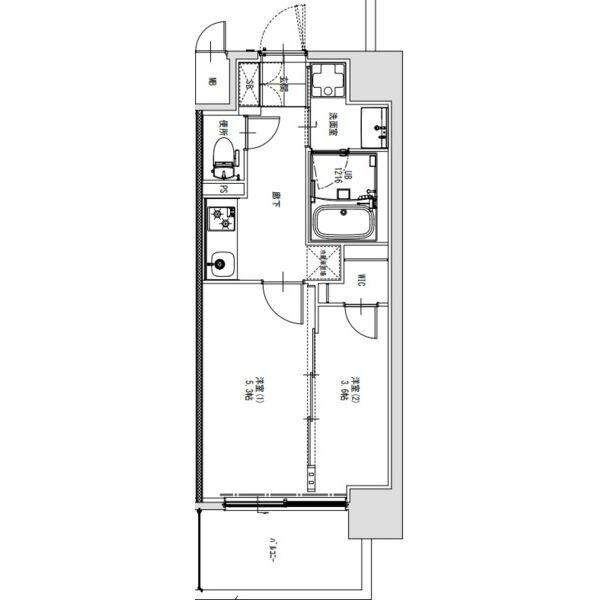
賃貸マンション
S-RESIDENCE烏森aureate(オリート)
-
愛知県名古屋市中村区牛田通2丁目 MAP
-
- 近鉄名古屋線 「烏森駅」 徒歩4分 / 近鉄名古屋線 「黄金駅」 徒歩10分 / 名古屋臨海高速鉄道 「小本駅」 徒歩12分
- 築年月
- 2025年11月
- 構造
- 鉄筋コンクリート造
- 階数/戸数
- 地上12階建て / 62戸
- 管理形態
- -
- 建物設備
- オートロック/宅配BOX
- 管理会社
- -
- 施工会社
- -
更新日:2026年5月26日
S-RESIDENCE烏森aureate(オリート)の他の空室物件
9
件
周辺環境
-
名古屋牛田通郵便局:210m
- コンビニ
-
セブンイレブン名古屋牛田通店81m
- 買物
-
ナフコトミダ千成店691m
- ショッピング施設
-
名鉄百貨店本店メンズ館2826m
- ドラッグストア
-
V・drug黄金店832m
- ホームセンター
-
エディオン中村白子店606m
- 病院
-
偕行会城西病院308m
- 役所
-
名古屋市中川区役所2247m
- 郵便局
-
名古屋牛田通郵便局210m
- 図書館
-
愛知大学名古屋図書館2359m
- 交番
-
中川警察署2269m
- 公園
-
大坪街園991m
- 銀行
-
あいち銀行豊成支店511m
- 幼稚園
-
保育所型認定こども園柳保育園110m
- 小学校
-
名古屋市立柳小学校509m
- 中学校
-
名古屋市立豊国中学校711m
- 高校
-
愛知県立松蔭高校535m
S-RESIDENCE烏森aureate(オリート)の近隣物件
生活情報
名古屋市の暮らしデータ
名古屋は日本のほぼ中央に位置し、人口が233万人を超える中部地方の政治・経済・文化の中枢都市です。様々な文化を受け入れ、足し算し、独自の文化や「名古屋発祥」を生み出してきました。都市機能も揃い、利便性も高くあらゆる分野において高水準で調和のとれた大都市でありながら、寛容で人を想うマインドが根付き、自然体で生きられるその源泉は、豊かさやゆとりがもたらす「大きなこころ」であり「やさしさ」です。アジア・アジアパラ競技大会の開催や、リニア中央新幹線の品川-名古屋間の開業も予定され、さらに発展していく中、さりげなく、かっこつけることなく、ゆとりがあって豊かな毎日が送れる「やさしい大都市」名古屋です。
基本データ
| 市区役所所在地 | 名古屋市中区三の丸3-1-1 |
|---|---|
| 公式ホームページURL | https://www.city.nagoya.jp// |
| 総人口 | 2,332,176人 |
| 人口増減率(2015年/2020年) | 101.6% |
地域のおすすめ情報ブログ
一覧を見る
-
5年振りの友人と…お世話になっております!ピタットハウス本陣店です('◇')ゞどーもどーも!12月入りましたね!2025年ラスト1ヶ月ですか…。早...続きを読む -
地元民はあんまり行かない?金シャチ横丁!お世話になっております!ピタットハウス本陣店です('◇')ゞご無沙汰しております…1件のみ投稿して、更新していませんでした(´;...続きを読む -
都会にたたずむ自然【ノリタケの森】こんにちは!ピタットハウス<丸の内東店〉新人の小島です!最近は風が強いですが、だんだんと暖かくなってきて春が近づいてくるのを感じ...続きを読む -
栄のメインストリート【大津通り】こんにちは!ピタットハウス<丸の内東店〉新人の小島です!今回ご紹介するのは栄のメインストリート!!【大津通り】です!前回に続き【...続きを読む
取扱店舗
株式会社名岐不動産
- 交通
- 地下鉄「名古屋」駅 1番出口より徒歩5分
- 営業時間
- 10:00 〜 18:30
- 定休日
- 毎週水曜日