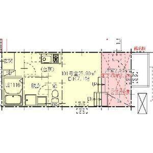
賃貸アパート
ハーモニーテラスカメシマⅡ
NEW-
愛知県名古屋市中村区亀島2丁目 MAP
-
- 名古屋市東山線 「亀島駅」 徒歩5分 / 名古屋市東山線 「名古屋駅」 徒歩10分 / 名古屋市桜通線 「太閤通駅」 徒歩14分
- 築年月
- 2019年12月
- 構造
- 木造
- 階数/戸数
- 地上3階建て / 6戸
- 管理形態
- -
- 建物設備
- オートロック/24時間セキュリティ/宅配BOX
- 管理会社
- -
- 施工会社
- -
更新日:2025年12月4日
ハーモニーテラスカメシマⅡの他の空室物件
1
件
周辺環境
-
名古屋市立ほのか小学校:662m -
名古屋市中村区役所:1020m -
名古屋亀島郵便局:354m
- コンビニ
-
ローソンストア100亀島店191m
- 買物
-
ヤマナカ則武店717m
- ショッピング施設
-
ジェイアール名古屋タカシマヤ1017m
- ドラッグストア
-
ツルハドラッグ則武店637m
- ホームセンター
-
ビックカメラ名古屋駅西店825m
- 病院
-
岩田病院350m
- 役所
-
名古屋市中村区役所1020m
- 郵便局
-
名古屋亀島郵便局354m
- 図書館
-
愛知大学名古屋図書館2307m
- 交番
-
中村警察署1139m
- 公園
-
牛島北街園717m
- 銀行
-
ゆうちょ銀行名古屋支店ビックカメ830m
- 幼稚園
-
けやきの木保育園375m
- 小学校
-
名古屋市立ほのか小学校662m
- 中学校
-
名古屋市立笈瀬中学校1060m
- 高校
-
私立愛美学園啓明学館高校1877m
ハーモニーテラスカメシマⅡの近隣物件
生活情報
名古屋市の暮らしデータ
名古屋市は、1871年の廃藩置県で、新政府により名古屋県(翌年愛知県と改称)が設置され、管内を6大区に分けて名古屋と熱田が第1大区とされたのが起源です。その後1878年、名古屋区として初めて独立行政区となり、1889年10月1日の市制施行で、名古屋市は人口15万7,496人、面積約13.34km2でスタートしました。近隣の市町村の編入などもあり、現在では市域326.50km2、人口約230万人の規模となりました。
基本データ
| 市区役所所在地 | 名古屋市中区三の丸3-1-1 |
|---|---|
| 公式ホームページURL | https://www.city.nagoya.jp// |
| 総人口 | 2,332,176人 |
| 人口増減率(2015年/2020年) | 101.6% |
地域のおすすめ情報ブログ
一覧を見る
-
5年振りの友人と…お世話になっております!ピタットハウス本陣店です('◇')ゞどーもどーも!12月入りましたね!2025年ラスト1ヶ月ですか…。早...続きを読む -
地元民はあんまり行かない?金シャチ横丁!お世話になっております!ピタットハウス本陣店です('◇')ゞご無沙汰しております…1件のみ投稿して、更新していませんでした(´;...続きを読む -
【港区】行列のできる中華料理屋!こんにちは!ピタットハウス金山北店です!本日ご紹介するのは港区にある辛い物好きにはおすすめの「中華料理四川」さんです!地元の方に...続きを読む -
【中区】本格中国料理のお店!こんにちは!ピタットハウス金山北店です!本日ご紹介するのは中区新栄で本格中華が食べられる「四川料理川香」さんです!新栄エリアはさ...続きを読む
取扱店舗
株式会社名岐不動産
- 交通
- 地下鉄「名古屋」駅 1番出口より徒歩5分
- 営業時間
- 10:00 〜 18:30
- 定休日
- 毎週水曜日