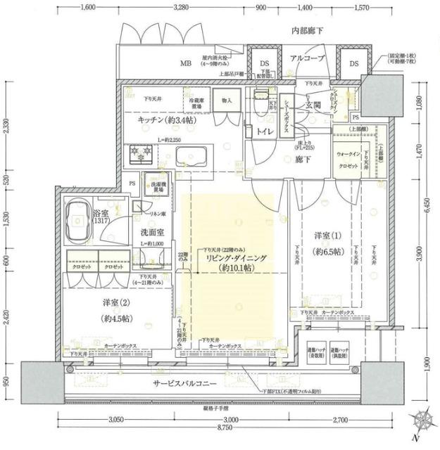
賃貸マンション
ザ・ファインタワー大阪肥後橋
NEW-
大阪府大阪市西区江戸堀1丁目 MAP
-
- 地下鉄四つ橋線 「肥後橋駅」 徒歩4分 / 京阪電鉄中之島線 「渡辺橋駅」 徒歩9分 / 地下鉄御堂筋線 「淀屋橋駅」 徒歩9分
- 築年月
- 2024年1月
- 構造
- 鉄筋コンクリート造
- 階数/戸数
- 地上34階建て / 197戸
- 管理形態
- -
- 建物設備
- オートロック/宅配BOX/分譲マンションタイプ
- 管理会社
- -
- 施工会社
- -
更新日:2025年12月15日
ザ・ファインタワー大阪肥後橋の他の空室物件
1
件
お問い合わせお待ちしております!
周辺環境
-
大阪市立西船場小学校:417m
- コンビニ
-
ローソン肥後橋ウェリナホテル店165m
- 買物
-
コーヨー肥後橋店279m
- ショッピング施設
-
阪神梅田本店1506m
- ドラッグストア
-
ドラッグアカカベ肥後橋店191m
- ホームセンター
-
HIDA大阪店737m
- 病院
-
一般財団法人住友病院994m
- 役所
-
大阪市役所1050m
- 郵便局
-
大阪肥後橋郵便局334m
- 図書館
-
日本ライトハウス情報文化センター295m
- 交番
-
大阪府天満警察署1433m
- 公園
-
中之島緑道493m
- 銀行
-
関西みらい銀行本町営業部381m
- 幼稚園
-
YMCAとさぼり保育園383m
- 小学校
-
大阪市立西船場小学校417m
- 中学校
-
大阪市立花乃井中学校848m
- 高校
-
私立相愛高校1101m
ザ・ファインタワー大阪肥後橋の近隣物件
生活情報
大阪市の暮らしデータ
大阪市は、本州の中心あたりに位置し、1889年に市制が施行されました。現在は人口約277万人(2024年4月15日時点)となり、広さは約225.33km2です。また、水都として知られ、花と緑、歴史と文化、芸術やスポーツなどにふれることができる、人々にとって快適で、魅力あふれるまちです。
基本データ
| 市区役所所在地 | 大阪市北区中之島1-3-20 |
|---|---|
| 公式ホームページURL | https://www.city.osaka.lg.jp// |
| 総人口 | 2,752,412人 |
| 人口増減率(2015年/2020年) | 102.3% |
取扱店舗
株式会社住まい流通
- 交通
- ●JR環状線【大正】駅徒歩1分 ●地下鉄長堀鶴見緑地線【大正】駅徒歩1分 ●阪神なんば線【ドーム前】駅徒歩8分
- 営業時間
- 10:00 〜 19:00
- 定休日
- 毎週火曜日・毎週水曜日・冬季休暇 12月23日〜1月3日