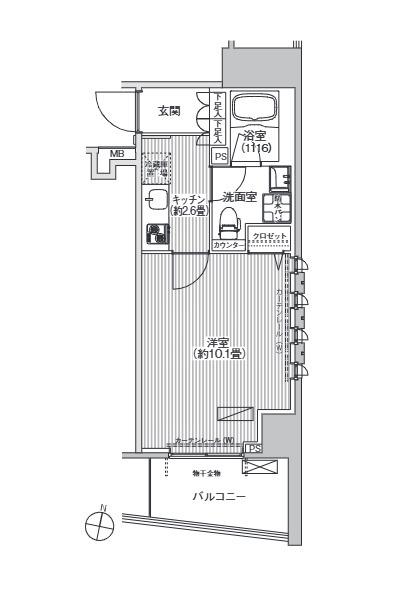
賃貸マンション
コスモグランス南品川
-
東京都品川区南品川5丁目 MAP
-
- JR京浜東北・根岸線 「大井町駅」 徒歩11分 / 東京臨海高速鉄道りんかい線 「品川シーサイド駅」 徒歩11分
- 築年月
- 2017年9月
- 構造
- 鉄筋コンクリート造
- 階数/戸数
- 地上14階建て / -
- 管理形態
- -
- 建物設備
- オートロック/宅配BOX/免震構造
- 管理会社
- -
- 施工会社
- -
更新日:2025年10月11日
コスモグランス南品川の他の空室物件
1
件

お問い合わせお待ちしております!
コスモグランス南品川(210)の近隣物件
生活情報
品川区の暮らしデータ
品川区は、東京都の南東部に位置し、東京湾に面する臨海部と山の手に連なる台地から形成され、面積は22.85km2で23区では平均的な広さです。人口は約40万人余りで、1964年をピークに減少していましたが、1998年以降は増加に転じています。
基本データ
市区役所所在地 | 品川区広町2-1-36 |
---|---|
公式ホームページURL | https://www.city.shinagawa.tokyo.jp// |
総人口 | 422,488人 |
人口増減率(2015年/2020年) | 109.2% |
地域のおすすめ情報ブログ
一覧を見る
-
心あたたまるパン屋さん本日は、東急池上線・荏原中延駅のすぐ目の前にあるパン屋さんをご紹介します。惣菜パンから菓子パンまで、バラエティ豊かにそろった、ど...続きを読む
-
日本考古学発祥の地こんにちは!ピタットハウス蒲田店です。今回は、歴史好きの方にもファミリーにもおすすめのスポット「大森貝塚庭園」をご紹介します。大...続きを読む
-
坂本龍馬の息吹こんにちは!ピタットハウス蒲田店です。本日は立会川にある坂本龍馬像についてお話します♪薩長同盟や大政奉還の実現に尽力し、幕末の志...続きを読む
-
変わらぬ味のおでん屋さんこんにちは、五反田店の武田です。今回紹介するのは、戸越駅から徒歩6分の場所にお店を構える、「後藤かまぼこ店」です。創業は65年!...続きを読む
取扱店舗

株式会社エスケイ・コミュニティー
- 交通
- JR山手線「新宿」駅徒歩6分都営大江戸線「新宿西口」駅徒歩2分
- 営業時間
- 09:30 〜 18:30
- 定休日
- 毎週水曜日・2月・3月は無休、夏季休暇無し・年末年始