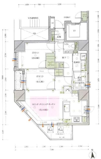
賃貸マンション
プレシス府中
NEW-
東京都武蔵野市八幡町1丁目 MAP
-
- 京王線 「府中駅」 徒歩7分
- 築年月
- 2017年8月
- 構造
- 鉄筋コンクリート造
- 階数/戸数
- 地上12階建て / 22戸
- 管理形態
- -
- 建物設備
- オートロック
- 管理会社
- -
- 施工会社
- -
更新日:2025年11月20日
プレシス府中の他の空室物件
1
件
お問い合わせお待ちしております!
プレシス府中の近隣物件
生活情報
武蔵野市の暮らしデータ
武蔵野市は、23区と多摩地区の接点に位置し、コンパクトさを活かした利便性の高い都市でありながら、緑豊かで良好な住環境が広がる住宅都市です。個性豊かな三つの駅圏域(吉祥寺、三鷹北口、武蔵境)があり、それぞれ独自の魅力を築いてきました。市民自治や成熟した文化、高い環境意識によりまちづくりが行われ、今も発展を続けています。
基本データ
| 市区役所所在地 | 武蔵野市緑町2-2-28 |
|---|---|
| 公式ホームページURL | https://www.city.musashino.lg.jp// |
| 総人口 | 150,149人 |
| 人口増減率(2015年/2020年) | 103.7% |
地域のおすすめ情報ブログ
一覧を見る
-
落ち着いた空間のカフェで過ごしませんか?こんにちは!ピタットハウス三鷹北口店新人の中野です。本日は三鷹駅北口から徒歩8分の【STAYFULLIFESTORE】さんにお邪...続きを読む -
種類豊富なドックフードがそろっているお店こんにちは!三鷹北口店の木村です!本日は手作り無添加ドックフード取扱店「ランフリー」を紹介させていただきます。こちらのお店は、武...続きを読む -
おしゃれなカフェで過ごすなら…!こんにちは!三鷹北口店の木村です!本日は路線沿いのオシャレなカフェ「CafeSacai」をご紹介させていただきます。こちらのお店...続きを読む -
和ビストロ TORETATEこんにちは!三鷹北口店新人の木村です。今回は三鷹駅北口から徒歩5分にある和モダンのオシャレな雰囲気なお店「和ビストロTORETA...続きを読む
取扱店舗
株式会社エスケイ・コミュニティー
- 交通
- JR山手線「新宿」駅徒歩6分都営大江戸線「新宿西口」駅徒歩2分
- 営業時間
- 09:30 〜 18:30
- 定休日
- 毎週水曜日・2月・3月は無休、夏季休暇無し・年末年始