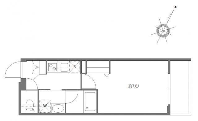
賃貸マンション
ハーモニーレジデンス品川高輪
NEW-
東京都港区高輪4丁目 MAP
-
- JR山手線 「品川駅」 徒歩9分 / 京急本線 「北品川駅」 徒歩11分
- 築年月
- 2017年8月
- 構造
- 鉄筋コンクリート造
- 階数/戸数
- 地上4階建て / -
- 管理形態
- -
- 建物設備
- オートロック/宅配BOX/分譲マンションタイプ
- 管理会社
- 株式会社シノケンファシリティーズ 03-6860-3110
- 施工会社
- -
更新日:2026年1月18日
ハーモニーレジデンス品川高輪の他の空室物件
1
件
お問い合わせお待ちしております!
ハーモニーレジデンス品川高輪の近隣物件
生活情報
港区の暮らしデータ
港区は、1947年3月15日に旧芝、麻布、赤坂の3区が統合され誕生しました。東京都のほぼ南東部に位置し、北西一帯の高台地と、南東の東京湾に面した低地および芝浦海浜の埋め立て地からなっています。高台地は秩父山麓に端を発している武蔵野台地の末端で、これらの台地は小さな突起状の丘陵となっているため、東京23区の中で最も起伏に富んだ地形をもっています。
基本データ
| 市区役所所在地 | 港区芝公園1-5-25 |
|---|---|
| 公式ホームページURL | https://www.city.minato.tokyo.jp// |
| 総人口 | 260,486人 |
| 人口増減率(2015年/2020年) | 107.1% |
地域のおすすめ情報ブログ
一覧を見る
-
遅めのランチにおススメです♪こんにちは!ピタットハウス浜松町店の柿澤です♪先日ランチで行ったお店の紹介です(*^^*)その日は忙しい日でランチに出られたのが...続きを読む -
newオープンしたとんかつ屋さん☆こんにちは!ピタットハウス浜松町店の柿澤です!本日は浜松町にnewオープンしたとんかつ屋さんのご紹介です!【博多とんかつわか葉浜...続きを読む -
今日のお昼はラーメ〇でしたこんにちは、ピタットハウス浜松町店の吉富です。バレバレなタイトルですが今日のお昼ご飯はラーメンでした。壱角家さんのラーメンを食べ...続きを読む -
定食メニューが豊富【居酒屋 一力】どうも、こんにちは。ピタットハウス浜松町店の吉富です。今回は定食メニューの豊富な【居酒屋一力】の紹介です。魚好きの僕が刺身定食の...続きを読む
取扱店舗
株式会社エスケイ・コミュニティー
- 交通
- JR山手線「新宿」駅徒歩6分都営大江戸線「新宿西口」駅徒歩2分
- 営業時間
- 09:30 〜 18:30
- 定休日
- 毎週水曜日・2月・3月は無休、夏季休暇無し