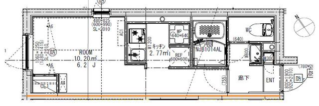
賃貸マンション
エルファーロ池尻
NEW-
東京都世田谷区池尻2丁目 MAP
-
- 東急田園都市線 「池尻大橋駅」 徒歩4分 / 東急田園都市線 「三軒茶屋駅」 徒歩15分
- 築年月
- 2023年1月
- 構造
- 鉄筋コンクリート造
- 階数/戸数
- 地上4階建て / 16戸
- 管理形態
- -
- 建物設備
- オートロック/宅配BOX
- 管理会社
- 株式会社S-FITパートナーズ
- 施工会社
- -
更新日:2026年1月27日
エルファーロ池尻の他の空室物件
1
件
お問い合わせお待ちしております!
エルファーロ池尻の近隣物件
生活情報
世田谷区の暮らしデータ
世田谷区は、23区中の西南端にあり、東は目黒区・渋谷区、北は杉並区・三鷹市、西は狛江市・調布市、南は大田区とそれぞれ接し、さらに多摩川をはさんで神奈川県川崎市と向かい合っています。現在約92万人の住む住宅都市となり、開発が進む中、緑化の推進や環境保全など、潤いのあるまちづくりに取り組んでいます。
基本データ
| 市区役所所在地 | 世田谷区世田谷4-21-27 |
|---|---|
| 公式ホームページURL | https://www.city.setagaya.lg.jp// |
| 総人口 | 943,664人 |
| 人口増減率(2015年/2020年) | 104.5% |
地域のおすすめ情報ブログ
一覧を見る
-
奥沢の素敵なギャラリーのご紹介です♪こんにちは!ピタットハウス店の神田です!今日は、自由が丘・奥沢にある「galleryms+w」というギャラリーをご紹介します。店...続きを読む -
都内唯一の渓谷で森林浴はいかが?世田谷区にある等々力渓谷は、都内で草木と川のマイナスイオンを感じられる癒しスポットです。令和5年7月に倒木が発生したため、一部の...続きを読む -
昼と夜で楽しめる二つの顔先日、ずっと気になっていた「ひるがお駒沢大学店」に行ってきました。駒沢大学駅から歩いて15分程度、ラーメン好きの間では有名なお店...続きを読む -
多種多様な遊具のある広々とした公園こんにちは!調布店の曽根です。今回は住宅街の中にある大きく遊具も充実した「上祖師谷一丁目公園」をご紹介します!鉄棒や滑り台、ブラ...続きを読む
取扱店舗
株式会社エスケイ・コミュニティー
- 交通
- JR山手線「新宿」駅徒歩6分都営大江戸線「新宿西口」駅徒歩2分
- 営業時間
- 09:30 〜 18:30
- 定休日
- 毎週水曜日・2月・3月は無休、夏季休暇無し