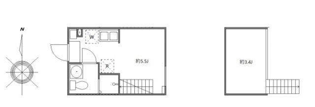
賃貸アパート
テラス祖師ヶ谷大蔵
-
東京都世田谷区祖師谷4丁目 MAP
-
- 小田急小田原線 「祖師ヶ谷大蔵駅」 徒歩10分 / 小田急小田原線 「成城学園前駅」 徒歩14分
- 築年月
- 2026年2月
- 構造
- 木造
- 階数/戸数
- 地上2階建て / -
- 管理形態
- -
- 建物設備
- 宅配BOX
- 管理会社
- 株式会社シノケンファシリティーズ 03-5777-0085
- 施工会社
- -
更新日:2026年4月17日
テラス祖師ヶ谷大蔵の他の空室物件
1
件
お問い合わせお待ちしております!
テラス祖師ヶ谷大蔵の近隣物件
生活情報
世田谷区の暮らしデータ
世田谷区は、23区中の西南端にあり、東は目黒区・渋谷区、北は杉並区・三鷹市、西は狛江市・調布市、南は大田区とそれぞれ接し、さらに多摩川をはさんで神奈川県川崎市と向かい合っています。現在約92万人の住む住宅都市となり、開発が進む中、緑化の推進や環境保全など、潤いのあるまちづくりに取り組んでいます。
基本データ
| 市区役所所在地 | 世田谷区世田谷4-21-27 |
|---|---|
| 公式ホームページURL | https://www.city.setagaya.lg.jp// |
| 総人口 | 943,664人 |
| 人口増減率(2015年/2020年) | 104.5% |
地域のおすすめ情報ブログ
一覧を見る
-
明大前駅近!オシャレなコーヒーショップみなさん、初めまして!ピタットハウス明大前店、新人の野沢です!街の魅力をお伝えできるよう、頑張ります!!初投稿として紹介させてい...続きを読む -
ワンちゃんと来れるカフェこんにちは!調布店新人の駒井です。今回は千歳烏山駅から徒歩約7分の所にあるカフェを紹介します。こちらのカフェは、イートイン・テイ...続きを読む -
奥沢の素敵なギャラリーのご紹介です♪こんにちは!ピタットハウス店の神田です!今日は、自由が丘・奥沢にある「galleryms+w」というギャラリーをご紹介します。店...続きを読む -
都内唯一の渓谷で森林浴はいかが?世田谷区にある等々力渓谷は、都内で草木と川のマイナスイオンを感じられる癒しスポットです。令和5年7月に倒木が発生したため、一部の...続きを読む
取扱店舗
株式会社エスケイ・コミュニティー
- 交通
- JR線「新宿」駅西口より徒歩6分、都営大江戸線「新宿西口」駅D5出口より徒歩2分
- 営業時間
- 09:30 〜 18:30
- 定休日
- 毎週水曜日・GW休暇、5月2日(土)〜5月6日(水)・2月・3月は無休、夏季休暇無し