前へ
次へ
前へ
次へ
駐車場

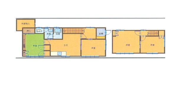
桐生市平井町貸家

NEW
  • 群馬県桐生市平井町 MAP
    • 上毛電気鉄道上毛線 「西桐生駅」 徒歩31分 / JR両毛線 「桐生駅」 徒歩35分 / わたらせ渓谷鉄道 「桐生駅」 徒歩35分
築年月
1968年12月
構造
木造
階数/戸数
地上2階建て / -
管理形態
-
建物設備
-
管理会社
株式会社ワンライフ
施工会社
-
更新日:2026年1月24日

桐生市平井町貸家の他の空室物件

1

周辺環境

  • フレッセイ天神店:357m
    フレッセイ天神店:357m
  • ファミリーマート日野屋天神町店:487m
    ファミリーマート日野屋天神町店:487m
  • スギドラッグ天神店:383m
    スギドラッグ天神店:383m
  • カインズ桐生梅田店:1960m
    カインズ桐生梅田店:1960m
  • ほっともっと桐生天神町店:408m
    ほっともっと桐生天神町店:408m
コンビニ
ファミリーマート日野屋天神町店
487m
買物
フレッセイ天神店
357m
ショッピング施設
-
ドラッグストア
スギドラッグ天神店
383m
ホームセンター
カインズ桐生梅田店
1960m
病院
岩下会岩下病院
2023m
役所
桐生市役所
3448m
郵便局
桐生天神町郵便局
702m
図書館
国立大学法人群馬大学理工学図書館
727m
交番
桐生警察署
3912m
公園
桐生が岡公園
1660m
銀行
ゆうちょ銀行さいたま支店群馬大学
858m
幼稚園
桐生北こども園
1134m
小学校
桐生市立北小学校
1536m
中学校
私立桐生大学附属中学校
2351m
高校
群馬県立桐生工業高校
963m

生活情報

桐生市の暮らしデータ

桐生市は、古くから織物のまちとして発展し、1921年に全国84番目の市として誕生しました。群馬県の東南部に位置し、栃木県の足利市と接し、西は赤城山まで達しています。市街地には渡良瀬川と桐生川が流れ、山々が屏風状に連なり、水と緑に恵まれた地に歴史と伝統が息づいています。桐生の歴史は古く、市内からは縄文時代の石器・土器、住居跡が発掘され、なかでも千網谷戸遺跡から出た耳飾りは国の重要文化財に指定されています。桐生は今でも織物の糸へんで生きるまちですが、近年は自動車関連部品やパチンコ台の製造など機械金属産業が基幹産業となっています。

基本データ

市区役所所在地 桐生市織姫町1-1
公式ホームページURL https://www.city.kiryu.lg.jp//
総人口 106,445人
人口増減率(2015年/2020年) 92.8%
桐生市の生活情報を詳しくみる

取扱店舗

株式会社ワンライフ
交通
JR両毛線「前橋」駅より徒歩3分。アクエル前橋の向かいになります。駐車場完備。
営業時間
09:30 〜 17:30
定休日
毎週水曜日、GW休業、夏季休業、冬季休業・【冬季休業:・12月28日〜1月4日】
  • 駐車場あり