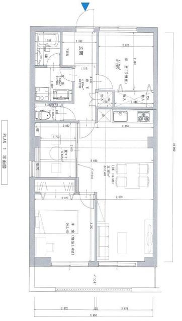
賃貸マンション
ラブリハイツ徳島
-
徳島県徳島市南矢三町3丁目 MAP
-
- JR高徳線 「徳島駅」 徒歩38分 / JR徳島線 「蔵本駅」 徒歩9分
- 築年月
- 1987年12月
- 構造
- 鉄骨鉄筋コンクリート造
- 階数/戸数
- 地上7階建て / -
- 管理形態
- -
- 建物設備
- -
- 管理会社
- -
- 施工会社
- -
更新日:2025年10月2日
ラブリハイツ徳島の他の空室物件
1
件

お問い合わせお待ちしております!
周辺環境
- コンビニ
-
コンビニ560m
- 買物
-
-
- ショッピング施設
-
-
- ドラッグストア
-
-
- ホームセンター
-
-
- 病院
-
病院895m
- 役所
-
-
- 郵便局
-
-
- 図書館
-
-
- 交番
-
-
- 公園
-
-
- 銀行
-
-
- 幼稚園
-
-
- 小学校
-
徳島市立千松小学校1432m
- 中学校
-
徳島市立城西中学校487m
- 高校
-
-
ラブリハイツ徳島の近隣物件
生活情報
徳島市の暮らしデータ
徳島市は、吉野川の三角州に発達した県庁所在地で、大小134の河川が市内を流れ、水とともに発展してきた他に類をみない都市です。阿波おどりなどの伝統文化を大切に守り育てながら、水の魅力を生かしたまちづくりに取り組んでいます。また、2022年5月にSDGs未来都市に選定され、ダイバーシティとパートナーシップを柱とし、SDGsを積極的に推進しています。
基本データ
市区役所所在地 | 徳島市幸町2-5 |
---|---|
公式ホームページURL | https://www.city.tokushima.tokushima.jp// |
総人口 | 252,391人 |
人口増減率(2015年/2020年) | 97.6% |
取扱店舗

株式会社賃貸Works
- 交通
- JR徳島線「蔵本」駅より徒歩約13分※敷地内駐車場あり
- 営業時間
- 10:00 〜 18:00
- 定休日
- 毎週水曜日