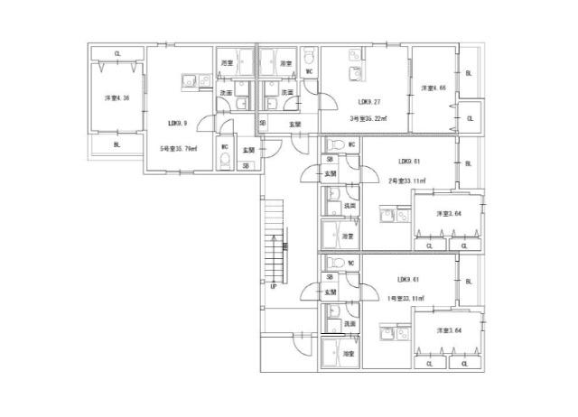
賃貸アパート
福岡市東区千早アパート
NEW-
福岡県福岡市東区千早1丁目 MAP
-
- 西鉄貝塚線 「名島駅」 徒歩12分 / 西鉄貝塚線 「西鉄千早駅」 徒歩15分 / JR鹿児島本線 「千早駅」 徒歩15分
- 築年月
- 2024年3月
- 構造
- 木造
- 階数/戸数
- 地上2階建て / -
- 管理形態
- -
- 建物設備
- オートロック
- 管理会社
- -
- 施工会社
- -
更新日:2026年4月20日
福岡市東区千早アパートの他の空室物件
1
件
周辺環境
-
マルキョウ千早店:522m
- コンビニ
-
セブンイレブン福岡千早1丁目店400m
- 買物
-
マルキョウ千早店522m
- ショッピング施設
-
-
- ドラッグストア
-
ディスカウントドラッグコスモス千427m
- ホームセンター
-
-
- 病院
-
-
- 役所
-
-
- 郵便局
-
-
- 図書館
-
-
- 交番
-
-
- 公園
-
-
- 銀行
-
-
- 幼稚園
-
-
- 小学校
-
-
- 中学校
-
-
- 高校
-
-
福岡市東区千早アパートの近隣物件
生活情報
福岡市の暮らしデータ
福岡市は、北は玄界灘に臨み、海の中道と糸島半島で仕切られた博多湾を擁し、南は脊振山地、東は三郡山地に囲まれた福岡平野に位置しています。大都市の魅力と美しい自然とを併せ持ち、長い歴史の中で培われた伝統・文化に恵まれた、独自の個性と魅力を有します。わが国の主要都市(大阪、東京、札幌)までの距離と、東アジアの主要都市(釜山、ソウル、上海、北京、台北など)までの距離とがほぼ同じ範囲にあるため、国際線の定期航空路線も多く、アジア諸国との交流には最適の位置といえます。
基本データ
| 市区役所所在地 | 福岡市中央区天神1-8-1 |
|---|---|
| 公式ホームページURL | https://www.city.fukuoka.lg.jp// |
| 総人口 | 1,612,392人 |
| 人口増減率(2015年/2020年) | 104.8% |
地域のおすすめ情報ブログ
一覧を見る
取扱店舗
株式会社Ark
- 交通
- 地下鉄「祇園駅」より徒歩3分JR「博多駅」より徒歩5分
- 営業時間
- 09:30 〜 18:30
- 定休日
- 年末年始・夏季休暇・ゴールデンウイーク