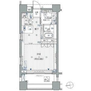
賃貸マンション
港区芝大門マンション
NEW-
東京都港区芝大門1丁目 MAP
-
- 都営浅草線 「大門駅」 徒歩2分 / 都営三田線 「御成門駅」 徒歩6分 / JR山手線 「浜松町駅」 徒歩9分
- 築年月
- 2006年3月
- 構造
- 鉄骨鉄筋コンクリート造
- 階数/戸数
- 地上15階建て / 48戸
- 管理形態
- -
- 建物設備
- オートロック/宅配BOX
- 管理会社
- -
- 施工会社
- -
更新日:2025年11月7日
港区芝大門マンションの他の空室物件
1
件
お問い合わせお待ちしております!
周辺環境
-
まいばすけっと 浜松町1丁目店:289m -
マルエツ プチ 汐留シオサイト店:421m -
ローソン 芝大門店:38m -
ナチュラルローソン 芝大門一丁目店:43m -
白洋舎芝大門店:98m -
芝大門郵便局:201m
- コンビニ
-
ローソン 芝大門店38m
- 買物
-
まいばすけっと 浜松町1丁目店289m
- ショッピング施設
-
世界貿易センタービル424m
- ドラッグストア
-
-
- ホームセンター
-
-
- 病院
-
東京慈恵会医科大学附属病院868m
- 役所
-
-
- 郵便局
-
芝大門郵便局201m
- 図書館
-
-
- 交番
-
-
- 公園
-
芝公園835m
- 銀行
-
りそな銀行芝支店227m
- 幼稚園
-
-
- 小学校
-
-
- 中学校
-
-
- 高校
-
-
港区芝大門マンションの近隣物件
生活情報
港区の暮らしデータ
港区は、1947年3月15日に旧芝、麻布、赤坂の3区が統合され誕生しました。東京都のほぼ南東部に位置し、北西一帯の高台地と、南東の東京湾に面した低地および芝浦海浜の埋め立て地からなっています。高台地は秩父山麓に端を発している武蔵野台地の末端で、これらの台地は小さな突起状の丘陵となっているため、東京23区の中で最も起伏に富んだ地形をもっています。
基本データ
| 市区役所所在地 | 港区芝公園1-5-25 |
|---|---|
| 公式ホームページURL | https://www.city.minato.tokyo.jp// |
| 総人口 | 260,486人 |
| 人口増減率(2015年/2020年) | 107.1% |
地域のおすすめ情報ブログ
一覧を見る
-
遅めのランチにおススメです♪こんにちは!ピタットハウス浜松町店の柿澤です♪先日ランチで行ったお店の紹介です(*^^*)その日は忙しい日でランチに出られたのが...続きを読む -
newオープンしたとんかつ屋さん☆こんにちは!ピタットハウス浜松町店の柿澤です!本日は浜松町にnewオープンしたとんかつ屋さんのご紹介です!【博多とんかつわか葉浜...続きを読む -
今日のお昼はラーメ〇でしたこんにちは、ピタットハウス浜松町店の吉富です。バレバレなタイトルですが今日のお昼ご飯はラーメンでした。壱角家さんのラーメンを食べ...続きを読む -
定食メニューが豊富【居酒屋 一力】どうも、こんにちは。ピタットハウス浜松町店の吉富です。今回は定食メニューの豊富な【居酒屋一力】の紹介です。魚好きの僕が刺身定食の...続きを読む
取扱店舗
株式会社リライフ
- 交通
- 四ツ谷駅 徒歩3分JR中央総武線・東京メトロ丸ノ内線・東京メトロ南北線四谷三丁目駅 徒歩9分東京メトロ丸ノ内線
- 営業時間
- 10:00 〜 18:30
- 定休日
- 毎週水曜日