
お気軽にお問い合わせください!
物件情報・周辺環境・契約手続きについてなどお気軽にお問い合わせください。
設備・条件
|
|
---|---|
|
|
物件概要
物件種別
部屋種別 | 事務所 | ||
---|---|---|---|
建物名称 | (仮称)ADC.BLD MARUNOUCHIビル(701) | ||
所在地 | 愛知県名古屋市中区丸の内2丁目1712-1 MAP | ||
築年月 | 2027年3月 | 階数 | 14階建ての7階 |
建物構造 | 重量鉄骨造 | 総戸数 | 14戸 |
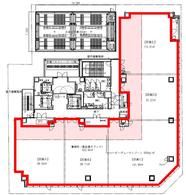
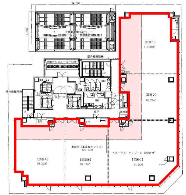
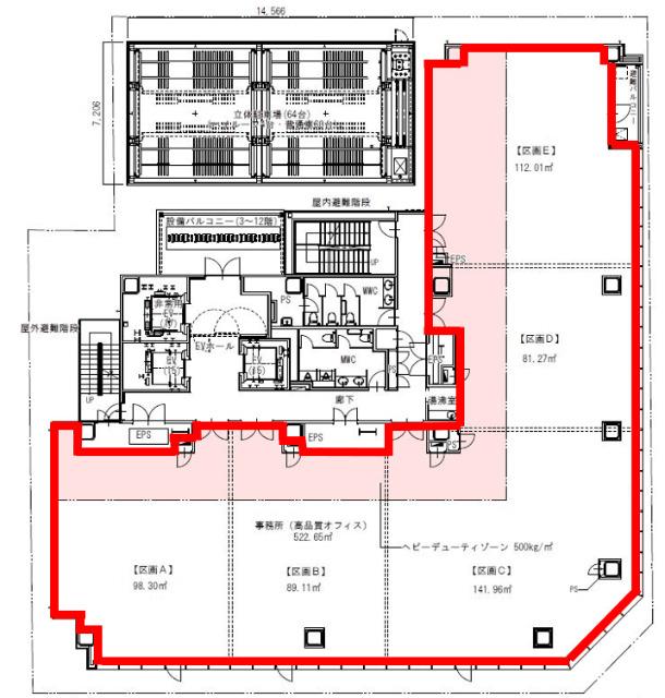
間取り | 事務所 | 専有面積 | 522.65㎡ |
その他 | 管理形態:全部委託(巡回管理) |
費用
賃料 |
365.211万円
初期費用の確認をする
|
共益費 | - |
---|---|---|---|
礼金 | - | 敷金 | 1,936.2万円 |
保証金 | - | 償却金 | - |
その他一時金 | - | ||
その他月額費用 | - | ||
住宅保険 | 要加入 | ||
保証会社 | 必須 | ||
保証会社補足 | . | ||
更新料 | - | 更新事務手数料 | - |
契約条件
貸家契約区分 | 普通賃貸借 | 契約期間 | 2年 |
---|---|---|---|
入居可能日 |
2027年5月1日予定
空室状況を確認をする
|
||
フリーレント | - | ||
クレジットカード決済 | - |
駐車場
駐車場 |
有り 月額38,500円
駐車場について質問する
|
||
---|---|---|---|
駐車場契約形態 | - | ||
駐車場備考 | 普通車3.5万円(税別)ハイループ4.0万(税別)平面駐車場4.5万(税別) | ||
バイク置き場 | - | ||
駐輪場 | - |
備考
その他 | |||
---|---|---|---|
関連リンク | |||
取引態様 | 媒介 | 管理コード | 4607514 |
情報登録(更新)日 | 2025年10月13日 | 次回更新予定日 | 2025年10月30日 |
(仮称)ADC.BLD MARUNOUCHIビル の他の空室物件
4
件
取扱店舗

ピタットハウスでは信頼されるサイトを目指して、物件情報の精度向上に努めています。
掲載物件に誤りがある場合は
こちら からご連絡ください。現状と異なる場合は、現状を優先させていただきます。
取引態様の欄に「媒介」と表示された物件は「仲介物件」です。ご成約の際には仲介手数料を申し受けます。
生活情報
名古屋市の暮らしデータ
名古屋市は、1871年の廃藩置県で、新政府により名古屋県(翌年愛知県と改称)が設置され、管内を6大区に分けて名古屋と熱田が第1大区とされたのが起源です。その後1878年、名古屋区として初めて独立行政区となり、1889年10月1日の市制施行で、名古屋市は人口15万7,496人、面積約13.34km2でスタートしました。近隣の市町村の編入などもあり、現在では市域326.50km2、人口約230万人の規模となりました。
基本データ
市区役所所在地 | 名古屋市中区三の丸3-1-1 |
---|---|
公式ホームページURL | https://www.city.nagoya.jp/ |
総人口 | 2,332,176人 |
人口増減率(2015年/2020年) | 101.6% |
地域のおすすめ情報ブログ
一覧を見る
-
【港区】行列のできる中華料理屋!こんにちは!ピタットハウス金山北店です!本日ご紹介するのは港区にある辛い物好きにはおすすめの「中華料理四川」さんです!地元の方に...続きを読む
-
【中区】本格中国料理のお店!こんにちは!ピタットハウス金山北店です!本日ご紹介するのは中区新栄で本格中華が食べられる「四川料理川香」さんです!新栄エリアはさ...続きを読む
-
【中川区】買い物ついでに家系ラーメンこんにちは!ピタットハウス金山北店です!今回ご紹介するのはドンキホーテ中川山王店の中にある「横浜家系ラーメン山王家」さんです!よ...続きを読む
-
【中川区】中川金魚祭りに行ってきました!こんにちは!ピタットハウス金山北店です。今回は7月26?27日に行われた「中川金魚まつり」に行ってきました!なんと今年で70回目...続きを読む
丸の内駅近隣の駅から探す
名古屋市中区の近隣エリアから探す
FAQ
-
A. (仮称)ADC.BLD MARUNOUCHIビル(ACD4607514_9)の内見は、見学予約でお問い合わせいただくか、直接名古屋駅北店(0037-6001-09696)までご連絡ください。
-
A. 可能です。(仮称)ADC.BLD MARUNOUCHIビル(ACD4607514_9)周辺の情報は、ピタットハウスの地域情報ブログ「街ピタ」や住みたい街の暮らしデータをご活用ください。
-
A. (仮称)ADC.BLD MARUNOUCHIビル(ACD4607514_9)の費用は、こちらよりお問い合わせいただくか、直接名古屋駅北店(0037-6001-09696)までご連絡ください。
-
A. はい、可能です。賃貸希望物件リクエストをご利用ください。(仮称)ADC.BLD MARUNOUCHIビル(ACD4607514_9)に似た物件も合わせてご紹介させていただきます。