前へ
次へ
前へ
次へ
マンション

パークアクシス名駅南(1506)

NEW
9.9 万円
共益費 9,000
9.9万円
9.9万円
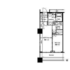
間取り
1LDK
専有面積
45.74㎡
所在階
15階建ての15階
向き
  • アイコン: 住所 愛知県名古屋市中村区名駅南2丁目7-67
  • アイコン: 交通 近鉄名古屋線 「近鉄名古屋駅」 徒歩10分 / 名古屋臨海高速鉄道 「ささしまライブ駅」 徒歩12分 / 名古屋市桜通線 「国際センター駅」 徒歩13分
簡単無料
アイコン: お電話 0037-6001-09696
IP電話ご利用のお客様 : 052-526-7553
ピタットハウス
名古屋駅北店
point!
お部屋探しはピタットハウス名古屋駅北店で
防犯防災面で頼もしい味方になる24時間セキュリティー採用、更に上階の住戸が気にならない最上階なので、上階住人の足音も聞こえず安心です。
お気軽にお問い合わせください!
簡単無料
お気軽にお問い合わせください!
物件情報・周辺環境・契約手続きについてなどお気軽にお問い合わせください。

設備・条件

建物・立地
  • エレベータ
  • 宅配ボックス
  • 都市ガス
  • 敷地内ごみ置き場
  • 都市ガス給湯
  • バイク置場
  • 公営水道
  • 下水
通信
  • CATV
  • BSアンテナ
  • CSアンテナ
  • BS・CS
セキュリティ
  • オートロック
  • TVモニター付きインターホン
  • 24時間セキュリティー
  • 日勤管理
部屋設備
  • フローリング
  • バルコニー
  • 室内洗濯機置場
  • 下駄箱
  • クローゼット
  • 24時間換気システム
  • 全居室洋室
  • クロゼット2ヶ所
冷暖房
  • エアコン
キッチン
  • システムキッチン
  • グリル
バス・トイレ
  • バス・トイレ別
  • 浴室乾燥機
  • 追い焚き風呂
  • 独立洗面台
  • 温水洗浄便座
  • シャワー
  • 洗面化粧台
  • 洗面所
  • トイレ
  • 洗面台
  • 脱衣所
特徴
  • 保証金不要

物件概要

物件種別

部屋種別 マンション
建物名称 パークアクシス名駅南(1506)
所在地 愛知県名古屋市中村区名駅南2丁目7-67 MAP
築年月 2006年2月 階数 15階建ての15階
建物構造 鉄筋コンクリート造 総戸数 169戸
間取り 1LDK 専有面積 45.74㎡
向き バルコニー面積 9.00㎡
その他 管理形態:日勤管理 

費用

賃料 9.9万円 初期費用の確認をする 初期費用の確認をする 共益費 9,000円
礼金 9.9万円 敷金 9.9万円
保証金 - 償却金 -
その他一時金 鍵交換代金:16500円 / 室内清掃費:78500円
その他月額費用 口座振替事務手数料:110円/月
住宅保険 要加入
保証会社 必須
保証会社補足 初回保証委託料(最低15,000円):月額賃料等の50%、 2年目以降:10,000円/年
更新料 - 更新事務手数料 11,000円

契約条件

貸家契約区分 普通賃貸借 契約期間 2年
入居可能日 2025年12月10日予定 空室状況を確認をする 空室状況を確認をする 引渡時期相談内容 -
フリーレント -
クレジットカード決済 -

駐車場

駐車場 なし 駐車場について質問する 駐車場について質問する
駐車場契約形態 -
駐車場備考 -
バイク置き場 有り(無料)
駐輪場 -

備考

その他 防犯防災面で頼もしい味方になる24時間セキュリティー採用、更に上階の住戸が気にならない最上階なので、上階住人の足音も聞こえず安心です。またゆったりめの延床面積45.74㎡の居室空間で、その上配達状況を気にせず外出できる宅配BOX付だから、手軽に配達商品をオーダーできます。ちなみに合理的なシステムキッチン付です。一人暮らしやカップルにお勧めの1LDK。実際の空間をご自身で体感ください。
関連リンク
取引態様 媒介 管理コード 4637029
情報登録(更新)日 2025年10月24日 次回更新予定日 2025年11月3日
備考 めやす賃料:

めやす賃料とは賃料、共益費・管理費、敷引金、更新料を含み、賃料等条件の改定がないものと仮定して4年間賃借した場合(定期借家の場合は契約期間)の1ヶ月当たりの金額です。

※敷引金は、敷金の償却、保証金の償却など、預かった金額から必ず引くものをいいます。
※めやす賃料は、消費者に適切な情報を提供するための表示であり事業者に一時金を推奨するものではありません。
※めやす賃料は、実際の総支払額と異なる場合があります。詳しくは不動産会社にご確認ください。  

スタッフコメント

スタッフコメント
  • ○ 事務所不可

周辺環境

  • 名古屋市立栄小学校:881m
    名古屋市立栄小学校:881m
  • ローソン名駅南2丁目店:228m
    ローソン名駅南2丁目店:228m
  • エディオン名古屋本店:343m
    エディオン名古屋本店:343m
  • CoCo壱番屋柳橋店:410m
    CoCo壱番屋柳橋店:410m
コンビニ
ローソン名駅南2丁目店
228m
買物
MEGAドン・キホーテUNY納屋
675m
ショッピング施設
名鉄百貨店本店メンズ館
803m
ドラッグストア
マツモトキヨシ広小路名駅南1丁目
514m
ホームセンター
エディオン名古屋本店
343m
病院
名古屋セントラル病院
1356m
役所
名古屋市中区役所
2333m
郵便局
住友生命名古屋ビル内郵便局
339m
図書館
愛知大学名古屋図書館
867m
交番
中村警察署
971m
公園
六反公園
594m
銀行
三菱UFJ銀行柳橋支店
517m
幼稚園
名駅南保育園
685m
小学校
名古屋市立栄小学校
881m
中学校
私立星槎名古屋中学校
630m
高校
私立愛知産業大学工業高校橘校舎
2218m

取扱店舗

ピタットハウス名古屋駅北店
ピタットハウス名古屋駅北店
株式会社名岐不動産
交通
地下鉄「名古屋」駅 1番出口より徒歩5分
営業時間
10:00 〜 19:00
定休日
毎週水曜日
お電話 0037-6001-09696 無料
メール お問い合わせ
  • お問い合わせ区分

  • 内見希望日時

    第一希望

    第二希望

  • お名前

    全角
  • ご希望の連絡方法

    メールアドレス

    電話番号

    半角
    半角
  • その他ご希望等

ピタットハウスの個人情報の取り扱いについて

ピタットハウスでは信頼されるサイトを目指して、物件情報の精度向上に努めています。
掲載物件に誤りがある場合は こちら からご連絡ください。現状と異なる場合は、現状を優先させていただきます。
取引態様の欄に「媒介」と表示された物件は「仲介物件」です。ご成約の際には仲介手数料を申し受けます。

生活情報

名古屋市の暮らしデータ

名古屋市は、1871年の廃藩置県で、新政府により名古屋県(翌年愛知県と改称)が設置され、管内を6大区に分けて名古屋と熱田が第1大区とされたのが起源です。その後1878年、名古屋区として初めて独立行政区となり、1889年10月1日の市制施行で、名古屋市は人口15万7,496人、面積約13.34km2でスタートしました。近隣の市町村の編入などもあり、現在では市域326.50km2、人口約230万人の規模となりました。

基本データ

市区役所所在地 名古屋市中区三の丸3-1-1
公式ホームページURL https://www.city.nagoya.jp/
総人口 2,332,176人
人口増減率(2015年/2020年) 101.6%
名古屋市の生活情報を詳しくみる

地域のおすすめ情報ブログ

一覧を見る

近鉄名古屋駅近隣の駅から探す

名古屋市中村区の近隣エリアから探す

FAQ

  • A. パークアクシス名駅南(ACD4637029_5)の内見は、見学予約でお問い合わせいただくか、直接名古屋駅北店(0037-6001-09696)までご連絡ください。
  • A. 可能です。パークアクシス名駅南(ACD4637029_5)周辺の情報は、ピタットハウスの地域情報ブログ「街ピタ」住みたい街の暮らしデータをご活用ください。
  • A. パークアクシス名駅南(ACD4637029_5)の費用は、こちらよりお問い合わせいただくか、直接名古屋駅北店(0037-6001-09696)までご連絡ください。
  • A. はい、可能です。賃貸希望物件リクエストをご利用ください。パークアクシス名駅南(ACD4637029_5)に似た物件も合わせてご紹介させていただきます。