前へ
次へ
前へ
次へ
マンション

グリーン筥松(102)

3.4 万円
共益費 -
-
3.4万円
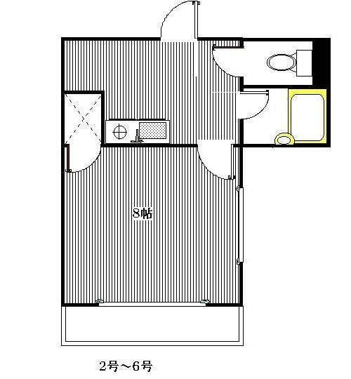
間取り
1K
専有面積
24.00㎡
所在階
3階建ての1階
向き
  • アイコン: 住所 福岡県福岡市東区筥松3丁目21番10号
  • アイコン: 交通 福岡市箱崎線 「貝塚駅」 徒歩11分 / 西鉄貝塚線 「貝塚駅」 徒歩11分 / 福岡市箱崎線 「箱崎九大前駅」 徒歩19分
簡単無料
アイコン: お電話 0037-6001-08572
IP電話ご利用のお客様 : 092-631-2029
ピタットハウス
福岡箱崎店
point!
お家賃3万円台前半でBT別、洗濯機も室内に置けます!
周辺にコンビニ・ドラッグストアがあり、生活便利な立地です。
お気軽にお問い合わせください!
簡単無料
お気軽にお問い合わせください!
物件情報・周辺環境・契約手続きについてなどお気軽にお問い合わせください。

設備・条件

建物・立地
  • プロパンガス
通信
  • インターネット対応
  • CATV
  • 光回線
部屋設備
  • フローリング
  • 室内洗濯機置場
  • 下駄箱
  • クローゼット
冷暖房
  • エアコン
バス・トイレ
  • バス・トイレ別
  • シャワー
  • 洗面台

物件概要

物件種別

部屋種別 マンション
建物名称 グリーン筥松(102)
所在地 福岡県福岡市東区筥松3丁目21番10号 MAP
築年月 1992年3月 階数 3階建ての1階
建物構造 鉄筋コンクリート造 総戸数 18戸
間取り 1K(洋8帖) 専有面積 24.00㎡
向き バルコニー面積 -
その他 管理形態:巡回管理 

費用

賃料 3.4万円 初期費用の確認をする 初期費用の確認をする 共益費 -
礼金 3.4万円 敷金 -
保証金 - 償却金 -
その他一時金 鍵交換費用:19800円
その他月額費用 町内会費:300円/月 火災保険料:1000円/月
住宅保険 要加入
保証会社 必須
保証会社補足 月額賃料の80%もしくは30%+更新料
更新料 - 更新事務手数料 -

契約条件

貸家契約区分 普通賃貸借 契約期間 2年
入居可能日 2026年1月31日予定 空室状況を確認をする 空室状況を確認をする 引渡時期相談内容 -
フリーレント -
クレジットカード決済 -

駐車場

駐車場 なし 駐車場について質問する 駐車場について質問する
駐車場契約形態 -
駐車場備考 -
バイク置き場 -
駐輪場 -

備考

その他
関連リンク
取引態様 媒介 管理コード 1056271
情報登録(更新)日 2026年1月5日 次回更新予定日 2026年1月14日
備考 めやす賃料:

めやす賃料とは賃料、共益費・管理費、敷引金、更新料を含み、賃料等条件の改定がないものと仮定して4年間賃借した場合(定期借家の場合は契約期間)の1ヶ月当たりの金額です。

※敷引金は、敷金の償却、保証金の償却など、預かった金額から必ず引くものをいいます。
※めやす賃料は、消費者に適切な情報を提供するための表示であり事業者に一時金を推奨するものではありません。
※めやす賃料は、実際の総支払額と異なる場合があります。詳しくは不動産会社にご確認ください。  

周辺環境

コンビニ
セブンイレブン福岡筥松3丁目店
295m
買物
ゆめマート筥松
754m
ショッピング施設
博多阪急
4607m
ドラッグストア
マツモトキヨシ松島店
1158m
ホームセンター
グッデイ東福岡店
1388m
病院
医療法人貝塚病院
1273m
役所
福岡市東区役所
2165m
郵便局
箱崎松原郵便局
1608m
図書館
福岡県立図書館
1669m
交番
東警察署
933m
公園
第29号筥松緑地
671m
銀行
JA福岡市東部本店
1136m
幼稚園
松島りすの森保育園
572m
小学校
福岡市立松島小学校
867m
中学校
福岡市立箱崎清松中学校
1879m
高校
私立博多女子高校
2280m

取扱店舗

ピタットハウス福岡箱崎店
ピタットハウス福岡箱崎店
有限会社マルヤ不動産商事
交通
JR鹿児島本線 箱崎駅より徒歩5分、福岡市営地下鉄箱崎線 箱崎九大前駅より徒歩5分です
営業時間
09:00 〜 18:00
定休日
祝・祭日・第2・第3 日・水曜日・12/29〜1/4 1/5より通常営業
  • 駐車場あり/近隣駐車場あり
お電話 0037-6001-08572 無料
メール お問い合わせ
  • お問い合わせ区分

  • 内見希望日時

    第一希望

    第二希望

  • お名前

    全角
  • ご希望の連絡方法

    メールアドレス

    電話番号

    半角
    半角
  • その他ご希望等

ピタットハウスの個人情報の取り扱いについて

ピタットハウスでは信頼されるサイトを目指して、物件情報の精度向上に努めています。
掲載物件に誤りがある場合は こちら からご連絡ください。現状と異なる場合は、現状を優先させていただきます。
取引態様の欄に「媒介」と表示された物件は「仲介物件」です。ご成約の際には仲介手数料を申し受けます。

生活情報

福岡市の暮らしデータ

福岡市は、北は玄界灘に臨み、海の中道と糸島半島で仕切られた博多湾を擁し、南は脊振山地、東は三郡山地に囲まれた福岡平野に位置しています。大都市の魅力と美しい自然とを併せ持ち、長い歴史の中で培われた伝統・文化に恵まれた、独自の個性と魅力を有します。わが国の主要都市(大阪、東京、札幌)までの距離と、東アジアの主要都市(釜山、ソウル、上海、北京、台北など)までの距離とがほぼ同じ範囲にあるため、国際線の定期航空路線も多く、アジア諸国との交流には最適の位置といえます。

基本データ

市区役所所在地 福岡市中央区天神1-8-1
公式ホームページURL https://www.city.fukuoka.lg.jp/
総人口 1,612,392人
人口増減率(2015年/2020年) 104.8%
福岡市の生活情報を詳しくみる

地域のおすすめ情報ブログ

一覧を見る

貝塚駅近隣の駅から探す

福岡市東区の近隣エリアから探す

FAQ

  • A. グリーン筥松(ADF1056271_6)の内見は、見学予約でお問い合わせいただくか、直接福岡箱崎店(0037-6001-08572)までご連絡ください。
  • A. 可能です。グリーン筥松(ADF1056271_6)周辺の情報は、ピタットハウスの地域情報ブログ「街ピタ」住みたい街の暮らしデータをご活用ください。
  • A. グリーン筥松(ADF1056271_6)の費用は、こちらよりお問い合わせいただくか、直接福岡箱崎店(0037-6001-08572)までご連絡ください。
  • A. はい、可能です。賃貸希望物件リクエストをご利用ください。グリーン筥松(ADF1056271_6)に似た物件も合わせてご紹介させていただきます。