前へ
次へ
前へ
次へ
マンション

パークキューブ愛宕山タワー(1005)

17.8 万円
共益費 -
17.8万円
17.8万円
間取り
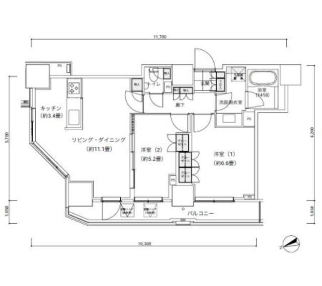
1R
専有面積
25.33㎡
所在階
31階建ての10階
向き
  • アイコン: 住所 東京都港区西新橋3丁目
  • アイコン: 交通 東京メトロ日比谷線 「神谷町駅」 徒歩7分 / 東京メトロ日比谷線 「虎ノ門ヒルズ駅」 徒歩8分 / 都営三田線 「御成門駅」 徒歩6分
簡単無料
アイコン: お電話 0037-6001-05237
IP電話ご利用のお客様 : 03-5909-5601
ピタットハウス
新宿西口店
point!
神谷町駅徒歩7分の地上31階建てマンションです
パークキューブ愛宕山タワーは2007年築のおすすめマンションです!1Rタイプ(25.33㎡)の単身者様向けの間取りです!
お気軽にお問い合わせください!
簡単無料
お気軽にお問い合わせください!
物件情報・周辺環境・契約手続きについてなどお気軽にお問い合わせください。

設備・条件

建物・立地
  • エレベータ
  • 宅配ボックス
  • フロントサービス
  • 耐震構造
  • 敷地内ごみ置き場
  • 常時ゴミ出し可能
  • タワー型マンション
通信
  • インターネット対応
  • CATV
  • BSアンテナ
  • CSアンテナ
セキュリティ
  • オートロック
  • モニタ付オートロック
部屋設備
  • フローリング
  • バルコニー
  • 室内洗濯機置場
  • ウォークインクローゼット
冷暖房
  • エアコン
キッチン
  • システムキッチン
バス・トイレ
  • バス・トイレ別
  • 浴室乾燥機
  • 追い焚き風呂
  • タンクレストイレ
特徴
  • ペット相談可
  • 事務所利用不可

物件概要

物件種別

部屋種別 マンション
建物名称 パークキューブ愛宕山タワー(1005)
所在地 東京都港区西新橋3丁目 MAP
築年月 2007年2月 階数 31階建ての10階
建物構造 鉄筋コンクリート造 総戸数 -
間取り 1R 専有面積 25.33㎡
向き バルコニー面積 5.00㎡
その他 管理形態:日勤管理 

費用

賃料 17.8万円 初期費用の確認をする 初期費用の確認をする 共益費 -
礼金 17.8万円 敷金 17.8万円
保証金 - 償却金 -
その他一時金 室内清掃費:55000円 / 鍵交換費:16500円
その他月額費用 口座振替事務手数料:220円/月
住宅保険 要加入
保証会社 必須
保証会社補足 初回保証委託料(最低20,000円):月額賃料等の50%、 2年目以降:9,600円/年
更新料 更新後賃料:1ヶ月 更新事務手数料 -

契約条件

貸家契約区分 普通賃貸借 契約期間 2年
入居可能日 2026年4月30日予定 空室状況を確認をする 空室状況を確認をする 引渡時期相談内容 -
フリーレント -
クレジットカード決済 -

駐車場

駐車場 なし 駐車場について質問する 駐車場について質問する
駐車場契約形態 -
駐車場備考 -
バイク置き場 -
駐輪場 -

備考

その他
関連リンク 港区の賃貸情報一覧
タワーマンションの賃貸物件一覧はこちら
フィットネスジム付きマンションの物件一覧はこちら
ピタットハウス新宿西口店のホームページはこちら
取引態様 媒介 管理コード 3571009
情報登録(更新)日 2026年3月28日 次回更新予定日 2026年4月6日
備考 めやす賃料:

めやす賃料とは賃料、共益費・管理費、敷引金、更新料を含み、賃料等条件の改定がないものと仮定して4年間賃借した場合(定期借家の場合は契約期間)の1ヶ月当たりの金額です。

※敷引金は、敷金の償却、保証金の償却など、預かった金額から必ず引くものをいいます。
※めやす賃料は、消費者に適切な情報を提供するための表示であり事業者に一時金を推奨するものではありません。
※めやす賃料は、実際の総支払額と異なる場合があります。詳しくは不動産会社にご確認ください。  

スタッフコメント

スタッフコメント
  • パークキューブ愛宕山タワーのことならピタットハウス新宿西口店までお問合せください。都心部の物件はどのエリアでも取り扱い可能です。ご内覧は物件現地でお待ち合わせもOK。ほかの物件もご検討いただく場合はまとめてご案内も可能です。ご希望の条件を教えていただければ、市場に出ている情報を事前にメールでご紹介いたします。

周辺環境

コンビニ
ローソン慈恵医大本館店
220m
買物
成城石井愛宕グリーンヒルズ店
465m
ショッピング施設
EXITMELSA
1926m
ドラッグストア
トモズ虎ノ門ヒルズ店
388m
ホームセンター
IDC OTSUKA Bedro
1670m
病院
東京慈恵会医科大学附属病院
209m
役所
港区役所
975m
郵便局
芝郵便局
267m
図書館
東京慈恵会医科大学学術情報センタ
365m
交番
愛宕警察署
677m
公園
御成門緑地
528m
銀行
香川銀行東京支店
77m
幼稚園
グローバルキッズ虎ノ門保育園
446m
小学校
港区立御成門小学校
447m
中学校
港区立御成門中学校
405m
高校
私立正則高校
562m

取扱店舗

ピタットハウス新宿西口店
ピタットハウス新宿西口店
株式会社エスケイ・コミュニティー
交通
JR線「新宿」駅西口より徒歩6分都営大江戸線「新宿西口」駅D5出口より徒歩2分
営業時間
09:30 〜 18:30
定休日
毎週水曜日・2月・3月は無休、夏季休暇無し
お電話 0037-6001-05237 無料
メール お問い合わせ
  • お問い合わせ区分

  • 内見希望日時

    第一希望

    第二希望

  • お名前

    全角
  • ご希望の連絡方法

    メールアドレス

    電話番号

    半角
    半角
  • その他ご希望等

ピタットハウスの個人情報の取り扱いについて

ピタットハウスでは信頼されるサイトを目指して、物件情報の精度向上に努めています。
掲載物件に誤りがある場合は こちら からご連絡ください。現状と異なる場合は、現状を優先させていただきます。
取引態様の欄に「媒介」と表示された物件は「仲介物件」です。ご成約の際には仲介手数料を申し受けます。

その他の取扱店舗

不動産会社毎に募集条件等が異なる場合があります。詳細は各店の物件詳細ページにてご確認ください。
交通
JR中央線「阿佐ヶ谷駅」南口徒歩1分ロータリーに面した駅直結の店舗です。
営業時間
10:00 〜 19:00
定休日
毎週火・水曜日・1月から3月は毎日営業・冬期休業12/28から1/4まで
  • キッズスペースあり
お電話 0037-6001-07674 無料
交通
JR中央線 『武蔵境駅』 南口より 徒歩30秒 駐車場有 
営業時間
10:00 〜 19:00
定休日
毎週水曜日・冬期休業・12/28から1/4まで
  • 近隣駐車場あり/キッズスペースあり
お電話 0037-6001-08163 無料

生活情報

港区の暮らしデータ

港区は、1947年3月15日に旧芝、麻布、赤坂の3区が統合され誕生しました。東京都のほぼ南東部に位置し、北西一帯の高台地と、南東の東京湾に面した低地および芝浦海浜の埋め立て地からなっています。高台地は秩父山麓に端を発している武蔵野台地の末端で、これらの台地は小さな突起状の丘陵となっているため、東京23区の中で最も起伏に富んだ地形をもっています。

基本データ

市区役所所在地 港区芝公園1-5-25
公式ホームページURL https://www.city.minato.tokyo.jp/
総人口 260,486人
人口増減率(2015年/2020年) 107.1%
港区の生活情報を詳しくみる

地域のおすすめ情報ブログ

一覧を見る

神谷町駅近隣の駅から探す

港区の近隣エリアから探す

FAQ

  • A. パークキューブ愛宕山タワー(ADJ3571009_208)の内見は、見学予約でお問い合わせいただくか、直接新宿西口店(0037-6001-05237)までご連絡ください。
  • A. 可能です。パークキューブ愛宕山タワー(ADJ3571009_208)周辺の情報は、ピタットハウスの地域情報ブログ「街ピタ」住みたい街の暮らしデータをご活用ください。
  • A. パークキューブ愛宕山タワー(ADJ3571009_208)の費用は、こちらよりお問い合わせいただくか、直接新宿西口店(0037-6001-05237)までご連絡ください。
  • A. はい、可能です。賃貸希望物件リクエストをご利用ください。パークキューブ愛宕山タワー(ADJ3571009_208)に似た物件も合わせてご紹介させていただきます。