志村坂上駅徒歩6分の地上8階建てマンションです
コンフォリア志村坂上は2021年築のきれいなマンションです! 1DKタイプ(28.52㎡)単身者様に適した間取りです!

お気軽にお問い合わせください!
物件情報・周辺環境・契約手続きについてなどお気軽にお問い合わせください。
設備・条件
|
|
---|---|
|
|
|
|
|
|
|
|
|
|
|
|
物件概要
物件種別
部屋種別 | マンション | ||
---|---|---|---|
建物名称 | コンフォリア志村坂上(209) | ||
所在地 | 東京都板橋区小豆沢1丁目 | ||
築年月 | 2021年3月 | 階数 | 8階建ての2階 |
建物構造 | 鉄筋コンクリート造 | 総戸数 | 58戸 |
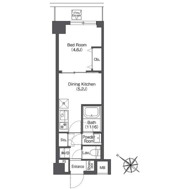
間取り | 1DK(DK7.3帖 洋4.2帖) | 専有面積 | 28.52㎡ |
向き | 北西 | バルコニー面積 | - |
その他 | - |
費用
賃料 |
11万円
初期費用の確認をする
|
共益費 | 10,000円 |
---|---|---|---|
礼金 | 11万円 | 敷金 | 11万円 |
保証金 | - | 償却金 | - |
その他一時金 | 鍵交換代:33000円 / 清掃費:38500円 / エアコン清掃費:11000円 | ||
その他月額費用 | - | ||
住宅保険 | 要加入(2年16550円) | ||
保証会社 | 必須 | ||
保証会社補足 | エポスカード(RP) 保証料:賃料等の50%(最低2万)、月額保証料:賃料等の1%(更新料無) | ||
更新料 | 更新後賃料:1ヶ月 | 更新事務手数料 | - |
契約条件
貸家契約区分 | 普通賃貸借 | 契約期間 | 2年 |
---|---|---|---|
入居可能日 |
2025年11月30日予定
空室状況を確認をする
|
引渡時期相談内容 | - |
フリーレント | - | ||
クレジットカード決済 | - |
駐車場
駐車場 |
なし
駐車場について質問する
|
||
---|---|---|---|
駐車場契約形態 | - | ||
駐車場備考 | - | ||
バイク置き場 | - | ||
駐輪場 | - |
備考
その他 | ■指定保証会社利用必須※一部法人契約除く・敷金1ヶ月積み増し ■ペット飼育時敷金1ヶ月積み増し(小型犬1匹or猫2匹まで) | ||
---|---|---|---|
関連リンク |
板橋区の賃貸情報一覧 新築マンション・建築予定の賃貸物件一覧はこちら フィットネスジム付きマンションの物件一覧はこちら 先行申込についてはこちらをご覧ください |
||
取引態様 | 媒介 | 管理コード | 3614581 |
情報登録(更新)日 | 2025年10月9日 | 次回更新予定日 | 2025年10月15日 |
スタッフコメント

- コンフォリア志村坂上のことならピタットハウス新宿西口店までお問合せください。都心部の物件はどのエリアでも取り扱い可能です。ご内覧は物件現地でお待ち合わせもOK。ほかの物件もご検討いただく場合はまとめてご案内も可能です。ご希望の条件を教えていただければ、市場に出ている情報を事前にメールでご紹介いたします。本物件の空き予定の(退去前で内見できない)お部屋については、「先行申込」が可能です。先行申込は1部屋のみ受付いたします。※「先行申込」は内見後に契約をするかしないかを判断する形態の申込のことをいいます。ご希望の際は「その他ご希望」欄に先行申込希望とご入力ください。詳細は関連リンクをご覧ください
周辺環境
- コンビニ
-
ファミリーマート小豆沢一丁目店142m
- 買物
-
Hanamasa Plus+板橋274m
- ショッピング施設
-
P’パルコ5230m
- ドラッグストア
-
ウエルシア板橋志村店426m
- ホームセンター
-
ビバホーム板橋前野店903m
- 病院
-
医療法人財団健康文化会小豆沢病院201m
- 役所
-
板橋区役所2721m
- 郵便局
-
板橋志村郵便局358m
- 図書館
-
板橋区立志村図書館228m
- 交番
-
警視庁第十方面本部1983m
- 公園
-
見次公園673m
- 銀行
-
東京信用金庫志村支店198m
- 幼稚園
-
ひまわりキッズガーデン志村202m
- 小学校
-
板橋区立志村第二小学校243m
- 中学校
-
板橋区立志村第二中学校542m
- 高校
-
東京都立赤羽北桜高校1294m
取扱店舗

ピタットハウス新宿西口店
株式会社エスケイ・コミュニティー
- 交通
- JR山手線「新宿」駅徒歩6分都営大江戸線「新宿西口」駅徒歩2分
- 営業時間
- 09:30 〜 18:30
- 定休日
- 毎週水曜日・2月・3月は無休、夏季休暇無し・年末年始
ピタットハウスでは信頼されるサイトを目指して、物件情報の精度向上に努めています。
掲載物件に誤りがある場合は
こちら からご連絡ください。現状と異なる場合は、現状を優先させていただきます。
取引態様の欄に「媒介」と表示された物件は「仲介物件」です。ご成約の際には仲介手数料を申し受けます。
その他の取扱店舗
不動産会社毎に募集条件等が異なる場合があります。詳細は各店の物件詳細ページにてご確認ください。- 交通
- つくばエクスプレス浅草駅A2出口を出まして左隣のビルの1階に店舗ございます。
- 営業時間
- 10:00 〜 18:00
- 定休日
- 毎週水曜日・日曜日・夏季休業・8/10~8/17
- 交通
- JR中央線「阿佐ヶ谷駅」南口徒歩1分ロータリーに面した駅直結の店舗です。
- 営業時間
- 10:00 〜 19:00
- 定休日
- 毎週火・水曜日・1月から3月は毎日営業・夏季休業8/12から8/20まで
生活情報
板橋区の暮らしデータ
板橋区は、1932年の市郡併合により誕生しました。1947年に特別区として東京22区の一つとなり、同年8月に面積の60%が練馬区として分離し、現在に至っています。23区の北西部に位置し、区内には荒川・新河岸川・石神井川の水辺空間が広がり自然林が多く残されています。一方、駅周辺を中心とした近隣型の商店街が形成され利便性が高いです。こうした環境から定住性のある都市として成熟し、地域住民のふれあいも活発です。
基本データ
市区役所所在地 | 板橋区板橋2-66-1 |
---|---|
公式ホームページURL | https://www.city.itabashi.tokyo.jp/ |
総人口 | 584,483人 |
人口増減率(2015年/2020年) | 104.0% |
地域のおすすめ情報ブログ
一覧を見る
-
駅近・セキュリティ充実 レユシール弥生グループ650店舗のネットワークでお客様のお部屋探しをサポートする方南町唯一の大手不動産会社ピタットハウス方南町店です。東武東上...続きを読む
-
セキュリティ充実・駅近 女性にも安心!グループ650店舗のネットワークでお客様のお部屋探しをサポートする方南町唯一の大手不動産会社ピタットハウス方南町店です。昨日のご...続きを読む
-
オートロックで女性にも安心!駅至近!グループ650店舗のネットワークでお客様のお部屋探しをサポートする方南町唯一の大手不動産会社ピタットハウス方南町店です。本日は、...続きを読む
-
新生活に。新築駅近の賃貸マンション!グループ650店舗のネットワークでお客様のお部屋探しをサポートする方南町唯一の大手不動産会社ピタットハウス方南町店です。新築で駅...続きを読む
志村坂上駅近隣の駅から探す
板橋区の近隣エリアから探す
FAQ
-
A. コンフォリア志村坂上(ADJ3614581_22)の内見は、見学予約でお問い合わせいただくか、直接新宿西口店(0037-6001-05237)までご連絡ください。
-
A. 可能です。コンフォリア志村坂上(ADJ3614581_22)周辺の情報は、ピタットハウスの地域情報ブログ「街ピタ」や住みたい街の暮らしデータをご活用ください。
-
A. コンフォリア志村坂上(ADJ3614581_22)の費用は、こちらよりお問い合わせいただくか、直接新宿西口店(0037-6001-05237)までご連絡ください。
-
A. はい、可能です。賃貸希望物件リクエストをご利用ください。コンフォリア志村坂上(ADJ3614581_22)に似た物件も合わせてご紹介させていただきます。