前へ
次へ
前へ
次へ
マンション

カスタリア用賀(0406)

11.7 万円
共益費 8,000
11.7万円
11.7万円
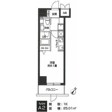
間取り
1R
専有面積
25.01㎡
所在階
9階建ての4階
向き
-
  • アイコン: 住所 東京都世田谷区玉川台1丁目
  • アイコン: 交通 東急田園都市線 「用賀駅」 徒歩7分
簡単無料
アイコン: お電話 0037-6001-05237
IP電話ご利用のお客様 : 03-5909-5601
ピタットハウス
新宿西口店
point!
用賀駅徒歩6分の地上9階建てマンションです
カスタリア用賀は2007年築のおすすめマンションです!1Rタイプ(25.01㎡)の単身者様向けの間取りです!
お気軽にお問い合わせください!
簡単無料
お気軽にお問い合わせください!
物件情報・周辺環境・契約手続きについてなどお気軽にお問い合わせください。

設備・条件

建物・立地
  • エレベータ
  • 宅配ボックス
  • 敷地内駐車場
  • 駐輪場
  • 都市ガス
  • 公営水道
通信
  • インターネット対応
  • CATV
  • BSアンテナ
  • CSアンテナ
セキュリティ
  • オートロック
  • TVモニター付きインターホン
  • 火災警報器(報知機)
部屋設備
  • フローリング
  • バルコニー
  • 室内洗濯機置場
  • 下駄箱
  • クローゼット
冷暖房
  • エアコン
キッチン
  • システムキッチン
バス・トイレ
  • バス・トイレ別
  • 温水洗浄便座
  • シャワー
  • 洗面台
特徴
  • ペット相談可

物件概要

物件種別

部屋種別 マンション
建物名称 カスタリア用賀(0406)
所在地 東京都世田谷区玉川台1丁目 MAP
築年月 2007年6月 階数 9階建ての4階
建物構造 鉄筋コンクリート造 総戸数 45戸
間取り 1R 専有面積 25.01㎡
向き - バルコニー面積 -
その他 -

費用

賃料 11.7万円 初期費用の確認をする 初期費用の確認をする 共益費 8,000円
礼金 11.7万円 敷金 11.7万円
保証金 - 償却金 -
その他一時金 -
その他月額費用 -
住宅保険 要加入
保証会社 -
保証会社補足 -
更新料 117,000円 更新事務手数料 -

契約条件

貸家契約区分 普通賃貸借 契約期間 2年
入居可能日 2026年5月3日予定 空室状況を確認をする 空室状況を確認をする 引渡時期相談内容 -
フリーレント -
クレジットカード決済 -

駐車場

駐車場 有り 月額26,400円 駐車場について質問する 駐車場について質問する
駐車場契約形態 -
駐車場備考 空き・寸法確認要
バイク置き場 -
駐輪場 -

備考

その他 小型犬(敷金1ヶ月追加)・猫(敷金2ヶ月追加)鍵交換費用:22,000円 契約時必要1年未満で解約された場合は違約金(賃料の1ヶ月分相当額)が発生します。◆保証会社加入が条件で敷金1ケ月、保証会社に加入しない場合は敷金2ケ月
関連リンク 世田谷区の賃貸情報一覧
新築マンション・建築予定の賃貸物件一覧はこちら
フィットネスジム付きマンションの物件一覧はこちら
ピタットハウス新宿西口店のホームページはこちら
取引態様 媒介 管理コード 3898017
情報登録(更新)日 2026年4月30日 次回更新予定日 2026年5月7日
備考 めやす賃料:

めやす賃料とは賃料、共益費・管理費、敷引金、更新料を含み、賃料等条件の改定がないものと仮定して4年間賃借した場合(定期借家の場合は契約期間)の1ヶ月当たりの金額です。

※敷引金は、敷金の償却、保証金の償却など、預かった金額から必ず引くものをいいます。
※めやす賃料は、消費者に適切な情報を提供するための表示であり事業者に一時金を推奨するものではありません。
※めやす賃料は、実際の総支払額と異なる場合があります。詳しくは不動産会社にご確認ください。  

スタッフコメント

スタッフコメント
  • カスタリア用賀のことならピタットハウス新宿西口店までお問合せください。都心部の物件はどのエリアでも取り扱い可能です。ご内覧は物件現地でお待ち合わせもOK。ほかの物件もご検討いただく場合はまとめてご案内も可能です。ご希望の条件を教えていただければ、市場に出ている情報を事前にメールでご紹介いたします。

周辺環境

コンビニ
ファミリーマート玉川台二丁目店
236m
買物
ミニコープ瀬田店
296m
ショッピング施設
玉川タカシマヤ
1172m
ドラッグストア
ココカラファイン用賀駅前店
696m
ホームセンター
ニトリ環八用賀店
820m
病院
公益財団法人日産厚生会玉川病院
1158m
役所
世田谷区役所二子玉川出張所
983m
郵便局
世田谷瀬田郵便局
351m
図書館
世田谷区立玉川台図書館
245m
交番
玉川警察署
2162m
公園
上野毛四丁目小緑地
1012m
銀行
城南信用金庫瀬田支店
409m
幼稚園
グローバルキッズ用賀園
380m
小学校
世田谷区立瀬田小学校
557m
中学校
世田谷区立瀬田中学校
691m
高校
私立三田国際学園高校
1039m

取扱店舗

ピタットハウス新宿西口店
ピタットハウス新宿西口店
株式会社エスケイ・コミュニティー
交通
JR線「新宿」駅西口より徒歩6分、都営大江戸線「新宿西口」駅D5出口より徒歩2分
営業時間
09:30 〜 18:30
定休日
毎週水曜日・GW休暇、5月2日(土)〜5月6日(水)・2月・3月は無休、夏季休暇無し
お電話 0037-6001-05237 無料
メール お問い合わせ
  • お問い合わせ区分

  • 内見希望日時

    第一希望

    第二希望

  • お名前

    全角
  • ご希望の連絡方法

    メールアドレス

    電話番号

    半角
    半角
  • その他ご希望等

ピタットハウスの個人情報の取り扱いについて

ピタットハウスでは信頼されるサイトを目指して、物件情報の精度向上に努めています。
掲載物件に誤りがある場合は こちら からご連絡ください。現状と異なる場合は、現状を優先させていただきます。
取引態様の欄に「媒介」と表示された物件は「仲介物件」です。ご成約の際には仲介手数料を申し受けます。

その他の取扱店舗

不動産会社毎に募集条件等が異なる場合があります。詳細は各店の物件詳細ページにてご確認ください。
交通
JR中央線 『武蔵境駅』 南口より 徒歩30秒 駐車場有 
営業時間
10:00 〜 19:00
定休日
毎週水曜日・冬期休業・12/28から1/4まで
  • 近隣駐車場あり/キッズスペースあり
お電話 0037-6001-08163 無料
交通
東京メトロ東西線 木場駅 4A出口 徒歩1分
営業時間
10:00 〜 17:00
定休日
毎週土日・祝祭日
  • 近隣駐車場あり
お電話 0037-6001-05750 無料
交通
JR中央線・東京メトロ東西線中野駅南口より徒歩1分
営業時間
10:00 〜 18:00
定休日
毎週水曜日・GW休業:5/2〜5/6
お電話 0037-6001-06881 無料
交通
東急田園都市線 「用賀」駅 徒歩1分
営業時間
10:00 〜 19:00
定休日
毎週水曜日・店舗改装工事:臨時休業4/25〜5/22・お問合せやご案内は通常通り対応致します
お電話 0037-6001-01431 無料
交通
JR中央線「阿佐ヶ谷駅」南口徒歩1分ロータリーに面した駅直結の店舗です。
営業時間
10:00 〜 19:00
定休日
毎週火・水曜日・1月から3月は毎日営業・冬期休業12/28から1/4まで
  • キッズスペースあり
お電話 0037-6001-07674 無料

生活情報

世田谷区の暮らしデータ

世田谷区は、23区中の西南端にあり、東は目黒区・渋谷区、北は杉並区・三鷹市、西は狛江市・調布市、南は大田区とそれぞれ接し、さらに多摩川をはさんで神奈川県川崎市と向かい合っています。現在約92万人の住む住宅都市となり、開発が進む中、緑化の推進や環境保全など、潤いのあるまちづくりに取り組んでいます。

基本データ

市区役所所在地 世田谷区世田谷4-21-27
公式ホームページURL https://www.city.setagaya.lg.jp/
総人口 943,664人
人口増減率(2015年/2020年) 104.5%
世田谷区の生活情報を詳しくみる

地域のおすすめ情報ブログ

一覧を見る

用賀駅近隣の駅から探す

世田谷区の近隣エリアから探す

FAQ

  • A. カスタリア用賀(ADJ3898017_39)の内見は、見学予約でお問い合わせいただくか、直接新宿西口店(0037-6001-05237)までご連絡ください。
  • A. 可能です。カスタリア用賀(ADJ3898017_39)周辺の情報は、ピタットハウスの地域情報ブログ「街ピタ」住みたい街の暮らしデータをご活用ください。
  • A. カスタリア用賀(ADJ3898017_39)の費用は、こちらよりお問い合わせいただくか、直接新宿西口店(0037-6001-05237)までご連絡ください。
  • A. はい、可能です。賃貸希望物件リクエストをご利用ください。カスタリア用賀(ADJ3898017_39)に似た物件も合わせてご紹介させていただきます。