■都営浅草線 浅草橋駅 徒歩9分■JR山手線 秋葉原駅 徒歩14分

お気軽にお問い合わせください!
物件情報・周辺環境・契約手続きについてなどお気軽にお問い合わせください。
設備・条件
|
|
---|---|
|
|
|
|
|
|
|
|
物件概要
物件種別
部屋種別 | マンション | ||
---|---|---|---|
建物名称 | La Douceur東神田(1003) | ||
所在地 | 東京都千代田区東神田2丁目 | ||
築年月 | 2020年6月 | 階数 | 12階建ての10階 |
建物構造 | 鉄筋コンクリート造 | 総戸数 | 51戸 |
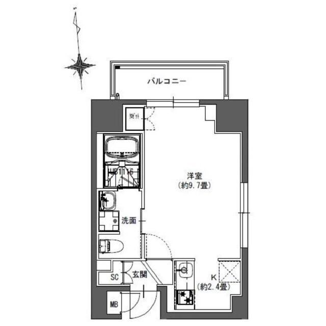
間取り | 1K(洋8帖) | 専有面積 | 25.65㎡ |
向き | 南 | バルコニー面積 | - |
その他 | - |
費用
賃料 |
12.8万円
初期費用の確認をする
|
共益費 | 15,000円 |
---|---|---|---|
礼金 | 12.8万円 | 敷金 | - |
保証金 | - | 償却金 | - |
その他一時金 | 鍵交換代:33000円 / 清掃費:38500円 / エアコン清掃費:11000円 | ||
その他月額費用 | - | ||
住宅保険 | 要加入(2年16550円) | ||
保証会社 | 必須 | ||
保証会社補足 | エポスカード(RP) 保証料:賃料等の50%(最低2万)、月額保証料:賃料等の1%(更新料無) | ||
更新料 | 更新後賃料:1ヶ月 | 更新事務手数料 | - |
契約条件
貸家契約区分 | 普通賃貸借 | 契約期間 | 2年 |
---|---|---|---|
入居可能日 |
2025年10月31日予定
空室状況を確認をする
|
引渡時期相談内容 | - |
フリーレント | - | ||
クレジットカード決済 | - |
駐車場
駐車場 |
なし
駐車場について質問する
|
||
---|---|---|---|
駐車場契約形態 | - | ||
駐車場備考 | - | ||
バイク置き場 | - | ||
駐輪場 | - |
備考
その他 | ■敷金0ヶ月※法人契約の場合は1ヶ月積み増し ■ペット飼育相談可※小型犬または猫1匹迄(敷金1ヶ月積増) ■指定保証会社利用必須(一部法人契約除く) | ||
---|---|---|---|
関連リンク | |||
取引態様 | 媒介 | 管理コード | 4123821 |
情報登録(更新)日 | 2025年10月2日 | 次回更新予定日 | 2025年10月8日 |
取扱店舗

ピタットハウス新宿西口店
株式会社エスケイ・コミュニティー
- 交通
- JR山手線「新宿」駅徒歩6分都営大江戸線「新宿西口」駅徒歩2分
- 営業時間
- 09:30 〜 18:30
- 定休日
- 毎週水曜日・2月・3月は無休、夏季休暇無し・年末年始
ピタットハウスでは信頼されるサイトを目指して、物件情報の精度向上に努めています。
掲載物件に誤りがある場合は
こちら からご連絡ください。現状と異なる場合は、現状を優先させていただきます。
取引態様の欄に「媒介」と表示された物件は「仲介物件」です。ご成約の際には仲介手数料を申し受けます。
その他の取扱店舗
不動産会社毎に募集条件等が異なる場合があります。詳細は各店の物件詳細ページにてご確認ください。- 交通
- JR山手線「神田駅」 南口徒歩1分
- 営業時間
- 09:30 〜 18:30
- 定休日
- 日・祝定休
生活情報
千代田区の暮らしデータ
千代田区は、1947年3月15日に麹町区と神田区が統合されて誕生しました。千代田という区名は、江戸城の別名「千代田城」にちなんだものです。区の中央には、区の面積の約12%を占める皇居(1.43km2)があります。
基本データ
市区役所所在地 | 千代田区九段南1-2-1 |
---|---|
公式ホームページURL | https://www.city.chiyoda.lg.jp/ |
総人口 | 66,680人 |
人口増減率(2015年/2020年) | 114.2% |
地域のおすすめ情報ブログ
-
楽器の聖地 ♪ 御茶ノ水こんにちは!ピタットハウス御茶ノ水店です(^^♪今回は、御茶ノ水といえば!な名所「御茶ノ水楽器街」をご紹介。JR御茶ノ水駅の御茶...続きを読む
-
夏にピッタリ、さらっと食べたいときに!こんにちは♪ピタットハウス御茶ノ水店です!今回は夏のランチにぴったりなお蕎麦屋さんをご紹介!御茶ノ水駅から徒歩3分のワテラス3階...続きを読む
-
神田明神こんにちは♪ピタットハウス御茶ノ水店です!今回は神田明神をご紹介!!神田明神は御茶ノ水駅から徒歩5分に位置する大己貴命様・少彦名...続きを読む
-
トラットリアレモンこんにちは!ピタットハウス御茶ノ水店です(^^♪今回ご紹介するお店はイタリアンレストラン【トラットリアレモン】さん!レモン画翠が...続きを読む
千代田区の近隣エリアから探す
FAQ
-
A. La Douceur東神田(ADJ4123821_136)の内見は、見学予約でお問い合わせいただくか、直接新宿西口店(0037-6001-05237)までご連絡ください。
-
A. 可能です。La Douceur東神田(ADJ4123821_136)周辺の情報は、ピタットハウスの地域情報ブログ「街ピタ」や住みたい街の暮らしデータをご活用ください。
-
A. La Douceur東神田(ADJ4123821_136)の費用は、こちらよりお問い合わせいただくか、直接新宿西口店(0037-6001-05237)までご連絡ください。
-
A. はい、可能です。賃貸希望物件リクエストをご利用ください。La Douceur東神田(ADJ4123821_136)に似た物件も合わせてご紹介させていただきます。