戸越銀座駅徒歩5分の地上6階建てマンションです
ORSUS戸越銀座は2023年築のきれいなマンションです! 1LDK(40.47㎡)ゆとりのある単身者様向けの間取りです。

お気軽にお問い合わせください!
物件情報・周辺環境・契約手続きについてなどお気軽にお問い合わせください。
設備・条件
|
|
---|---|
|
|
|
|
|
|
|
|
|
|
|
|
|
|
物件概要
物件種別
部屋種別 | マンション | ||
---|---|---|---|
建物名称 | ORSUS戸越銀座(310) | ||
所在地 | 東京都品川区荏原2丁目 | ||
築年月 | 2023年10月 | 階数 | 6階建ての3階 |
建物構造 | 鉄筋コンクリート造 | 総戸数 | 92戸 |
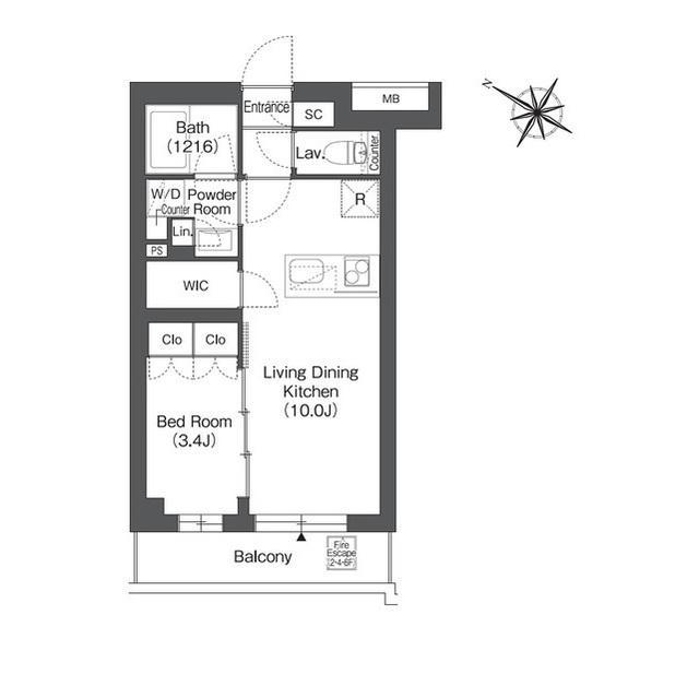
間取り | 1LDK(LDK18.9帖 洋5.7帖) | 専有面積 | 40.47㎡ |
向き | 北東 | バルコニー面積 | - |
その他 | - |
費用
賃料 |
20.6万円
初期費用の確認をする
|
共益費 | 15,000円 |
---|---|---|---|
礼金 | 20.6万円 | 敷金 | 20.6万円 |
保証金 | - | 償却金 | - |
その他一時金 | 鍵交換代:22000円 / 清掃費:44000円 / エアコン清掃費:22000円 | ||
その他月額費用 | - | ||
住宅保険 | 要加入(2年16550円) | ||
保証会社 | 必須 | ||
保証会社補足 | クレディセゾン 保証料:賃料等50%(最低1.5万)、月次:賃料等1%(更新料無)、口座振替手数料借主負担 | ||
更新料 | 更新後賃料:1ヶ月 | 更新事務手数料 | - |
契約条件
貸家契約区分 | 普通賃貸借 | 契約期間 | 2年 |
---|---|---|---|
入居可能日 |
2026年1月31日予定
空室状況を確認をする
|
引渡時期相談内容 | - |
フリーレント | - | ||
クレジットカード決済 | - |
駐車場
駐車場 |
なし
駐車場について質問する
|
||
---|---|---|---|
駐車場契約形態 | - | ||
駐車場備考 | - | ||
バイク置き場 | - | ||
駐輪場 | - |
備考
その他 | 指定保証会社利用必須※一部法人契約除く・敷金積増1ヶ月■礼金0か月※1年以内解約時賃料1か月分違約金有■退去時室内及びエアコンクリーニング費用借主負担■楽器演奏、SOHO利用不可■ | ||
---|---|---|---|
関連リンク |
品川区の賃貸情報一覧 新築マンション・建築予定の賃貸物件一覧はこちら フィットネスジム付きマンションの物件一覧はこちら ピタットハウス新宿西口店のホームページはこちら |
||
取引態様 | 媒介 | 管理コード | 4292377 |
情報登録(更新)日 | 2025年10月4日 | 次回更新予定日 | 2025年10月10日 |
スタッフコメント

- ORSUS戸越銀座のことならピタットハウス新宿西口店までお問合せください。都心部の物件はどのエリアでも取り扱い可能です。ご内覧は物件現地でお待ち合わせもOK。ほかの物件もご検討いただく場合はまとめてご案内も可能です。ご希望の条件を教えていただければ、市場に出ている情報を事前にメールでご紹介いたします。
取扱店舗

ピタットハウス新宿西口店
株式会社エスケイ・コミュニティー
- 交通
- JR山手線「新宿」駅徒歩6分都営大江戸線「新宿西口」駅徒歩2分
- 営業時間
- 09:30 〜 18:30
- 定休日
- 毎週水曜日・2月・3月は無休、夏季休暇無し・年末年始
ピタットハウスでは信頼されるサイトを目指して、物件情報の精度向上に努めています。
掲載物件に誤りがある場合は
こちら からご連絡ください。現状と異なる場合は、現状を優先させていただきます。
取引態様の欄に「媒介」と表示された物件は「仲介物件」です。ご成約の際には仲介手数料を申し受けます。
その他の取扱店舗
不動産会社毎に募集条件等が異なる場合があります。詳細は各店の物件詳細ページにてご確認ください。- 交通
- JR総武線 亀戸駅
- 営業時間
- 10:00 〜 18:00
- 定休日
- 毎週水曜日、木曜日・GW休業・夏季休業・年末年始休業・冬季休業:12/28(日)〜1/3(土)
- 交通
- 東急目黒線・西小山駅より徒歩3分、「にこま通り商店街」の中にあります。
- 営業時間
- 10:00 〜 19:00
- 定休日
- 毎週火曜日・水曜日 ・夏季休業8月13日〜20日
- 交通
- JR中央線「阿佐ヶ谷駅」南口徒歩1分ロータリーに面した駅直結の店舗です。
- 営業時間
- 10:00 〜 19:00
- 定休日
- 毎週火・水曜日・1月から3月は毎日営業・夏季休業8/12から8/20まで
生活情報
品川区の暮らしデータ
品川区は、東京都の南東部に位置し、東京湾に面する臨海部と山の手に連なる台地から形成され、面積は22.85km2で23区では平均的な広さです。人口は約40万人余りで、1964年をピークに減少していましたが、1998年以降は増加に転じています。
基本データ
市区役所所在地 | 品川区広町2-1-36 |
---|---|
公式ホームページURL | https://www.city.shinagawa.tokyo.jp/ |
総人口 | 422,488人 |
人口増減率(2015年/2020年) | 109.2% |
地域のおすすめ情報ブログ
一覧を見る
-
心あたたまるパン屋さん本日は、東急池上線・荏原中延駅のすぐ目の前にあるパン屋さんをご紹介します。惣菜パンから菓子パンまで、バラエティ豊かにそろった、ど...続きを読む
-
日本考古学発祥の地こんにちは!ピタットハウス蒲田店です。今回は、歴史好きの方にもファミリーにもおすすめのスポット「大森貝塚庭園」をご紹介します。大...続きを読む
-
坂本龍馬の息吹こんにちは!ピタットハウス蒲田店です。本日は立会川にある坂本龍馬像についてお話します♪薩長同盟や大政奉還の実現に尽力し、幕末の志...続きを読む
-
変わらぬ味のおでん屋さんこんにちは、五反田店の武田です。今回紹介するのは、戸越駅から徒歩6分の場所にお店を構える、「後藤かまぼこ店」です。創業は65年!...続きを読む
戸越銀座駅近隣の駅から探す
品川区の近隣エリアから探す
FAQ
-
A. ORSUS戸越銀座(ADJ4292377_87)の内見は、見学予約でお問い合わせいただくか、直接新宿西口店(0037-6001-05237)までご連絡ください。
-
A. 可能です。ORSUS戸越銀座(ADJ4292377_87)周辺の情報は、ピタットハウスの地域情報ブログ「街ピタ」や住みたい街の暮らしデータをご活用ください。
-
A. ORSUS戸越銀座(ADJ4292377_87)の費用は、こちらよりお問い合わせいただくか、直接新宿西口店(0037-6001-05237)までご連絡ください。
-
A. はい、可能です。賃貸希望物件リクエストをご利用ください。ORSUS戸越銀座(ADJ4292377_87)に似た物件も合わせてご紹介させていただきます。