
お気軽にお問い合わせください!
物件情報・周辺環境・契約手続きについてなどお気軽にお問い合わせください。
設備・条件
|
|
---|---|
|
|
|
|
|
|
|
|
|
|
|
|
|
|
物件概要
物件種別
部屋種別 | マンション | ||
---|---|---|---|
建物名称 | ロイヤルパークス品川(2803) | ||
所在地 | 東京都港区港南3丁目 MAP | ||
築年月 | 2025年1月 | 階数 | 28階建ての28階 |
建物構造 | 鉄筋コンクリート造 | 総戸数 | - |
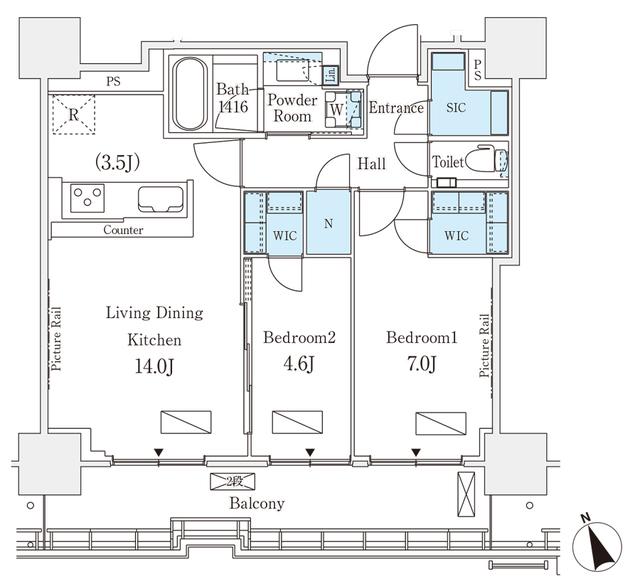
間取り | 3LDK | 専有面積 | 120.36㎡ |
向き | 南 | バルコニー面積 | 43.00㎡ |
その他 | 管理形態:常務管理 |
費用
賃料 |
127万円
初期費用の確認をする
|
共益費 | 30,000円 |
---|---|---|---|
礼金 | - | 敷金 | 127万円 |
保証金 | - | 償却金 | - |
その他一時金 | 室内清掃費:185354円 / 鍵交換費:22000円 | ||
その他月額費用 | - | ||
住宅保険 | 要加入 | ||
保証会社 | 必須 | ||
保証会社補足 | 初回保証委託料(最低15,000円):月額賃料等の50%、 2年目以降:10,000円/年 | ||
更新料 | 更新後賃料:1ヶ月 | 更新事務手数料 | - |
契約条件
貸家契約区分 | 普通賃貸借 | 契約期間 | 2年 |
---|---|---|---|
入居可能日 |
相談
空室状況を確認をする
|
引渡時期相談内容 | - |
フリーレント | - | ||
クレジットカード決済 | - |
駐車場
駐車場 |
なし
駐車場について質問する
|
||
---|---|---|---|
駐車場契約形態 | - | ||
駐車場備考 | - | ||
バイク置き場 | - | ||
駐輪場 | - |
備考
その他 | |||
---|---|---|---|
関連リンク | |||
取引態様 | 媒介 | 管理コード | 4494131 |
情報登録(更新)日 | 2025年10月8日 | 次回更新予定日 | 2025年10月15日 |
取扱店舗

ピタットハウス勝どき店
株式会社SHEEPLANNER
- 交通
- 都営大江戸線 勝どき駅『A3b出口』より豊海町方面へ徒歩3分・都営大江戸線、月島駅『10番出口』より勝どき方面へ徒歩12分。
- 営業時間
- 10:00 〜 17:00
- 定休日
- 毎週水曜日・木曜日
ピタットハウスでは信頼されるサイトを目指して、物件情報の精度向上に努めています。
掲載物件に誤りがある場合は
こちら からご連絡ください。現状と異なる場合は、現状を優先させていただきます。
取引態様の欄に「媒介」と表示された物件は「仲介物件」です。ご成約の際には仲介手数料を申し受けます。
その他の取扱店舗
不動産会社毎に募集条件等が異なる場合があります。詳細は各店の物件詳細ページにてご確認ください。- 交通
- JR山手線「新宿」駅徒歩6分都営大江戸線「新宿西口」駅徒歩2分
- 営業時間
- 09:30 〜 18:30
- 定休日
- 毎週水曜日・2月・3月は無休、夏季休暇無し・年末年始
- 交通
- JR中央線 『武蔵境駅』 南口より 徒歩30秒 駐車場有
- 営業時間
- 10:00 〜 19:00
- 定休日
- 毎週水曜日・夏季休業・8/12から8/20まで
- 交通
- つくばエクスプレス浅草駅A2出口を出まして左隣のビルの1階に店舗ございます。
- 営業時間
- 10:00 〜 18:00
- 定休日
- 毎週水曜日・日曜日・夏季休業・8/10~8/17
- 交通
- JR総武線 亀戸駅
- 営業時間
- 10:00 〜 18:00
- 定休日
- 毎週水曜日、木曜日・GW休業・夏季休業・年末年始休業・冬季休業:12/28(日)〜1/3(土)
生活情報
港区の暮らしデータ
港区は、1947年3月15日に旧芝、麻布、赤坂の3区が統合され誕生しました。東京都のほぼ南東部に位置し、北西一帯の高台地と、南東の東京湾に面した低地および芝浦海浜の埋め立て地からなっています。高台地は秩父山麓に端を発している武蔵野台地の末端で、これらの台地は小さな突起状の丘陵となっているため、東京23区の中で最も起伏に富んだ地形をもっています。
基本データ
市区役所所在地 | 港区芝公園1-5-25 |
---|---|
公式ホームページURL | https://www.city.minato.tokyo.jp/ |
総人口 | 260,486人 |
人口増減率(2015年/2020年) | 107.1% |
地域のおすすめ情報ブログ
一覧を見る
-
遅めのランチにおススメです♪こんにちは!ピタットハウス浜松町店の柿澤です♪先日ランチで行ったお店の紹介です(*^^*)その日は忙しい日でランチに出られたのが...続きを読む
-
newオープンしたとんかつ屋さん☆こんにちは!ピタットハウス浜松町店の柿澤です!本日は浜松町にnewオープンしたとんかつ屋さんのご紹介です!【博多とんかつわか葉浜...続きを読む
-
今日のお昼はラーメ〇でしたこんにちは、ピタットハウス浜松町店の吉富です。バレバレなタイトルですが今日のお昼ご飯はラーメンでした。壱角家さんのラーメンを食べ...続きを読む
-
定食メニューが豊富【居酒屋 一力】どうも、こんにちは。ピタットハウス浜松町店の吉富です。今回は定食メニューの豊富な【居酒屋一力】の紹介です。魚好きの僕が刺身定食の...続きを読む
品川駅近隣の駅から探す
港区の近隣エリアから探す
FAQ
-
A. ロイヤルパークス品川(ADV4494131_1125)の内見は、見学予約でお問い合わせいただくか、直接勝どき店(0037-6001-00475)までご連絡ください。
-
A. 可能です。ロイヤルパークス品川(ADV4494131_1125)周辺の情報は、ピタットハウスの地域情報ブログ「街ピタ」や住みたい街の暮らしデータをご活用ください。
-
A. ロイヤルパークス品川(ADV4494131_1125)の費用は、こちらよりお問い合わせいただくか、直接勝どき店(0037-6001-00475)までご連絡ください。
-
A. はい、可能です。賃貸希望物件リクエストをご利用ください。ロイヤルパークス品川(ADV4494131_1125)に似た物件も合わせてご紹介させていただきます。