前へ
次へ
前へ
次へ
マンション

BPRレジデンス新梅田(0403)

7.95 万円
共益費 5,000
7.95万円
-
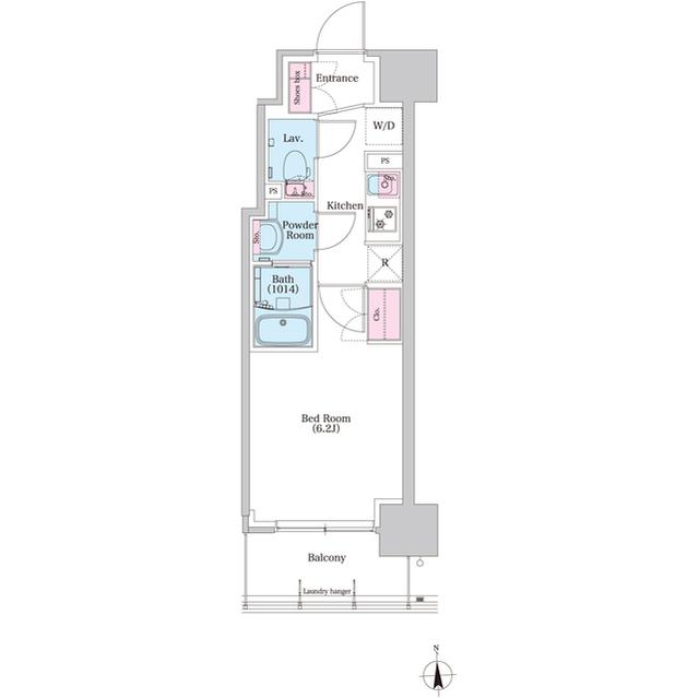
間取り
1K
専有面積
22.76㎡
所在階
14階建ての4階
向き
  • アイコン: 住所 大阪府大阪市北区大淀中2丁目
  • アイコン: 交通 JR東海道本線 「大阪駅」 徒歩14分 / JR大阪環状線 「福島駅」 徒歩12分
簡単無料
アイコン: お電話 0037-6001-08834
IP電話ご利用のお客様 : 06-6484-8368
ピタットハウス
堺筋本町店
point!
◆インターネット(Wi-Fi)無料◆JR「大阪駅」徒歩約14分
お気軽にお問い合わせください!
簡単無料
お気軽にお問い合わせください!
物件情報・周辺環境・契約手続きについてなどお気軽にお問い合わせください。

設備・条件

建物・立地
  • エレベータ
  • 宅配ボックス
  • 駐輪場
  • 都市ガス
  • バイク置場
通信
  • インターネット無料
セキュリティ
  • オートロック
  • TVモニター付きインターホン
部屋設備
  • フローリング
冷暖房
  • エアコン
キッチン
  • システムキッチン
バス・トイレ
  • 独立洗面台
  • 温水洗浄便座

物件概要

物件種別

部屋種別 マンション
建物名称 BPRレジデンス新梅田(0403)
所在地 大阪府大阪市北区大淀中2丁目
築年月 2020年2月 階数 14階建ての4階
建物構造 鉄筋コンクリート造 総戸数 91戸
間取り 1K(洋6.2帖) 専有面積 22.76㎡
向き バルコニー面積 -
その他 -

費用

賃料 7.95万円 初期費用の確認をする 初期費用の確認をする 共益費 5,000円
礼金 - 敷金 7.95万円
保証金 - 償却金 -
その他一時金 駐輪場ステッカー:440円 / 鍵交換代:27500円 / 清掃費:28600円 / エアコン清掃費:8250円
その他月額費用 -
住宅保険 要加入(2年16550円)
保証会社 必須
保証会社補足 エポスカード(RP) 保証料:賃料等の50%(最低2万)、月額保証料:賃料等の1%(更新料無)
更新料 - 更新事務手数料 -

契約条件

貸家契約区分 普通賃貸借 契約期間 2年
入居可能日 2026年1月31日予定 空室状況を確認をする 空室状況を確認をする 引渡時期相談内容 -
フリーレント -
クレジットカード決済 -

駐車場

駐車場 なし 駐車場について質問する 駐車場について質問する
駐車場契約形態 -
駐車場備考 -
バイク置き場 -
駐輪場 -

備考

その他 ①駐輪ステッカー代440円(初回のみ、月額不要)1部屋1台のみ(12月1日現在満車) ②保証会社利用は一部法人契約を除く(敷金1ヵ月積み増し必要) ③退去時清掃費28,600円 ④退去時エアコン清掃費8,250円 ⑤短期解約違約金有(1年以内の解約時1ヶ月分の賃料相当額が必要)
関連リンク
取引態様 媒介 管理コード 3614338
情報登録(更新)日 2025年12月4日 次回更新予定日 2025年12月10日
備考 めやす賃料:

めやす賃料とは賃料、共益費・管理費、敷引金、更新料を含み、賃料等条件の改定がないものと仮定して4年間賃借した場合(定期借家の場合は契約期間)の1ヶ月当たりの金額です。

※敷引金は、敷金の償却、保証金の償却など、預かった金額から必ず引くものをいいます。
※めやす賃料は、消費者に適切な情報を提供するための表示であり事業者に一時金を推奨するものではありません。
※めやす賃料は、実際の総支払額と異なる場合があります。詳しくは不動産会社にご確認ください。  

取扱店舗

ピタットハウス堺筋本町店
ピタットハウス堺筋本町店
広瀬産業株式会社
交通
大阪市高速電気軌道 中央線・堺筋線「堺筋本町駅」4番出口から徒歩1分
営業時間
09:00 〜 19:00
定休日
無休(研修時水曜日の場合あり)・冬期休暇 12/28〜1/4・夏季休暇 8/13〜8/15
お電話 0037-6001-08834 無料
メール お問い合わせ
  • お問い合わせ区分

  • 内見希望日時

    第一希望

    第二希望

  • お名前

    全角
  • ご希望の連絡方法

    メールアドレス

    電話番号

    半角
    半角
  • その他ご希望等

ピタットハウスの個人情報の取り扱いについて

ピタットハウスでは信頼されるサイトを目指して、物件情報の精度向上に努めています。
掲載物件に誤りがある場合は こちら からご連絡ください。現状と異なる場合は、現状を優先させていただきます。
取引態様の欄に「媒介」と表示された物件は「仲介物件」です。ご成約の際には仲介手数料を申し受けます。

その他の取扱店舗

不動産会社毎に募集条件等が異なる場合があります。詳細は各店の物件詳細ページにてご確認ください。
交通
地下鉄谷町線駒川中野駅からスロープをくぐって右折、ラブリーモール内をまっすぐ進んで左手K&Mビル1階(駅から徒歩3分です)
営業時間
09:30 〜 18:00
定休日
なし・年末年始(12/27〜1/3)
お電話 0037-6001-05157 無料

生活情報

大阪市の暮らしデータ

大阪市は、本州の中心あたりに位置し、1889年に市制が施行されました。現在は人口約277万人(2024年4月15日時点)となり、広さは約225.33km2です。また、水都として知られ、花と緑、歴史と文化、芸術やスポーツなどにふれることができる、人々にとって快適で、魅力あふれるまちです。

基本データ

市区役所所在地 大阪市北区中之島1-3-20
公式ホームページURL https://www.city.osaka.lg.jp/
総人口 2,752,412人
人口増減率(2015年/2020年) 102.3%
大阪市の生活情報を詳しくみる

大阪駅近隣の駅から探す

大阪市北区の近隣エリアから探す

FAQ

  • A. BPRレジデンス新梅田(AEN3614338_84)の内見は、見学予約でお問い合わせいただくか、直接堺筋本町店(0037-6001-08834)までご連絡ください。
  • A. 可能です。BPRレジデンス新梅田(AEN3614338_84)周辺の情報は、ピタットハウスの地域情報ブログ「街ピタ」住みたい街の暮らしデータをご活用ください。
  • A. BPRレジデンス新梅田(AEN3614338_84)の費用は、こちらよりお問い合わせいただくか、直接堺筋本町店(0037-6001-08834)までご連絡ください。
  • A. はい、可能です。賃貸希望物件リクエストをご利用ください。BPRレジデンス新梅田(AEN3614338_84)に似た物件も合わせてご紹介させていただきます。