前へ
次へ
前へ
次へ
マンション

クリスタルグランツみなとシティ(209)

6.7 万円
共益費 5,000
-
6.7万円
間取り
1K
専有面積
22.80㎡
所在階
10階建ての2階
向き
北東
  • アイコン: 住所 大阪府大阪市港区波除1丁目
  • アイコン: 交通 JR大阪環状線 「弁天町駅」 徒歩10分 / 地下鉄中央線 「弁天町駅」 徒歩10分 / 阪神電鉄阪神なんば 「九条駅」 徒歩13分
簡単無料
アイコン: お電話 0037-6001-08834
IP電話ご利用のお客様 : 06-6484-8368
ピタットハウス
堺筋本町店
point!
【大阪市賃貸専門】■港区・西区・中央区を中心に活動中
クリスタルグランツみなとシティは近くにドラッグストアがある便利な地域。駅までも少し離れているような感覚はあるが、徒歩圏内で納得。お仕事帰りにコンビニでお買い物してお家に帰りましょう。
お気軽にお問い合わせください!
簡単無料
お気軽にお問い合わせください!
物件情報・周辺環境・契約手続きについてなどお気軽にお問い合わせください。

設備・条件

建物・立地
  • 分譲マンションタイプ
  • エレベータ
  • 宅配ボックス
  • 駐輪場
  • 都市ガス
  • 敷地内ごみ置き場
  • 常時ゴミ出し可能
  • バイク置場
通信
  • インターネット対応
  • インターネット無料
  • 高速ネット対応
  • BS・CS
セキュリティ
  • オートロック
  • TVモニター付きインターホン
  • ピッキング対策キー
  • モニタ付オートロック
  • 防犯カメラ
部屋設備
  • フローリング
  • バリアフリー
  • バルコニー
  • 室内洗濯機置場
  • 下駄箱
  • クローゼット
  • 全居室洋室
冷暖房
  • エアコン
キッチン
  • システムキッチン
  • ガスコンロ(2口)
バス・トイレ
  • バス・トイレ別
  • 浴室乾燥機
  • 独立洗面台
  • 温水洗浄便座
  • 洗面化粧台
  • 脱衣所
  • 洗面所にドア
特徴
  • オンライン内見可
  • オンライン相談可
  • IT重説対応物件
  • 敷金不要
  • 保証金不要
  • 保証人不要

物件概要

物件種別

部屋種別 マンション
建物名称 クリスタルグランツみなとシティ(209)
所在地 大阪府大阪市港区波除1丁目 MAP
築年月 2018年2月 階数 10階建ての2階
建物構造 鉄筋コンクリート造 総戸数 -
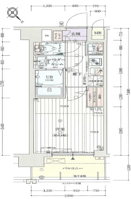
間取り 1K(洋7.1帖) 専有面積 22.80㎡
向き 北東 バルコニー面積 -
その他 -

費用

賃料 6.7万円 初期費用の確認をする 初期費用の確認をする 共益費 5,000円
礼金 6.7万円 敷金 -
保証金 - 償却金 -
その他一時金 鍵交換代:33000円 / 抗菌施工代:16500円 / 24時間サポート:18150円 / 水道利用料預り金:10000円
その他月額費用 -
住宅保険 要加入(2年22000円)
保証会社 必須
保証会社補足 初回50パーセント 年10000円
更新料 15,000円 更新事務手数料 -

契約条件

貸家契約区分 普通賃貸借 契約期間 2年
入居可能日 2026年4月10日予定 空室状況を確認をする 空室状況を確認をする 引渡時期相談内容 -
フリーレント -
クレジットカード決済 初期費用クレジット決済可

駐車場

駐車場 空きなし 駐車場について質問する 駐車場について質問する
駐車場契約形態 -
駐車場備考 -
バイク置き場 -
駐輪場 -

備考

その他 中央区・西区・浪速区・港区・北区・福島区を中心に【大阪市内 全24区の専門スタッフ】が幅広く担当いたします。多種多様地域のお引越しのご相談をお承りしております。【初期費用見積】や【他社との比較の要望 他社掲載物件のご内覧】等 多数お承りしてますが、順番に確認・ご連絡いたしますのでお待ちくださいませ。ご返答にお時間が必要な場合がありますが、ご了承くださいませ。【TEL:06-6484-8368】
関連リンク
取引態様 媒介 管理コード 4086485
情報登録(更新)日 2026年2月18日 次回更新予定日 2026年2月25日
備考 めやす賃料:

めやす賃料とは賃料、共益費・管理費、敷引金、更新料を含み、賃料等条件の改定がないものと仮定して4年間賃借した場合(定期借家の場合は契約期間)の1ヶ月当たりの金額です。

※敷引金は、敷金の償却、保証金の償却など、預かった金額から必ず引くものをいいます。
※めやす賃料は、消費者に適切な情報を提供するための表示であり事業者に一時金を推奨するものではありません。
※めやす賃料は、実際の総支払額と異なる場合があります。詳しくは不動産会社にご確認ください。  

周辺環境

  • ニッコー波除店:484m
    ニッコー波除店:484m
  • 業務スーパー弁天町店:440m
    業務スーパー弁天町店:440m
  • グルメシティ九条店:678m
    グルメシティ九条店:678m
  • ロピア大阪ベイタワー店:892m
    ロピア大阪ベイタワー店:892m
  • スーパーナショナル弁天町駅前店:1105m
    スーパーナショナル弁天町駅前店:1105m
  • ローソン港区波除一丁目店:303m
    ローソン港区波除一丁目店:303m
  • セブンイレブン大阪九条南3丁目店:547m
    セブンイレブン大阪九条南3丁目店:547m
  • ローソンJR弁天町駅前店:670m
    ローソンJR弁天町駅前店:670m
  • ファミリーマート波除中央大通店:658m
    ファミリーマート波除中央大通店:658m
  • ファミリーマート波除二丁目店:715m
    ファミリーマート波除二丁目店:715m
  • 大丸心斎橋店南館:3715m
    大丸心斎橋店南館:3715m
  • スギドラッグ波除店:434m
    スギドラッグ波除店:434m
  • コーナンPRO西九条春日出店:1374m
    コーナンPRO西九条春日出店:1374m
  • 私立相愛大学本町キャンパス:3908m
    私立相愛大学本町キャンパス:3908m
  • ゲオクロスシティ弁天町店:1100m
    ゲオクロスシティ弁天町店:1100m
  • スシロー辰巳橋店:544m
    スシロー辰巳橋店:544m
  • 大阪ベイタワー:1023m
    大阪ベイタワー:1023m
コンビニ
ローソン港区波除一丁目店
303m
買物
ニッコー波除店
484m
ショッピング施設
大丸心斎橋店南館
3715m
ドラッグストア
スギドラッグ波除店
434m
ホームセンター
コーナンPRO西九条春日出店
1374m

取扱店舗

ピタットハウス堺筋本町店
ピタットハウス堺筋本町店
広瀬産業株式会社
交通
大阪市高速電気軌道 中央線・堺筋線「堺筋本町駅」4番出口から徒歩1分
営業時間
09:00 〜 19:00
定休日
無休(研修時水曜日の場合あり)・冬期休暇 12/27〜1/4・夏季休暇 8/13〜8/15
お電話 0037-6001-08834 無料
メール お問い合わせ
  • お問い合わせ区分

  • 内見希望日時

    第一希望

    第二希望

  • お名前

    全角
  • ご希望の連絡方法

    メールアドレス

    電話番号

    半角
    半角
  • その他ご希望等

ピタットハウスの個人情報の取り扱いについて

ピタットハウスでは信頼されるサイトを目指して、物件情報の精度向上に努めています。
掲載物件に誤りがある場合は こちら からご連絡ください。現状と異なる場合は、現状を優先させていただきます。
取引態様の欄に「媒介」と表示された物件は「仲介物件」です。ご成約の際には仲介手数料を申し受けます。

生活情報

大阪市の暮らしデータ

大阪市は、本州の中心あたりに位置し、1889年に市制が施行されました。現在は人口約280万人(2025年5月1日時点)となり、広さは約225.34km2です。また、水都として知られ、花と緑、歴史と文化、芸術やスポーツなどにふれることができる、人々にとって快適で、魅力あふれるまちです。

基本データ

市区役所所在地 大阪市北区中之島1-3-20
公式ホームページURL https://www.city.osaka.lg.jp/
総人口 2,752,412人
人口増減率(2015年/2020年) 102.3%
大阪市の生活情報を詳しくみる

弁天町駅近隣の駅から探す

大阪市港区の近隣エリアから探す

FAQ

  • A. クリスタルグランツみなとシティ(AEN4086485_23)の内見は、見学予約でお問い合わせいただくか、直接堺筋本町店(0037-6001-08834)までご連絡ください。
  • A. 可能です。クリスタルグランツみなとシティ(AEN4086485_23)周辺の情報は、ピタットハウスの地域情報ブログ「街ピタ」住みたい街の暮らしデータをご活用ください。
  • A. クリスタルグランツみなとシティ(AEN4086485_23)の費用は、こちらよりお問い合わせいただくか、直接堺筋本町店(0037-6001-08834)までご連絡ください。
  • A. はい、可能です。賃貸希望物件リクエストをご利用ください。クリスタルグランツみなとシティ(AEN4086485_23)に似た物件も合わせてご紹介させていただきます。