前へ
次へ
前へ
次へ
マンション

レオンコンフォート大阪ドームシティ

NEW
6.75 万円
共益費 9,000
-
6.75万円
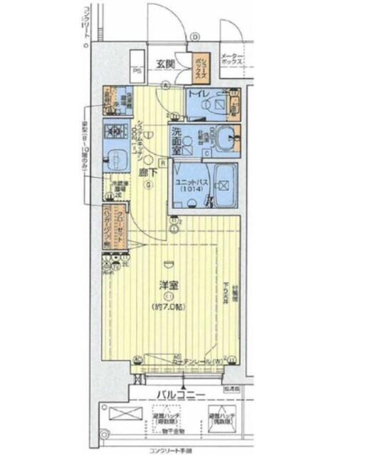
間取り
1K
専有面積
25.44㎡
所在階
10階建ての3階
向き
  • アイコン: 住所 大阪府大阪市西区九条南1丁目
  • アイコン: 交通 地下鉄中央線 「九条駅」 徒歩8分 / 地下鉄長堀鶴見緑地 「ドーム前千代崎駅」 徒歩5分 / JR大阪環状線 「大正駅」 徒歩12分
簡単無料
アイコン: お電話 0037-6001-08834
IP電話ご利用のお客様 : 06-6484-8368
ピタットハウス
堺筋本町店
point!
【大阪市賃貸専門】■西区・港区・中央区を中心に活動中
京セラドームまでスグの立地。イオンモール大阪ドーム店でお買い物・お食事色々楽しめます。大きな道路沿いではないのがいいですね。自転車で難波まで行かれる方も多い場所です。お部屋は見に来てください。
お気軽にお問い合わせください!
簡単無料
お気軽にお問い合わせください!
物件情報・周辺環境・契約手続きについてなどお気軽にお問い合わせください。

設備・条件

建物・立地
  • 角部屋
  • 分譲マンションタイプ
  • エレベータ
  • 宅配ボックス
  • 駐輪場
  • 都市ガス
  • 敷地内ごみ置き場
  • 常時ゴミ出し可能
通信
  • インターネット対応
  • インターネット無料
  • 光回線
  • 高速ネット対応
セキュリティ
  • オートロック
  • TVモニター付きインターホン
  • ピッキング対策キー
  • モニタ付オートロック
  • ダブルロックドア
  • 防犯カメラ
部屋設備
  • フローリング
  • バリアフリー
  • バルコニー
  • 室内洗濯機置場
  • 下駄箱
  • クローゼット
  • 24時間換気システム
  • 南向き
  • 全居室洋室
  • 全居室6畳以上
冷暖房
  • エアコン
キッチン
  • システムキッチン
  • ガスコンロ(2口)
バス・トイレ
  • バス・トイレ別
  • 浴室乾燥機
  • 独立洗面台
  • 温水洗浄便座
  • シャワー
  • 洗面化粧台
  • 洗面所
  • トイレ
  • 洗面台
  • 脱衣所
  • 洗面所にドア
特徴
  • ペット相談可
  • オンライン内見可
  • オンライン相談可
  • IT重説対応物件
  • 敷金不要
  • 保証金不要
  • 保証人不要
  • 初期費用カード決済可

物件概要

物件種別

部屋種別 マンション
建物名称 レオンコンフォート大阪ドームシティ
所在地 大阪府大阪市西区九条南1丁目 MAP
築年月 2019年7月 階数 10階建ての3階
建物構造 鉄筋コンクリート造 総戸数 45戸
間取り 1K(洋7.8帖) 専有面積 25.44㎡
向き バルコニー面積 -
その他 -

費用

賃料 6.75万円 初期費用の確認をする 初期費用の確認をする 共益費 9,000円
礼金 6.75万円 敷金 -
保証金 - 償却金 -
その他一時金 鍵交換代:27500円
その他月額費用 mamorocca:300円/月
住宅保険 要加入(2年20000円)
保証会社 必須
保証会社補足 初回総賃料50パーセント 更新料年10000円
更新料 16,500円 更新事務手数料 -

契約条件

貸家契約区分 普通賃貸借 契約期間 1年
入居可能日 2025年11月30日予定 空室状況を確認をする 空室状況を確認をする 引渡時期相談内容 -
フリーレント -
クレジットカード決済 初期費用クレジット決済可

駐車場

駐車場 空きなし 駐車場について質問する 駐車場について質問する
駐車場契約形態 -
駐車場備考 -
バイク置き場 -
駐輪場 -

備考

その他 中央区・西区・浪速区・港区・北区・福島区を中心に【大阪市内 全24区の専門スタッフ】が幅広く担当いたします。多種多様地域のお引越しのご相談をお承りしております。【初期費用見積】や【他社との比較の要望 他社掲載物件のご内覧】等 多数お承りしてますが、順番に確認・ご連絡いたしますのでお待ちくださいませ。ご返答にお時間が必要な場合がありますが、ご了承くださいませ。【TEL:06-6484-8368】
関連リンク
取引態様 媒介 管理コード 4213664
情報登録(更新)日 2025年11月10日 次回更新予定日 2025年11月17日
備考 めやす賃料:

めやす賃料とは賃料、共益費・管理費、敷引金、更新料を含み、賃料等条件の改定がないものと仮定して4年間賃借した場合(定期借家の場合は契約期間)の1ヶ月当たりの金額です。

※敷引金は、敷金の償却、保証金の償却など、預かった金額から必ず引くものをいいます。
※めやす賃料は、消費者に適切な情報を提供するための表示であり事業者に一時金を推奨するものではありません。
※めやす賃料は、実際の総支払額と異なる場合があります。詳しくは不動産会社にご確認ください。  

レオンコンフォート大阪ドームシティ の他の空室物件

1
建物の空室物件一覧 次へ

周辺環境

  • イオン大阪ドームシティ店:429m
    イオン大阪ドームシティ店:429m
  • 成城石井イオンモール大阪ドームシティ店:429m
    成城石井イオンモール大阪ドームシティ店:429m
  • CoDeli大阪九条駅前店:527m
    CoDeli大阪九条駅前店:527m
  • グルメシティ九条店:795m
    グルメシティ九条店:795m
  • セブンイレブン大阪千代崎2丁目店:393m
    セブンイレブン大阪千代崎2丁目店:393m
  • ローソン大阪ドームシティ店:548m
    ローソン大阪ドームシティ店:548m
  • ローソンOSLドーム前千代崎駅店:569m
    ローソンOSLドーム前千代崎駅店:569m
  • マツモトキヨシ九条店:632m
    マツモトキヨシ九条店:632m
  • エディオンフォレオ大阪ドームシティ店:445m
    エディオンフォレオ大阪ドームシティ店:445m
  • 私立相愛大学本町キャンパス:3257m
    私立相愛大学本町キャンパス:3257m
  • TSUTAYA大正駅前店:966m
    TSUTAYA大正駅前店:966m
コンビニ
セブンイレブン大阪千代崎2丁目店
393m
買物
イオン大阪ドームシティ店
429m
ドラッグストア
マツモトキヨシ九条店
632m
ホームセンター
エディオンフォレオ大阪ドームシテ
445m

取扱店舗

ピタットハウス堺筋本町店
ピタットハウス堺筋本町店
広瀬産業株式会社
交通
大阪市高速電気軌道 中央線・堺筋線「堺筋本町駅」4番出口から徒歩1分
営業時間
09:00 〜 19:00
定休日
無休(研修時水曜日の場合あり)・冬期休暇 12/28〜1/4・夏季休暇 8/13〜8/15
お電話 0037-6001-08834 無料
メール お問い合わせ
  • お問い合わせ区分

  • 内見希望日時

    第一希望

    第二希望

  • お名前

    全角
  • ご希望の連絡方法

    メールアドレス

    電話番号

    半角
    半角
  • その他ご希望等

ピタットハウスの個人情報の取り扱いについて

ピタットハウスでは信頼されるサイトを目指して、物件情報の精度向上に努めています。
掲載物件に誤りがある場合は こちら からご連絡ください。現状と異なる場合は、現状を優先させていただきます。
取引態様の欄に「媒介」と表示された物件は「仲介物件」です。ご成約の際には仲介手数料を申し受けます。

生活情報

大阪市の暮らしデータ

大阪市は、本州の中心あたりに位置し、1889年に市制が施行されました。現在は人口約277万人(2024年4月15日時点)となり、広さは約225.33km2です。また、水都として知られ、花と緑、歴史と文化、芸術やスポーツなどにふれることができる、人々にとって快適で、魅力あふれるまちです。

基本データ

市区役所所在地 大阪市北区中之島1-3-20
公式ホームページURL https://www.city.osaka.lg.jp/
総人口 2,752,412人
人口増減率(2015年/2020年) 102.3%
大阪市の生活情報を詳しくみる

九条駅近隣の駅から探す

大阪市西区の近隣エリアから探す

FAQ

  • A. レオンコンフォート大阪ドームシティ(AEN4213664_22)の内見は、見学予約でお問い合わせいただくか、直接堺筋本町店(0037-6001-08834)までご連絡ください。
  • A. 可能です。レオンコンフォート大阪ドームシティ(AEN4213664_22)周辺の情報は、ピタットハウスの地域情報ブログ「街ピタ」住みたい街の暮らしデータをご活用ください。
  • A. レオンコンフォート大阪ドームシティ(AEN4213664_22)の費用は、こちらよりお問い合わせいただくか、直接堺筋本町店(0037-6001-08834)までご連絡ください。
  • A. はい、可能です。賃貸希望物件リクエストをご利用ください。レオンコンフォート大阪ドームシティ(AEN4213664_22)に似た物件も合わせてご紹介させていただきます。