前へ
次へ
前へ
次へ
マンション

福岡市東区千早マンション

NEW
7.8 万円
共益費 3,000
7.8万円
15.6万円
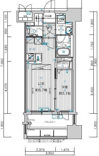
間取り
1LDK
専有面積
30.60㎡
所在階
15階建ての4階
向き
北西
  • アイコン: 住所 福岡県福岡市東区千早4丁目
  • アイコン: 交通 西鉄貝塚線 「西鉄千早駅」 徒歩7分 / JR鹿児島本線 「千早駅」 徒歩7分 / 西鉄貝塚線 「香椎宮前駅」 徒歩12分
簡単無料
アイコン: お電話 0037-6001-02087
IP電話ご利用のお客様 : 092-292-7870
ピタットハウス
博多駅前1丁目店
point!
☆駅チカ☆築浅☆デザイナーズ☆
福岡市内全域の物件をご紹介可能です!初期費用のクレカ決済可◎来店不要、オンライン見学・契約手続可◎ご質問・ご要望はLINEorお電話にてお問合せ下さい!ご希望に沿ったお部屋を複数ご提案致します♪
お気軽にお問い合わせください!
簡単無料
お気軽にお問い合わせください!
物件情報・周辺環境・契約手続きについてなどお気軽にお問い合わせください。

設備・条件

建物・立地
  • エレベータ
  • 宅配ボックス
  • 駐輪場
  • 敷地内ごみ置き場
  • デザイナーズ
通信
  • インターネット無料
セキュリティ
  • オートロック
  • TVモニター付きインターホン
  • 防犯カメラ
部屋設備
  • フローリング
  • バルコニー
  • 室内洗濯機置場
  • 下駄箱
  • クローゼット
冷暖房
  • エアコン
キッチン
  • システムキッチン
  • ガスコンロ(2口)
バス・トイレ
  • バス・トイレ別
  • 浴室乾燥機
  • 洗髪洗面化粧台
  • 独立洗面台
  • 温水洗浄便座
  • シャワー
  • 洗面所
  • トイレ
  • 洗面台
特徴
  • ペット相談可

物件概要

物件種別

部屋種別 マンション
建物名称 福岡市東区千早マンション
所在地 福岡県福岡市東区千早4丁目
築年月 2020年9月 階数 15階建ての4階
建物構造 鉄筋コンクリート造 総戸数 -
間取り 1LDK(LDK8.7帖 洋3.1帖) 専有面積 30.60㎡
向き 北西 バルコニー面積 -
その他 -

費用

賃料 7.8万円 初期費用の確認をする 初期費用の確認をする 共益費 3,000円
礼金 15.6万円 敷金 7.8万円
保証金 - 償却金 -
その他一時金 鍵交換代:33000円 / 室内消毒費:13200円
その他月額費用 町費:300円/月 24時間サポート:550円/月
住宅保険 要加入(2年18000円)
保証会社 必須
保証会社補足 月額合計の50% 更新料 13,000/年
更新料 - 更新事務手数料 -

契約条件

貸家契約区分 普通賃貸借 契約期間 1年
入居可能日 相談 空室状況を確認をする 空室状況を確認をする 引渡時期相談内容 -
フリーレント -
クレジットカード決済 -

駐車場

駐車場 空きなし 駐車場について質問する 駐車場について質問する
駐車場契約形態 -
駐車場備考 -
バイク置き場 -
駐輪場 -

備考

その他
関連リンク
取引態様 媒介 管理コード 4417980
情報登録(更新)日 2026年1月19日 次回更新予定日 2026年1月26日
備考 めやす賃料:

めやす賃料とは賃料、共益費・管理費、敷引金、更新料を含み、賃料等条件の改定がないものと仮定して4年間賃借した場合(定期借家の場合は契約期間)の1ヶ月当たりの金額です。

※敷引金は、敷金の償却、保証金の償却など、預かった金額から必ず引くものをいいます。
※めやす賃料は、消費者に適切な情報を提供するための表示であり事業者に一時金を推奨するものではありません。
※めやす賃料は、実際の総支払額と異なる場合があります。詳しくは不動産会社にご確認ください。  

周辺環境

  • セブンイレブン福岡千早4丁目店:194m
    セブンイレブン福岡千早4丁目店:194m
コンビニ
セブンイレブン福岡千早4丁目店
194m
ドラッグストア
サンドラッグ千早店
365m

取扱店舗

ピタットハウス博多駅前1丁目店
ピタットハウス博多駅前1丁目店
株式会社Ark
交通
地下鉄「祇園駅」より徒歩3分JR「博多駅」より徒歩5分
営業時間
09:30 〜 18:30
定休日
年末年始・夏季休暇・ゴールデンウイーク
お電話 0037-6001-02087 無料
メール お問い合わせ
  • お問い合わせ区分

  • 内見希望日時

    第一希望

    第二希望

  • お名前

    全角
  • ご希望の連絡方法

    メールアドレス

    電話番号

    半角
    半角
  • その他ご希望等

ピタットハウスの個人情報の取り扱いについて

ピタットハウスでは信頼されるサイトを目指して、物件情報の精度向上に努めています。
掲載物件に誤りがある場合は こちら からご連絡ください。現状と異なる場合は、現状を優先させていただきます。
取引態様の欄に「媒介」と表示された物件は「仲介物件」です。ご成約の際には仲介手数料を申し受けます。

生活情報

福岡市の暮らしデータ

福岡市は、北は玄界灘に臨み、海の中道と糸島半島で仕切られた博多湾を擁し、南は脊振山地、東は三郡山地に囲まれた福岡平野に位置しています。大都市の魅力と美しい自然とを併せ持ち、長い歴史の中で培われた伝統・文化に恵まれた、独自の個性と魅力を有します。わが国の主要都市(大阪、東京、札幌)までの距離と、東アジアの主要都市(釜山、ソウル、上海、北京、台北など)までの距離とがほぼ同じ範囲にあるため、国際線の定期航空路線も多く、アジア諸国との交流には最適の位置といえます。

基本データ

市区役所所在地 福岡市中央区天神1-8-1
公式ホームページURL https://www.city.fukuoka.lg.jp/
総人口 1,612,392人
人口増減率(2015年/2020年) 104.8%
福岡市の生活情報を詳しくみる

地域のおすすめ情報ブログ

一覧を見る

西鉄千早駅近隣の駅から探す

福岡市東区の近隣エリアから探す

FAQ

  • A. 福岡市東区千早マンション(AGR4417980_22)の内見は、見学予約でお問い合わせいただくか、直接博多駅前1丁目店(0037-6001-02087)までご連絡ください。
  • A. 可能です。福岡市東区千早マンション(AGR4417980_22)周辺の情報は、ピタットハウスの地域情報ブログ「街ピタ」住みたい街の暮らしデータをご活用ください。
  • A. 福岡市東区千早マンション(AGR4417980_22)の費用は、こちらよりお問い合わせいただくか、直接博多駅前1丁目店(0037-6001-02087)までご連絡ください。
  • A. はい、可能です。賃貸希望物件リクエストをご利用ください。福岡市東区千早マンション(AGR4417980_22)に似た物件も合わせてご紹介させていただきます。