前へ
次へ
前へ
次へ
マンション
即入居可

パークアクシス新栄(1302)

7.7 万円
共益費 8,000
7.7万円
-
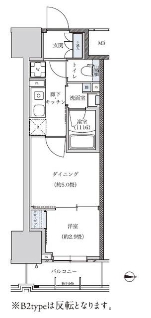
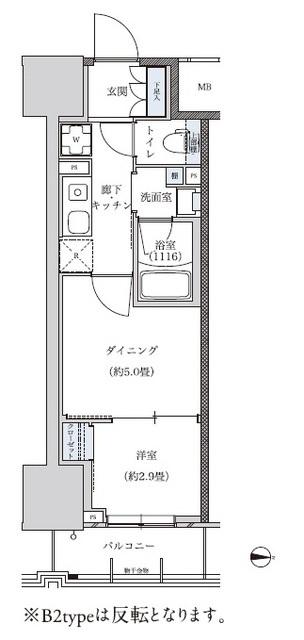
間取り
1DK
専有面積
27.71㎡
所在階
15階建ての13階
向き
  • アイコン: 住所 愛知県名古屋市中区新栄1丁目
  • アイコン: 交通 名古屋市東山線 「新栄町駅」 徒歩9分
簡単無料
アイコン: お電話 0037-6001-04004
IP電話ご利用のお客様 : 0561-32-8551
ピタットハウス
みよし店
お気軽にお問い合わせください!
簡単無料
お気軽にお問い合わせください!
物件情報・周辺環境・契約手続きについてなどお気軽にお問い合わせください。

設備・条件

建物・立地
  • エレベータ
  • 宅配ボックス
  • 敷地内駐車場
  • 敷地内ごみ置き場
  • バイク置場
セキュリティ
  • オートロック
部屋設備
  • フローリング
  • バルコニー
  • 室内洗濯機置場
冷暖房
  • エアコン
キッチン
  • システムキッチン
  • IHコンロ
バス・トイレ
  • バス・トイレ別
  • 浴室乾燥機
  • 独立洗面台
特徴
  • 事務所利用不可

物件概要

物件種別

部屋種別 マンション
建物名称 パークアクシス新栄(1302)
所在地 愛知県名古屋市中区新栄1丁目 MAP
築年月 2021年1月 階数 15階建ての13階
建物構造 鉄筋コンクリート造 総戸数 -
間取り 1DK 専有面積 27.71㎡
向き バルコニー面積 3.00㎡
その他 管理形態:巡回管理 

費用

賃料 7.7万円 初期費用の確認をする 初期費用の確認をする 共益費 8,000円
礼金 - 敷金 7.7万円
保証金 - 償却金 -
その他一時金 室内清掃費:41800円
その他月額費用 口座振替事務手数料:220円/月
住宅保険 要加入
保証会社 利用可
保証会社補足 初回保証委託料(最低15,000円):月額賃料等の50%、 2年目以降:10,000円/年
更新料 - 更新事務手数料 -

契約条件

貸家契約区分 普通賃貸借 契約期間 2年
入居可能日 相談 空室状況を確認をする 空室状況を確認をする 引渡時期相談内容 -
フリーレント -
クレジットカード決済 -

駐車場

駐車場 有り 月額19,800円 駐車場について質問する 駐車場について質問する
駐車場契約形態 -
駐車場備考 -
バイク置き場 -
駐輪場 -

備考

その他
関連リンク
取引態様 媒介 管理コード 3571663
情報登録(更新)日 2026年2月14日 次回更新予定日 2026年2月25日
備考 めやす賃料:

めやす賃料とは賃料、共益費・管理費、敷引金、更新料を含み、賃料等条件の改定がないものと仮定して4年間賃借した場合(定期借家の場合は契約期間)の1ヶ月当たりの金額です。

※敷引金は、敷金の償却、保証金の償却など、預かった金額から必ず引くものをいいます。
※めやす賃料は、消費者に適切な情報を提供するための表示であり事業者に一時金を推奨するものではありません。
※めやす賃料は、実際の総支払額と異なる場合があります。詳しくは不動産会社にご確認ください。  

取扱店舗

ピタットハウスみよし店
ピタットハウスみよし店
アックスホーム株式会社
交通
名鉄バスのバス停「三好上」より徒歩1分
営業時間
10:00 〜 19:00
定休日
毎週水曜日・ゴールデンウィーク休日・4月30日〜5月3日まで
  • 駐車場あり/近隣駐車場あり
お電話 0037-6001-04004 無料
メール お問い合わせ
  • お問い合わせ区分

  • 内見希望日時

    第一希望

    第二希望

  • お名前

    全角
  • ご希望の連絡方法

    メールアドレス

    電話番号

    半角
    半角
  • その他ご希望等

ピタットハウスの個人情報の取り扱いについて

ピタットハウスでは信頼されるサイトを目指して、物件情報の精度向上に努めています。
掲載物件に誤りがある場合は こちら からご連絡ください。現状と異なる場合は、現状を優先させていただきます。
取引態様の欄に「媒介」と表示された物件は「仲介物件」です。ご成約の際には仲介手数料を申し受けます。

生活情報

名古屋市の暮らしデータ

名古屋は日本のほぼ中央に位置し、人口が233万人を超える中部地方の政治・経済・文化の中枢都市です。様々な文化を受け入れ、足し算し、独自の文化や「名古屋発祥」を生み出してきました。都市機能も揃い、利便性も高くあらゆる分野において高水準で調和のとれた大都市でありながら、寛容で人を想うマインドが根付き、自然体で生きられるその源泉は、豊かさやゆとりがもたらす「大きなこころ」であり「やさしさ」です。アジア・アジアパラ競技大会の開催や、リニア中央新幹線の品川-名古屋間の開業も予定され、さらに発展していく中、さりげなく、かっこつけることなく、ゆとりがあって豊かな毎日が送れる「やさしい大都市」名古屋です。

基本データ

市区役所所在地 名古屋市中区三の丸3-1-1
公式ホームページURL https://www.city.nagoya.jp/
総人口 2,332,176人
人口増減率(2015年/2020年) 101.6%
名古屋市の生活情報を詳しくみる

地域のおすすめ情報ブログ

一覧を見る

新栄町駅近隣の駅から探す

名古屋市中区の近隣エリアから探す

FAQ

  • A. パークアクシス新栄(AGZ3571663_173)の内見は、見学予約でお問い合わせいただくか、直接みよし店(0037-6001-04004)までご連絡ください。
  • A. 可能です。パークアクシス新栄(AGZ3571663_173)周辺の情報は、ピタットハウスの地域情報ブログ「街ピタ」住みたい街の暮らしデータをご活用ください。
  • A. パークアクシス新栄(AGZ3571663_173)の費用は、こちらよりお問い合わせいただくか、直接みよし店(0037-6001-04004)までご連絡ください。
  • A. はい、可能です。賃貸希望物件リクエストをご利用ください。パークアクシス新栄(AGZ3571663_173)に似た物件も合わせてご紹介させていただきます。