前へ
次へ
前へ
次へ
マンション

浦安市北栄マンション

NEW
13.3 万円
共益費 10,000
1ヶ月
1ヶ月
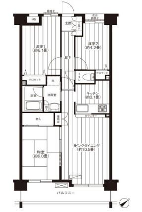
間取り
2LDK
専有面積
62.52㎡
所在階
地下1階・地上5階建ての5階
向き
南東
  • アイコン: 住所 千葉県浦安市北栄4丁目
  • アイコン: 交通 東京メトロ東西線 「浦安駅」 徒歩15分 / 東京メトロ東西線 「南行徳駅」 徒歩23分 / JR京葉線 「新浦安駅」 徒歩22分
簡単無料
アイコン: お電話 0037-6001-06556
IP電話ご利用のお客様 : 03-4329-1394
ピタットハウス
四谷店
point!
当物件はオンラインまたは店舗でご相談お申込を承ります
室内見学承ります・お客様のご都合に合わせてオンラインまたはお近くの店舗でご提案可・初期費用分割払い可・クレジットカード利用可・引越業者割引・初期費用のお見積や入居日のご相談もお気軽にお問合せください
お気軽にお問い合わせください!
簡単無料
お気軽にお問い合わせください!
物件情報・周辺環境・契約手続きについてなどお気軽にお問い合わせください。

設備・条件

建物・立地
  • 最上階
  • エレベータ
  • 宅配ボックス
  • 敷地内駐車場
  • 駐輪場
  • 都市ガス
  • 敷地内ごみ置き場
  • 常時ゴミ出し可能
  • 公営水道
  • 下水
通信
  • CATV
  • BSアンテナ
  • 光回線
セキュリティ
  • オートロック
  • TVモニター付きインターホン
  • 防犯カメラ
部屋設備
  • フローリング
  • バルコニー
  • 室内洗濯機置場
  • 下駄箱
  • クローゼット
  • 和室
  • 納戸
  • 全居室収納
  • 南面バルコニー
  • 陽当り良好
  • 玄関収納
  • 押入
  • 上階無し
  • 東南向き
  • 通風良好
冷暖房
  • エアコン
キッチン
  • システムキッチン
  • カウンターキッチン
  • ガスコンロ(3口)
  • 独立型キッチン
  • グリル
バス・トイレ
  • バス・トイレ別
  • 追い焚き風呂
  • 独立洗面台
  • 脱衣所
特徴
  • 保証会社利用可
  • 二人入居可
  • 二人入居相談
  • 保証人不要
  • 初期費用カード決済可

物件概要

物件種別

部屋種別 マンション
建物名称 浦安市北栄マンション
所在地 千葉県浦安市北栄4丁目 MAP
築年月 2002年3月 階数 地下1階・地上5階建ての5階
建物構造 鉄筋コンクリート造 総戸数 -
間取り 2LDK(LD11.2帖 和6.4帖 K3.6帖 洋5.8帖) 専有面積 62.52㎡
向き 南東 バルコニー面積 -
その他 -

費用

賃料 13.3万円 初期費用の確認をする 初期費用の確認をする 共益費 10,000円
礼金 1ヶ月 敷金 1ヶ月
保証金 - 償却金 -
その他一時金 鍵交換代(税込):22000円
その他月額費用 -
住宅保険 要加入(2年18000円)
保証会社 利用可
保証会社補足 初回:月額総賃料の40%〜
更新料 更新後賃料:1ヶ月 更新事務手数料 -

契約条件

貸家契約区分 普通賃貸借 契約期間 2年
入居可能日 相談 空室状況を確認をする 空室状況を確認をする 引渡時期相談内容 -
フリーレント -
クレジットカード決済 -

駐車場

駐車場 有り 月額17,600円 駐車場について質問する 駐車場について質問する
駐車場契約形態 -
駐車場備考 ご確認ください
バイク置き場 -
駐輪場 -

備考

その他 リライフは首都圏23店舗のネットワークで豊富な物件情報をお客様へご提供します。当物件に類似した未公開物件なども合わせてご提案可能です。お気軽にお問合せください。
関連リンク
取引態様 媒介 管理コード 4673799
情報登録(更新)日 2026年3月18日 次回更新予定日 2026年3月25日
備考 めやす賃料:

めやす賃料とは賃料、共益費・管理費、敷引金、更新料を含み、賃料等条件の改定がないものと仮定して4年間賃借した場合(定期借家の場合は契約期間)の1ヶ月当たりの金額です。

※敷引金は、敷金の償却、保証金の償却など、預かった金額から必ず引くものをいいます。
※めやす賃料は、消費者に適切な情報を提供するための表示であり事業者に一時金を推奨するものではありません。
※めやす賃料は、実際の総支払額と異なる場合があります。詳しくは不動産会社にご確認ください。  

周辺環境

  • ダイエー  浦安駅前店:1024m
    ダイエー  浦安駅前店:1024m
  • 西友 浦安店:1461m
    西友 浦安店:1461m
  • セブン-イレブン  浦安北栄1丁目店:1159m
    セブン-イレブン  浦安北栄1丁目店:1159m
  • くすりの福太郎浦安駅前店【調剤薬局】:1370m
    くすりの福太郎浦安駅前店【調剤薬局】:1370m
  • 白洋舎 アリオ葛西店:2906m
    白洋舎 アリオ葛西店:2906m
  • 三菱UFJ銀行 葛西支店:3100m
    三菱UFJ銀行 葛西支店:3100m
コンビニ
ファミリーマート 浦安北栄四丁目店
121m
買物
ダイエー  浦安駅前店
1024m
ドラッグストア
くすりの福太郎浦安駅前店【調剤薬
1370m
ホームセンター
島忠ホームズ 葛西店
2731m
病院
葛西昌医会病院
2459m
公園
総合レクリエーション公園
4255m
銀行
三菱UFJ銀行 葛西支店
3100m

取扱店舗

ピタットハウス四谷店
ピタットハウス四谷店
株式会社リライフ
交通
四ツ谷駅 徒歩3分JR中央総武線・東京メトロ丸ノ内線・東京メトロ南北線四谷三丁目駅 徒歩9分東京メトロ丸ノ内線
営業時間
10:00 〜 18:30
定休日
毎週水曜日(1月〜3月を除く)
お電話 0037-6001-06556 無料
メール お問い合わせ
  • お問い合わせ区分

  • 内見希望日時

    第一希望

    第二希望

  • お名前

    全角
  • ご希望の連絡方法

    メールアドレス

    電話番号

    半角
    半角
  • その他ご希望等

ピタットハウスの個人情報の取り扱いについて

ピタットハウスでは信頼されるサイトを目指して、物件情報の精度向上に努めています。
掲載物件に誤りがある場合は こちら からご連絡ください。現状と異なる場合は、現状を優先させていただきます。
取引態様の欄に「媒介」と表示された物件は「仲介物件」です。ご成約の際には仲介手数料を申し受けます。

生活情報

浦安市の暮らしデータ

浦安市は、かつては漁業を中心とした町でしたが、公有水面の埋め立てによる市域の拡大と計画的なまちづくりにより、東京に隣接した住宅都市として大きく発展しました。また、舞浜地区には、テーマパークやホテル、商業施設からなる東京ディズニーリゾートが立地し、ベイエリアの魅力のある町として発展しています。

基本データ

市区役所所在地 浦安市猫実1-1-1
公式ホームページURL https://www.city.urayasu.lg.jp/
総人口 171,362人
人口増減率(2015年/2020年) 104.5%
浦安市の生活情報を詳しくみる

地域のおすすめ情報ブログ

一覧を見る

浦安駅近隣の駅から探す

浦安市の近隣エリアから探す

FAQ

  • A. 浦安市北栄マンション(AJN4673799_4)の内見は、見学予約でお問い合わせいただくか、直接四谷店(0037-6001-06556)までご連絡ください。
  • A. 可能です。浦安市北栄マンション(AJN4673799_4)周辺の情報は、ピタットハウスの地域情報ブログ「街ピタ」住みたい街の暮らしデータをご活用ください。
  • A. 浦安市北栄マンション(AJN4673799_4)の費用は、こちらよりお問い合わせいただくか、直接四谷店(0037-6001-06556)までご連絡ください。
  • A. はい、可能です。賃貸希望物件リクエストをご利用ください。浦安市北栄マンション(AJN4673799_4)に似た物件も合わせてご紹介させていただきます。