前へ
次へ
前へ
次へ
マンション
即入居可

静岡泉町エンブルコート(905)

9.5 万円
共益費 6,000
19万円
9.5万円
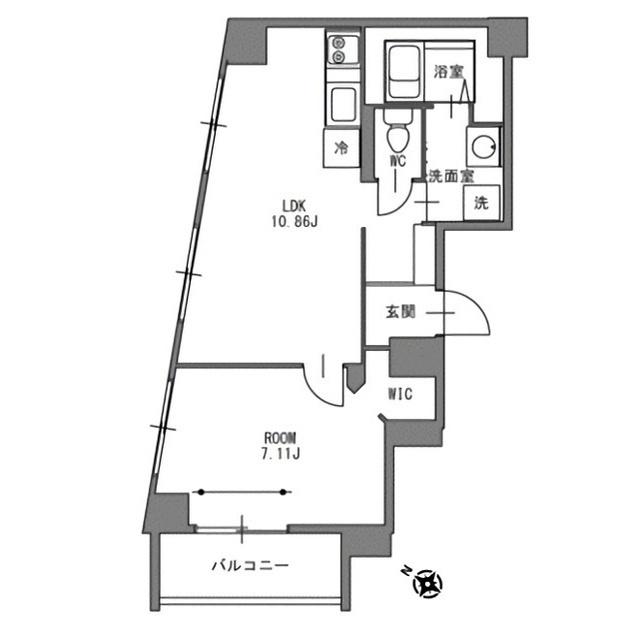
間取り
1R
専有面積
41.02㎡
所在階
9階建ての9階
向き
南東
  • アイコン: 住所 静岡県静岡市駿河区泉町
  • アイコン: 交通 JR東海道本線 「静岡駅」 徒歩7分 / 静岡鉄道静岡清水線 「新静岡駅」 徒歩16分
簡単無料
アイコン: お電話 0037-6001-01693
IP電話ご利用のお客様 : 054-272-1111
ピタットハウス
静岡田町店
point!
JR静岡駅徒歩約8分。フルリノベーション物件。
お気軽にお問い合わせください!
簡単無料
お気軽にお問い合わせください!
物件情報・周辺環境・契約手続きについてなどお気軽にお問い合わせください。

設備・条件

建物・立地
  • 角部屋
  • エレベータ
  • 敷地内駐車場
  • 駐輪場
  • 都市ガス
  • 公営水道
通信
  • BSアンテナ
  • CSアンテナ
  • その他インターネット
セキュリティ
  • TVモニター付きインターホン
部屋設備
  • バルコニー
  • 室内洗濯機置場
  • 下駄箱
  • ウォークインクローゼット
  • 室内物干し
冷暖房
  • エアコン
キッチン
  • システムキッチン
  • ガスコンロ
バス・トイレ
  • バス・トイレ別
  • 洗髪洗面化粧台
  • 独立洗面台
  • 温水洗浄便座
  • シャワー
  • トイレ

物件概要

物件種別

部屋種別 マンション
建物名称 静岡泉町エンブルコート(905)
所在地 静岡県静岡市駿河区泉町 MAP
築年月 1980年1月 階数 9階建ての9階
建物構造 鉄骨鉄筋コンクリート造 総戸数 48戸
間取り 1R(洋17.14帖) 専有面積 41.02㎡
向き 南東 バルコニー面積 -
その他 -

費用

賃料 9.5万円 初期費用の確認をする 初期費用の確認をする 共益費 6,000円
礼金 9.5万円 敷金 19万円
保証金 - 償却金 -
その他一時金 -
その他月額費用 -
住宅保険 要加入(2年)
保証会社 必須/管理会社指定保証会社
保証会社補足 管理会社指定の保証会社に加入して頂きます。
更新料 - 更新事務手数料 -

契約条件

貸家契約区分 普通賃貸借 契約期間 2年
入居可能日 即可 空室状況を確認をする 空室状況を確認をする 引渡時期相談内容 -
フリーレント -
クレジットカード決済 -

駐車場

駐車場 有り 月額22,000円 駐車場について質問する 駐車場について質問する
駐車場契約形態 -
駐車場備考 -
バイク置き場 -
駐輪場 -

備考

その他 敷地内駐車場7台有(22,000円税込・空位置要確認) 保険加入必須 退去時室内クリーニング費 鍵交換一式有 1年未満の解約は違約金有 保証会社利用必須
関連リンク 360度パノラマツアー(現況と異なる場合現況優先)
取引態様 媒介 管理コード 1192081
情報登録(更新)日 2026年3月8日 次回更新予定日 2026年4月24日
備考 めやす賃料:

めやす賃料とは賃料、共益費・管理費、敷引金、更新料を含み、賃料等条件の改定がないものと仮定して4年間賃借した場合(定期借家の場合は契約期間)の1ヶ月当たりの金額です。

※敷引金は、敷金の償却、保証金の償却など、預かった金額から必ず引くものをいいます。
※めやす賃料は、消費者に適切な情報を提供するための表示であり事業者に一時金を推奨するものではありません。
※めやす賃料は、実際の総支払額と異なる場合があります。詳しくは不動産会社にご確認ください。  

周辺環境

  • しずてつストア宮本町店:450m
    しずてつストア宮本町店:450m
  • 静岡銀行駅南支店:550m
    静岡銀行駅南支店:550m
  • ヤマダ電機静岡店:500m
    ヤマダ電機静岡店:500m
  • 静岡市立中田小学校:900m
    静岡市立中田小学校:900m
  • 静岡市立大里中学校:2200m
    静岡市立大里中学校:2200m
買物
しずてつストア宮本町店
450m
銀行
静岡銀行駅南支店
550m
小学校
静岡市立中田小学校
900m
中学校
静岡市立大里中学校
2200m

取扱店舗

ピタットハウス静岡田町店
ピタットハウス静岡田町店
株式会社第一不動産
交通
JR東海道本線静岡駅より徒歩29分
営業時間
10:00 〜 18:00
定休日
毎週水曜日・第二第四日曜日・GW休業(4/26-5/6)
  • 駐車場あり
お電話 0037-6001-01693 無料
メール お問い合わせ
  • お問い合わせ区分

  • 内見希望日時

    第一希望

    第二希望

  • お名前

    全角
  • ご希望の連絡方法

    メールアドレス

    電話番号

    半角
    半角
  • その他ご希望等

ピタットハウスの個人情報の取り扱いについて

ピタットハウスでは信頼されるサイトを目指して、物件情報の精度向上に努めています。
掲載物件に誤りがある場合は こちら からご連絡ください。現状と異なる場合は、現状を優先させていただきます。
取引態様の欄に「媒介」と表示された物件は「仲介物件」です。ご成約の際には仲介手数料を申し受けます。

生活情報

静岡市の暮らしデータ

静岡市は、温暖な気候に恵まれ、北は南アルプスから南は駿河湾に至るまで、豊かな自然環境を有しながら、古くから今川氏や大御所時代の徳川家康公の城下町として、独自の文化や産業を育み、日本の中枢都市として発展を続けてきました。特に「お茶」や「桜えび」、「プラスチックモデル」などの多様な産業や、国際貿易の拠点である清水港での交易は、静岡市の経済において重要な役割を担っています。また、登呂遺跡、久能山東照宮などの歴史的遺跡・建造物は、静岡市のみならず日本の大切な財産です。

基本データ

市区役所所在地 静岡市葵区追手町5-1
公式ホームページURL https://www.city.shizuoka.lg.jp/
総人口 693,389人
人口増減率(2015年/2020年) 98.4%
静岡市の生活情報を詳しくみる

地域のおすすめ情報ブログ

一覧を見る

静岡駅近隣の駅から探す

静岡市駿河区の近隣エリアから探す

FAQ

  • A. 静岡泉町エンブルコート(AUA1192081_32)の内見は、見学予約でお問い合わせいただくか、直接静岡田町店(0037-6001-01693)までご連絡ください。
  • A. 可能です。静岡泉町エンブルコート(AUA1192081_32)周辺の情報は、ピタットハウスの地域情報ブログ「街ピタ」住みたい街の暮らしデータをご活用ください。
  • A. 静岡泉町エンブルコート(AUA1192081_32)の費用は、こちらよりお問い合わせいただくか、直接静岡田町店(0037-6001-01693)までご連絡ください。
  • A. はい、可能です。賃貸希望物件リクエストをご利用ください。静岡泉町エンブルコート(AUA1192081_32)に似た物件も合わせてご紹介させていただきます。