☆デザイナーズ賃貸マンション☆
☆ペット相談可能☆モニター付きインターホン・オートロック・宅配ボックス・充実の設備☆

お気軽にお問い合わせください!
物件情報・周辺環境・契約手続きについてなどお気軽にお問い合わせください。
設備・条件
|
|
---|---|
|
|
|
|
|
|
|
|
|
|
|
|
|
|
物件概要
物件種別
部屋種別 | マンション | ||
---|---|---|---|
建物名称 | 板橋区板橋マンション | ||
所在地 | 東京都板橋区板橋3丁目 | ||
築年月 | 2006年7月 | 階数 | 13階建ての10階 |
建物構造 | 鉄筋コンクリート造 | 総戸数 | 60戸 |
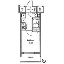
間取り | 1K(洋7.1帖) | 専有面積 | 23.30㎡ |
向き | - | バルコニー面積 | - |
その他 | - |
費用
賃料 |
9.3万円
初期費用の確認をする
|
共益費 | 5,000円 |
---|---|---|---|
礼金 | - | 敷金 | - |
保証金 | - | 償却金 | - |
その他一時金 | - | ||
その他月額費用 | - | ||
住宅保険 | 要加入(2年18000円) | ||
保証会社 | 必須 | ||
保証会社補足 | 初回保証料あり | ||
更新料 | 更新前賃料:1ヶ月 | 更新事務手数料 | - |
契約条件
貸家契約区分 | 普通賃貸借 | 契約期間 | 2年 |
---|---|---|---|
入居可能日 |
相談
空室状況を確認をする
|
引渡時期相談内容 | - |
フリーレント | あり 1ヶ月 | ||
クレジットカード決済 | - |
駐車場
駐車場 |
なし
駐車場について質問する
|
||
---|---|---|---|
駐車場契約形態 | - | ||
駐車場備考 | - | ||
バイク置き場 | 空きなし | ||
駐輪場 | 有り(無料) |
備考
その他 | |||
---|---|---|---|
関連リンク | |||
取引態様 | 媒介 | 管理コード | 2382492 |
情報登録(更新)日 | 2025年10月6日 | 次回更新予定日 | 2025年10月13日 |
周辺環境
-
:400m
取扱店舗

ピタットハウス板橋店
株式会社アイガーホーム
- 交通
- JR埼京線「板橋」駅徒歩1分 都営三田線「新板橋」駅徒歩2分 東武東上線「下板橋」駅徒歩4分
- 営業時間
- 10:00 〜 18:00
- 定休日
- 毎週火曜日・水曜日
ピタットハウスでは信頼されるサイトを目指して、物件情報の精度向上に努めています。
掲載物件に誤りがある場合は
こちら からご連絡ください。現状と異なる場合は、現状を優先させていただきます。
取引態様の欄に「媒介」と表示された物件は「仲介物件」です。ご成約の際には仲介手数料を申し受けます。
生活情報
板橋区の暮らしデータ
板橋区は、1932年の市郡併合により誕生しました。1947年に特別区として東京22区の一つとなり、同年8月に面積の60%が練馬区として分離し、現在に至っています。23区の北西部に位置し、区内には荒川・新河岸川・石神井川の水辺空間が広がり自然林が多く残されています。一方、駅周辺を中心とした近隣型の商店街が形成され利便性が高いです。こうした環境から定住性のある都市として成熟し、地域住民のふれあいも活発です。
基本データ
市区役所所在地 | 板橋区板橋2-66-1 |
---|---|
公式ホームページURL | https://www.city.itabashi.tokyo.jp/ |
総人口 | 584,483人 |
人口増減率(2015年/2020年) | 104.0% |
地域のおすすめ情報ブログ
一覧を見る
-
駅近・セキュリティ充実 レユシール弥生グループ650店舗のネットワークでお客様のお部屋探しをサポートする方南町唯一の大手不動産会社ピタットハウス方南町店です。東武東上...続きを読む
-
セキュリティ充実・駅近 女性にも安心!グループ650店舗のネットワークでお客様のお部屋探しをサポートする方南町唯一の大手不動産会社ピタットハウス方南町店です。昨日のご...続きを読む
-
オートロックで女性にも安心!駅至近!グループ650店舗のネットワークでお客様のお部屋探しをサポートする方南町唯一の大手不動産会社ピタットハウス方南町店です。本日は、...続きを読む
-
新生活に。新築駅近の賃貸マンション!グループ650店舗のネットワークでお客様のお部屋探しをサポートする方南町唯一の大手不動産会社ピタットハウス方南町店です。新築で駅...続きを読む
板橋区役所前駅近隣の駅から探す
板橋区の近隣エリアから探す
FAQ
-
A. 板橋区板橋マンション(CF2382492_8)の内見は、見学予約でお問い合わせいただくか、直接板橋店(0037-6001-02585)までご連絡ください。
-
A. 可能です。板橋区板橋マンション(CF2382492_8)周辺の情報は、ピタットハウスの地域情報ブログ「街ピタ」や住みたい街の暮らしデータをご活用ください。
-
A. 板橋区板橋マンション(CF2382492_8)の費用は、こちらよりお問い合わせいただくか、直接板橋店(0037-6001-02585)までご連絡ください。
-
A. はい、可能です。賃貸希望物件リクエストをご利用ください。板橋区板橋マンション(CF2382492_8)に似た物件も合わせてご紹介させていただきます。