駐車場1台無料。積水ハウス施工物件。お家賃はお安く、且つ広さも有ります!

お気軽にお問い合わせください!
物件情報・周辺環境・契約手続きについてなどお気軽にお問い合わせください。
設備・条件
|
|
---|---|
|
|
|
|
|
|
|
|
物件概要
物件種別
部屋種別 | アパート | ||
---|---|---|---|
建物名称 | グリーンハイツ高砂 | ||
所在地 | 兵庫県高砂市曽根町 MAP | ||
築年月 | 1994年10月 | 階数 | 2階建ての1階 |
建物構造 | 軽量鉄骨造 | 総戸数 | - |
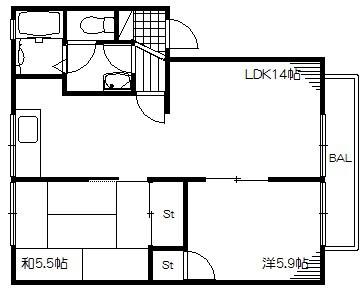
間取り | 2LDK(和5.5帖 LDK14帖 洋5.9帖) | 専有面積 | 54.81㎡ |
向き | 東 | バルコニー面積 | - |
その他 | - |
費用
賃料 |
4.4万円
初期費用の確認をする
|
共益費 | 3,000円 |
---|---|---|---|
礼金 | - | 敷金 | - |
保証金 | - | 償却金 | - |
その他一時金 | - | ||
その他月額費用 | - | ||
住宅保険 | 要加入(2年22000円) | ||
保証会社 | 必須 | ||
保証会社補足 | 加入要 (株)K−NET 初回賃料総額の50% 年間更新料12000円 | ||
更新料 | 更新前賃料:0.5ヶ月 | 更新事務手数料 | - |
契約条件
貸家契約区分 | 普通賃貸借 | 契約期間 | 2年 |
---|---|---|---|
入居可能日 |
即可
空室状況を確認をする
|
引渡時期相談内容 | - |
フリーレント | - | ||
クレジットカード決済 | - |
駐車場
駐車場 |
なし
駐車場について質問する
|
||
---|---|---|---|
駐車場契約形態 | - | ||
駐車場備考 | - | ||
バイク置き場 | - | ||
駐輪場 | - |
備考
その他 | 鍵交換代(契約時):16500円 クリーニング費用(契約時):33000円 抗菌施工費(初回):17600円 | ||
---|---|---|---|
関連リンク | |||
取引態様 | 媒介 | 管理コード | 2950281 |
情報登録(更新)日 | 2025年10月8日 | 次回更新予定日 | 2025年10月15日 |
周辺環境
-
セブンイレブン 高砂曽根町店:1032m
-
Maxvalu(マックスバリュ) 梅井店:1164m
-
高砂市立曽根小学校:601m
-
高砂市立松陽中学校:1348m
-
兵庫県立松陽高校:716m
-
私立近大姫路大学:2973m
- コンビニ
-
セブンイレブン 高砂曽根町店1032m
- 買物
-
Maxvalu(マックスバリュ1164m
- 小学校
-
高砂市立曽根小学校601m
- 中学校
-
高砂市立松陽中学校1348m
- 高校
-
兵庫県立松陽高校716m
取扱店舗

ピタットハウス加古川店
株式会社ライフクリエイト
- 交通
- JR加古川駅・山陽電鉄尾上の松駅まで送迎します。かこバス・別府ルート<松風ギャラリー前>より徒歩2分
- 営業時間
- 10:00 〜 18:30
- 定休日
- 毎週水曜日・夏季休暇(8月13日〜8月15日)
ピタットハウスでは信頼されるサイトを目指して、物件情報の精度向上に努めています。
掲載物件に誤りがある場合は
こちら からご連絡ください。現状と異なる場合は、現状を優先させていただきます。
取引態様の欄に「媒介」と表示された物件は「仲介物件」です。ご成約の際には仲介手数料を申し受けます。
生活情報
高砂市の暮らしデータ
高砂市は、1954年に高砂町・荒井村・伊保村・曽根村が合併して市制施行されました。1956年阿弥陀村・米田町の一部を、1957年北浜村を編入し現在に至っています。1988年には、その市名からブライダル都市宣言を行いました。2024年7月1日には、市制施行70周年を迎えました。
基本データ
市区役所所在地 | 高砂市荒井町千鳥1-1-1 |
---|---|
公式ホームページURL | https://www.city.takasago.lg.jp/ |
総人口 | 87,722人 |
人口増減率(2015年/2020年) | 96.4% |
山陽曽根駅近隣の駅から探す
高砂市の近隣エリアから探す
FAQ
-
A. グリーンハイツ高砂(CN2950281_5)の内見は、見学予約でお問い合わせいただくか、直接加古川店(0037-6001-05482)までご連絡ください。
-
A. 可能です。グリーンハイツ高砂(CN2950281_5)周辺の情報は、ピタットハウスの地域情報ブログ「街ピタ」や住みたい街の暮らしデータをご活用ください。
-
A. グリーンハイツ高砂(CN2950281_5)の費用は、こちらよりお問い合わせいただくか、直接加古川店(0037-6001-05482)までご連絡ください。
-
A. はい、可能です。賃貸希望物件リクエストをご利用ください。グリーンハイツ高砂(CN2950281_5)に似た物件も合わせてご紹介させていただきます。