前へ
次へ
前へ
次へ
マンション

エルスタンザ白金(301)

27.2 万円
共益費 15,000
27.2万円
-
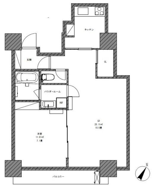
間取り
1LDK
専有面積
56.46㎡
所在階
14階建ての3階
向き
南東
  • アイコン: 住所 東京都港区白金台4丁目
  • アイコン: 交通 都営三田線 「白金台駅」 徒歩2分 / JR山手線 「目黒駅」 徒歩17分 / 東急目黒線 「目黒駅」 徒歩17分
簡単無料
アイコン: お電話 0037-6001-07674
IP電話ご利用のお客様 : 03-6276-9920
ピタットハウス
阿佐ヶ谷店
お気軽にお問い合わせください!
簡単無料
お気軽にお問い合わせください!
物件情報・周辺環境・契約手続きについてなどお気軽にお問い合わせください。

設備・条件

建物・立地
  • エレベータ
  • 宅配ボックス
  • 敷地内ごみ置き場
  • 常時ゴミ出し可能
通信
  • インターネット対応
  • BSアンテナ
  • CSアンテナ
セキュリティ
  • オートロック
部屋設備
  • フローリング
  • バルコニー
  • 室内洗濯機置場
  • ウォークインクロゼット
冷暖房
  • エアコン
キッチン
  • システムキッチン
  • IHコンロ
バス・トイレ
  • バス・トイレ別
  • 浴室乾燥機
  • 追い焚き風呂
特徴
  • ピアノ相談可
  • 事務所利用不可
  • フリーレント1ヶ月

物件概要

物件種別

部屋種別 マンション
建物名称 エルスタンザ白金(301)
所在地 東京都港区白金台4丁目 MAP
築年月 2007年8月 階数 14階建ての3階
建物構造 鉄骨鉄筋コンクリート造 総戸数 -
間取り 1LDK 専有面積 56.46㎡
向き 南東 バルコニー面積 5.00㎡
その他 管理形態:巡回管理 

費用

賃料 27.2万円 初期費用の確認をする 初期費用の確認をする 共益費 15,000円
礼金 - 敷金 27.2万円
保証金 - 償却金 -
その他一時金 室内清掃費:86948円 / 鍵交換費:22000円
その他月額費用 -
住宅保険 要加入
保証会社 必須
保証会社補足 初回保証委託料(最低15,000円):月額賃料等の50%、 2年目以降:10,000円/年
更新料 更新後賃料:1ヶ月 更新事務手数料 -

契約条件

貸家契約区分 普通賃貸借 契約期間 2年
入居可能日 2025年11月19日予定 空室状況を確認をする 空室状況を確認をする 引渡時期相談内容 -
フリーレント あり 1ヶ月
クレジットカード決済 -

駐車場

駐車場 なし 駐車場について質問する 駐車場について質問する
駐車場契約形態 -
駐車場備考 -
バイク置き場 -
駐輪場 -

備考

その他
関連リンク
取引態様 媒介 管理コード 3570910
情報登録(更新)日 2025年10月24日 次回更新予定日 2025年11月1日
備考 めやす賃料:

めやす賃料とは賃料、共益費・管理費、敷引金、更新料を含み、賃料等条件の改定がないものと仮定して4年間賃借した場合(定期借家の場合は契約期間)の1ヶ月当たりの金額です。

※敷引金は、敷金の償却、保証金の償却など、預かった金額から必ず引くものをいいます。
※めやす賃料は、消費者に適切な情報を提供するための表示であり事業者に一時金を推奨するものではありません。
※めやす賃料は、実際の総支払額と異なる場合があります。詳しくは不動産会社にご確認ください。  

取扱店舗

ピタットハウス阿佐ヶ谷店
ピタットハウス阿佐ヶ谷店
株式会社東洋リーベスト
交通
JR中央線「阿佐ヶ谷駅」南口徒歩1分ロータリーに面した駅直結の店舗です。
営業時間
10:00 〜 19:00
定休日
毎週火・水曜日・1月から3月は毎日営業・夏季休業8/12から8/20まで
  • キッズスペースあり
お電話 0037-6001-07674 無料
メール お問い合わせ
  • お問い合わせ区分

  • 内見希望日時

    第一希望

    第二希望

  • お名前

    全角
  • ご希望の連絡方法

    メールアドレス

    電話番号

    半角
    半角
  • その他ご希望等

ピタットハウスの個人情報の取り扱いについて

ピタットハウスでは信頼されるサイトを目指して、物件情報の精度向上に努めています。
掲載物件に誤りがある場合は こちら からご連絡ください。現状と異なる場合は、現状を優先させていただきます。
取引態様の欄に「媒介」と表示された物件は「仲介物件」です。ご成約の際には仲介手数料を申し受けます。

その他の取扱店舗

不動産会社毎に募集条件等が異なる場合があります。詳細は各店の物件詳細ページにてご確認ください。
交通
JR山手線「新宿」駅徒歩6分都営大江戸線「新宿西口」駅徒歩2分
営業時間
09:30 〜 18:30
定休日
毎週水曜日・2月・3月は無休、夏季休暇無し・年末年始
お電話 0037-6001-05237 無料
交通
JR総武線 亀戸駅
営業時間
10:00 〜 18:00
定休日
毎週水曜日、木曜日・GW休業・夏季休業・年末年始休業・冬季休業:12/28(日)〜1/3(土)
お電話 0037-6001-02650 無料
交通
JR中央線 『武蔵境駅』 南口より 徒歩30秒 駐車場有 
営業時間
10:00 〜 19:00
定休日
毎週水曜日・夏季休業・8/12から8/20まで
  • 近隣駐車場あり/キッズスペースあり
お電話 0037-6001-08163 無料
交通
東急目黒線・西小山駅より徒歩3分、「にこま通り商店街」の中にあります。
営業時間
10:00 〜 19:00
定休日
毎週火曜日・水曜日 ・夏季休業8月13日〜20日
お電話 0037-6001-09056 無料

生活情報

港区の暮らしデータ

港区は、1947年3月15日に旧芝、麻布、赤坂の3区が統合され誕生しました。東京都のほぼ南東部に位置し、北西一帯の高台地と、南東の東京湾に面した低地および芝浦海浜の埋め立て地からなっています。高台地は秩父山麓に端を発している武蔵野台地の末端で、これらの台地は小さな突起状の丘陵となっているため、東京23区の中で最も起伏に富んだ地形をもっています。

基本データ

市区役所所在地 港区芝公園1-5-25
公式ホームページURL https://www.city.minato.tokyo.jp/
総人口 260,486人
人口増減率(2015年/2020年) 107.1%
港区の生活情報を詳しくみる

地域のおすすめ情報ブログ

一覧を見る

白金台駅近隣の駅から探す

港区の近隣エリアから探す

FAQ

  • A. エルスタンザ白金(GC3570910_170)の内見は、見学予約でお問い合わせいただくか、直接阿佐ヶ谷店(0037-6001-07674)までご連絡ください。
  • A. 可能です。エルスタンザ白金(GC3570910_170)周辺の情報は、ピタットハウスの地域情報ブログ「街ピタ」住みたい街の暮らしデータをご活用ください。
  • A. エルスタンザ白金(GC3570910_170)の費用は、こちらよりお問い合わせいただくか、直接阿佐ヶ谷店(0037-6001-07674)までご連絡ください。
  • A. はい、可能です。賃貸希望物件リクエストをご利用ください。エルスタンザ白金(GC3570910_170)に似た物件も合わせてご紹介させていただきます。