前へ
次へ
前へ
次へ
マンション

Opus residence Meguro Senzoku(106)

31.7 万円
共益費 15,000
31.7万円
-
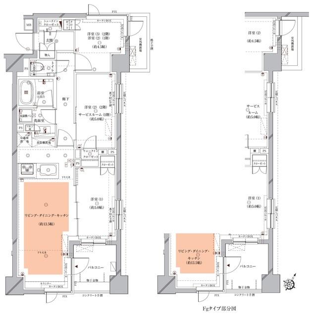
間取り
2SLDK
専有面積
63.24㎡
所在階
7階建ての1階
向き
南東
  • アイコン: 住所 東京都大田区北千束2丁目
  • アイコン: 交通 東急目黒線 「洗足駅」 徒歩5分 / 東急大井町線 「北千束駅」 徒歩5分 / 東急目黒線 「大岡山駅」 徒歩12分
簡単無料
アイコン: お電話 0037-6001-07674
IP電話ご利用のお客様 : 03-6276-9920
ピタットハウス
阿佐ヶ谷店
お気軽にお問い合わせください!
簡単無料
お気軽にお問い合わせください!
物件情報・周辺環境・契約手続きについてなどお気軽にお問い合わせください。

設備・条件

建物・立地
  • エレベータ
  • 宅配ボックス
  • 敷地内ごみ置き場
  • 常時ゴミ出し可能
  • バイク置場
通信
  • インターネット対応
  • CATV
  • BSアンテナ
  • CSアンテナ
セキュリティ
  • オートロック
  • モニタ付オートロック
部屋設備
  • フローリング
  • バルコニー
  • 室内洗濯機置場
  • ウォークインクローゼット
冷暖房
  • エアコン
  • 床暖房
キッチン
  • システムキッチン
  • 食器乾燥機
  • 食器洗浄乾燥機
  • グリル
バス・トイレ
  • バス・トイレ別
  • 浴室乾燥機
  • 追い焚き風呂
  • 独立洗面台
特徴
  • ペット相談可
  • 事務所利用不可

物件概要

物件種別

部屋種別 マンション
建物名称 Opus residence Meguro Senzoku(106)
所在地 東京都大田区北千束2丁目 MAP
築年月 2020年2月 階数 7階建ての1階
建物構造 鉄筋コンクリート造 総戸数 -
間取り 2SLDK 専有面積 63.24㎡
向き 南東 バルコニー面積 5.00㎡
その他 管理形態:巡回管理 

費用

賃料 31.7万円 初期費用の確認をする 初期費用の確認をする 共益費 15,000円
礼金 - 敷金 31.7万円
保証金 - 償却金 -
その他一時金 室内清掃費:97389円 / 鍵交換費:44000円
その他月額費用 -
住宅保険 要加入
保証会社 必須
保証会社補足 初回保証委託料(最低15,000円):月額賃料等の50%、 2年目以降:10,000円/年
更新料 - 更新事務手数料 -

契約条件

貸家契約区分 定期賃貸借 契約期間 2年
入居可能日 2026年5月17日予定 空室状況を確認をする 空室状況を確認をする 引渡時期相談内容 -
フリーレント -
クレジットカード決済 -

駐車場

駐車場 なし 駐車場について質問する 駐車場について質問する
駐車場契約形態 -
駐車場備考 -
バイク置き場 -
駐輪場 -

備考

その他
関連リンク
取引態様 媒介 管理コード 3662846
情報登録(更新)日 2026年5月8日 次回更新予定日 2026年5月16日
備考 めやす賃料:

めやす賃料とは賃料、共益費・管理費、敷引金、更新料を含み、賃料等条件の改定がないものと仮定して4年間賃借した場合(定期借家の場合は契約期間)の1ヶ月当たりの金額です。

※敷引金は、敷金の償却、保証金の償却など、預かった金額から必ず引くものをいいます。
※めやす賃料は、消費者に適切な情報を提供するための表示であり事業者に一時金を推奨するものではありません。
※めやす賃料は、実際の総支払額と異なる場合があります。詳しくは不動産会社にご確認ください。  

取扱店舗

ピタットハウス阿佐ヶ谷店
ピタットハウス阿佐ヶ谷店
株式会社東洋リーベスト
交通
JR中央線「阿佐ヶ谷駅」南口徒歩1分ロータリーに面した駅直結の店舗です。
営業時間
10:00 〜 19:00
定休日
毎週火・水曜日・1月から3月は毎日営業・冬期休業12/28から1/4まで
  • キッズスペースあり
お電話 0037-6001-07674 無料
メール お問い合わせ
  • お問い合わせ区分

  • 内見希望日時

    第一希望

    第二希望

  • お名前

    全角
  • ご希望の連絡方法

    メールアドレス

    電話番号

    半角
    半角
  • その他ご希望等

ピタットハウスの個人情報の取り扱いについて

ピタットハウスでは信頼されるサイトを目指して、物件情報の精度向上に努めています。
掲載物件に誤りがある場合は こちら からご連絡ください。現状と異なる場合は、現状を優先させていただきます。
取引態様の欄に「媒介」と表示された物件は「仲介物件」です。ご成約の際には仲介手数料を申し受けます。

その他の取扱店舗

不動産会社毎に募集条件等が異なる場合があります。詳細は各店の物件詳細ページにてご確認ください。
交通
JR線「新宿」駅西口より徒歩6分、都営大江戸線「新宿西口」駅D5出口より徒歩2分
営業時間
09:30 〜 18:30
定休日
毎週水曜日・GW休暇、5月2日(土)〜5月6日(水)・2月・3月は無休、夏季休暇無し
お電話 0037-6001-05237 無料
交通
東横線「都立大学駅」の改札を出て左へ。1Fにラーメン屋さんがあるビルの3Fです。
営業時間
10:00 〜 18:30
定休日
毎週火曜日・水曜日
  • 近隣駐車場あり
お電話 0037-6001-02068 無料
交通
東急目黒線・西小山駅より徒歩3分、「にこま通り商店街」の中にあります。
営業時間
10:00 〜 19:00
定休日
毎週火曜日・水曜日 ・4月29日から5月6日までGW休暇
お電話 0037-6001-09056 無料
交通
JR中央線・東京メトロ東西線中野駅南口より徒歩1分
営業時間
10:00 〜 18:00
定休日
毎週水曜日・GW休業:5/2〜5/6
お電話 0037-6001-06881 無料
交通
JR中央線 『武蔵境駅』 南口より 徒歩30秒 駐車場有 
営業時間
10:00 〜 19:00
定休日
毎週水曜日・冬期休業・12/28から1/4まで
  • 近隣駐車場あり/キッズスペースあり
お電話 0037-6001-08163 無料
交通
JR山手線『新橋駅』日比谷口より徒歩4分・都営三田線『内幸町駅』A1出口より徒歩1分
営業時間
10:00 〜 19:00
定休日
定休日 土日祝・GW、夏季休暇、年末年始休暇・※土日祝ご来店希望は要相談
お電話 0037-6001-03162 無料
交通
東京メトロ東西線 木場駅 4A出口 徒歩1分
営業時間
10:00 〜 17:00
定休日
毎週土日・祝祭日
  • 近隣駐車場あり
お電話 0037-6001-05750 無料
交通
京浜急行本線『京急蒲田駅』西口出口より、アーケード商店街を徒歩2分
営業時間
10:00 〜 18:45
定休日
毎週水曜日・冬季休業(12/27〜1/4)
お電話 0037-6001-09782 無料
交通
①京浜急行線『京急蒲田』駅徒歩15分 ②京急空港線「大鳥居」駅徒歩15分 ・京急バス 森が崎行き「北糀谷」バス停目の前 
営業時間
10:00 〜 20:00
定休日
毎週水曜日・年末年始休暇:12月30日〜1月8日まで・下記休暇:8月10日〜8月16日
  • 駐車場あり
お電話 0037-6001-08853 無料

生活情報

大田区の暮らしデータ

大田区は、1947年3月15日に当時の大森区と蒲田区が合併して誕生しました。東京都の東南部に位置し、海と川に臨み、昔から人が住みやすく、交通の要路として栄えてきました。江戸期は農漁村で、海岸の大森・糀谷・羽田地区では1963年頃まで海苔の養殖が盛んに行われました。大正期以降、中小工場が進出し、低地部は住宅や工場が密集する商業・工業地域を形成し、京浜工業地帯の一部となっています。また、台地部は、田園調布、雪谷、久が原など比較的緑の多い住宅地です。臨海部は埋め立て地で、羽田空港をはじめトラックターミナルや市場など物流施設のほか、工場団地、野鳥公園など都市機能施設が整備されています。

基本データ

市区役所所在地 大田区蒲田5-13-14
公式ホームページURL https://www.city.ota.tokyo.jp/
総人口 748,081人
人口増減率(2015年/2020年) 104.3%
大田区の生活情報を詳しくみる

地域のおすすめ情報ブログ

一覧を見る

洗足駅近隣の駅から探す

大田区の近隣エリアから探す

FAQ

  • A. Opus residence Meguro Senzoku(GC3662846_105)の内見は、見学予約でお問い合わせいただくか、直接阿佐ヶ谷店(0037-6001-07674)までご連絡ください。
  • A. 可能です。Opus residence Meguro Senzoku(GC3662846_105)周辺の情報は、ピタットハウスの地域情報ブログ「街ピタ」住みたい街の暮らしデータをご活用ください。
  • A. Opus residence Meguro Senzoku(GC3662846_105)の費用は、こちらよりお問い合わせいただくか、直接阿佐ヶ谷店(0037-6001-07674)までご連絡ください。
  • A. はい、可能です。賃貸希望物件リクエストをご利用ください。Opus residence Meguro Senzoku(GC3662846_105)に似た物件も合わせてご紹介させていただきます。