礼金0ヶ月※常設違約金1年未満解約賃料・共益費1ヶ月

お気軽にお問い合わせください!
物件情報・周辺環境・契約手続きについてなどお気軽にお問い合わせください。
設備・条件
|
|
---|---|
|
|
|
|
|
|
|
|
|
|
物件概要
物件種別
部屋種別 | マンション | ||
---|---|---|---|
建物名称 | エスタート大井町フォレスト(604) | ||
所在地 | 東京都品川区東大井3丁目 | ||
築年月 | 2021年10月 | 階数 | 地下2階・地上4階建ての4階 |
建物構造 | 鉄筋コンクリート造 | 総戸数 | 66戸 |
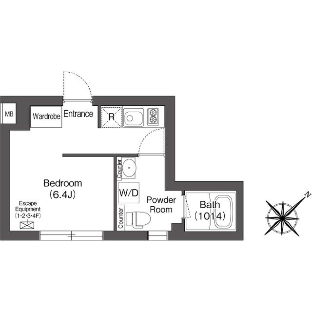
間取り | 1R(洋6.4帖) | 専有面積 | 22.40㎡ |
向き | 南東 | バルコニー面積 | - |
その他 | - |
費用
賃料 |
12.6万円
初期費用の確認をする
|
共益費 | 10,000円 |
---|---|---|---|
礼金 | - | 敷金 | 12.6万円 |
保証金 | - | 償却金 | - |
その他一時金 | 鍵交換代:22000円 / 清掃費:38500円 / エアコン清掃費:11000円 | ||
その他月額費用 | - | ||
住宅保険 | 要加入(2年16550円) | ||
保証会社 | 必須 | ||
保証会社補足 | エポスカード(RP) 保証料:賃料等の50%(最低2万)、月額保証料:賃料等の1%(更新料無) | ||
更新料 | 更新後賃料:1ヶ月 | 更新事務手数料 | - |
契約条件
貸家契約区分 | 普通賃貸借 | 契約期間 | 2年 |
---|---|---|---|
入居可能日 |
2025年11月10日予定
空室状況を確認をする
|
引渡時期相談内容 | - |
フリーレント | - | ||
クレジットカード決済 | - |
駐車場
駐車場 |
なし
駐車場について質問する
|
||
---|---|---|---|
駐車場契約形態 | - | ||
駐車場備考 | - | ||
バイク置き場 | - | ||
駐輪場 | - |
備考
その他 | 指定保証会社利用必須※一部法人契約除く、敷金積増1ヶ月 常設違約金:1年未満解約時賃料・共益費1ヶ月 ペット飼育:敷金2ヶ月(使用細則等遵守)エアコン清掃費・室内清掃費は退去時 楽器演奏不可、SOHO利用不可 鍵交換代:22,000円(税込) | ||
---|---|---|---|
関連リンク | |||
取引態様 | 媒介 | 管理コード | 3944069 |
情報登録(更新)日 | 2025年10月3日 | 次回更新予定日 | 2025年10月9日 |
取扱店舗

ピタットハウス武蔵境店
株式会社東洋リーベスト
- 交通
- JR中央線 『武蔵境駅』 南口より 徒歩30秒 駐車場有
- 営業時間
- 10:00 〜 19:00
- 定休日
- 毎週水曜日・夏季休業・8/12から8/20まで
ピタットハウスでは信頼されるサイトを目指して、物件情報の精度向上に努めています。
掲載物件に誤りがある場合は
こちら からご連絡ください。現状と異なる場合は、現状を優先させていただきます。
取引態様の欄に「媒介」と表示された物件は「仲介物件」です。ご成約の際には仲介手数料を申し受けます。
その他の取扱店舗
不動産会社毎に募集条件等が異なる場合があります。詳細は各店の物件詳細ページにてご確認ください。- 交通
- JR山手線「新宿」駅徒歩6分都営大江戸線「新宿西口」駅徒歩2分
- 営業時間
- 09:30 〜 18:30
- 定休日
- 毎週水曜日・2月・3月は無休、夏季休暇無し・年末年始
- 交通
- 京急本線平和島駅より徒歩2分。改札を出て左側、第一京浜沿いを150mほど品川方面へお進みください。1階に当店がございます。
- 営業時間
- 10:00 〜 18:00
- 定休日
- 水曜日(月末、祝日を除く)・10/28(火) 社内研修
- 交通
- 京浜急行本線『京急蒲田駅』西口出口より、アーケード商店街を徒歩2分
- 営業時間
- 10:00 〜 18:45
- 定休日
- 毎週水曜日・夏季休業(8/13〜8/15)
- 交通
- JR総武線 亀戸駅
- 営業時間
- 10:00 〜 18:00
- 定休日
- 毎週水曜日、木曜日・GW休業・夏季休業・年末年始休業・冬季休業:12/28(日)〜1/3(土)
- 交通
- 潮見駅西口から徒歩2分の立地にございます。
- 営業時間
- 10:00 〜 19:00
- 定休日
- 毎週水曜日・年末年始・GW・夏季休業日
- 交通
- JR中央線「阿佐ヶ谷駅」南口徒歩1分ロータリーに面した駅直結の店舗です。
- 営業時間
- 10:00 〜 19:00
- 定休日
- 毎週火・水曜日・1月から3月は毎日営業・夏季休業8/12から8/20まで
- 交通
- つくばエクスプレス浅草駅A2出口を出まして左隣のビルの1階に店舗ございます。
- 営業時間
- 10:00 〜 18:00
- 定休日
- 毎週水曜日・日曜日・夏季休業・8/10~8/17
生活情報
品川区の暮らしデータ
品川区は、東京都の南東部に位置し、東京湾に面する臨海部と山の手に連なる台地から形成され、面積は22.85km2で23区では平均的な広さです。人口は約40万人余りで、1964年をピークに減少していましたが、1998年以降は増加に転じています。
基本データ
市区役所所在地 | 品川区広町2-1-36 |
---|---|
公式ホームページURL | https://www.city.shinagawa.tokyo.jp/ |
総人口 | 422,488人 |
人口増減率(2015年/2020年) | 109.2% |
地域のおすすめ情報ブログ
一覧を見る
-
心あたたまるパン屋さん本日は、東急池上線・荏原中延駅のすぐ目の前にあるパン屋さんをご紹介します。惣菜パンから菓子パンまで、バラエティ豊かにそろった、ど...続きを読む
-
日本考古学発祥の地こんにちは!ピタットハウス蒲田店です。今回は、歴史好きの方にもファミリーにもおすすめのスポット「大森貝塚庭園」をご紹介します。大...続きを読む
-
坂本龍馬の息吹こんにちは!ピタットハウス蒲田店です。本日は立会川にある坂本龍馬像についてお話します♪薩長同盟や大政奉還の実現に尽力し、幕末の志...続きを読む
-
変わらぬ味のおでん屋さんこんにちは、五反田店の武田です。今回紹介するのは、戸越駅から徒歩6分の場所にお店を構える、「後藤かまぼこ店」です。創業は65年!...続きを読む
大井町駅近隣の駅から探す
品川区の近隣エリアから探す
FAQ
-
A. エスタート大井町フォレスト(GC3944069_374)の内見は、見学予約でお問い合わせいただくか、直接武蔵境店(0037-6001-08163)までご連絡ください。
-
A. 可能です。エスタート大井町フォレスト(GC3944069_374)周辺の情報は、ピタットハウスの地域情報ブログ「街ピタ」や住みたい街の暮らしデータをご活用ください。
-
A. エスタート大井町フォレスト(GC3944069_374)の費用は、こちらよりお問い合わせいただくか、直接武蔵境店(0037-6001-08163)までご連絡ください。
-
A. はい、可能です。賃貸希望物件リクエストをご利用ください。エスタート大井町フォレスト(GC3944069_374)に似た物件も合わせてご紹介させていただきます。