前へ
次へ
前へ
次へ
マンション

ルジェンテ武蔵小山(0802)

21 万円
共益費 10,000
21万円
42万円
間取り
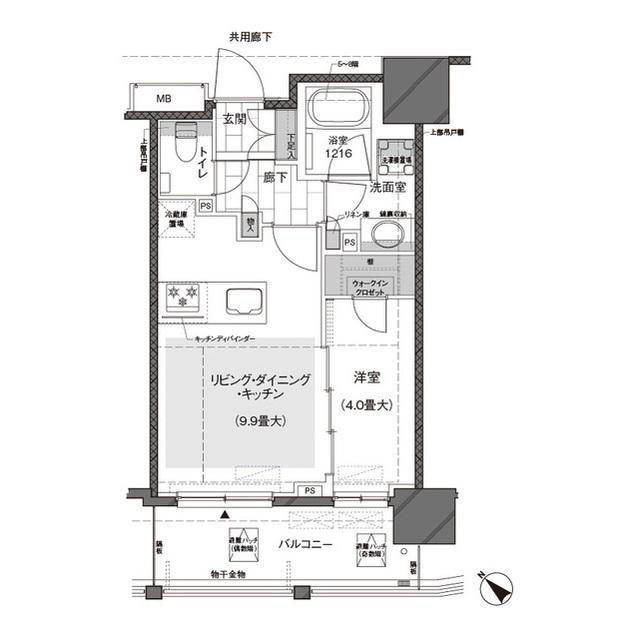
1LDK
専有面積
36.08㎡
所在階
14階建ての8階
向き
南西
  • アイコン: 住所 東京都品川区荏原3丁目
  • アイコン: 交通 東急目黒線 「武蔵小山駅」 徒歩8分 / 東急池上線 「戸越銀座駅」 徒歩11分
簡単無料
アイコン: お電話 0037-6001-06213
IP電話ご利用のお客様 : 03-5710-8105
ピタットハウス
蒲田東口店
point!
■東急目黒線 武蔵小山駅 徒歩8分
お気軽にお問い合わせください!
簡単無料
お気軽にお問い合わせください!
物件情報・周辺環境・契約手続きについてなどお気軽にお問い合わせください。

設備・条件

建物・立地
  • エレベータ
  • 宅配ボックス
  • 駐輪場
  • 常時ゴミ出し可能
  • バイク置場
通信
  • インターネット無料
  • CATV
  • 光回線
セキュリティ
  • オートロック
  • 防犯カメラ
部屋設備
  • ウォークインクロゼット
冷暖房
  • エアコン
  • 床暖房
キッチン
  • システムキッチン
バス・トイレ
  • バス・トイレ別
  • 独立洗面台

物件概要

物件種別

部屋種別 マンション
建物名称 ルジェンテ武蔵小山(0802)
所在地 東京都品川区荏原3丁目
築年月 2018年10月 階数 14階建ての8階
建物構造 鉄筋コンクリート造 総戸数 59戸
間取り 1LDK(LDK9.9帖 洋4帖) 専有面積 36.08㎡
向き 南西 バルコニー面積 -
その他 -

費用

賃料 21万円 初期費用の確認をする 初期費用の確認をする 共益費 10,000円
礼金 42万円 敷金 21万円
保証金 - 償却金 -
その他一時金 清掃費:55440円 / エアコン清掃費:16500円
その他月額費用 -
住宅保険 要加入(2年16550円)
保証会社 必須
保証会社補足 レジデンシャルパートナーズ 保証料:賃料等の50%(最低2万)、月額保証・事務手数料:賃料等の1%(更新料無)
更新料 更新後賃料:1ヶ月 更新事務手数料 -

契約条件

貸家契約区分 普通賃貸借 契約期間 2年
入居可能日 2025年12月20日予定 空室状況を確認をする 空室状況を確認をする 引渡時期相談内容 -
フリーレント -
クレジットカード決済 -

駐車場

駐車場 なし 駐車場について質問する 駐車場について質問する
駐車場契約形態 -
駐車場備考 -
バイク置き場 -
駐輪場 -

備考

その他
関連リンク
取引態様 媒介 管理コード 3699857
情報登録(更新)日 2025年11月17日 次回更新予定日 2025年11月23日
備考 めやす賃料:

めやす賃料とは賃料、共益費・管理費、敷引金、更新料を含み、賃料等条件の改定がないものと仮定して4年間賃借した場合(定期借家の場合は契約期間)の1ヶ月当たりの金額です。

※敷引金は、敷金の償却、保証金の償却など、預かった金額から必ず引くものをいいます。
※めやす賃料は、消費者に適切な情報を提供するための表示であり事業者に一時金を推奨するものではありません。
※めやす賃料は、実際の総支払額と異なる場合があります。詳しくは不動産会社にご確認ください。  

周辺環境

  • 大田区千束特別出張所:2192m
    大田区千束特別出張所:2192m
  • 荏原警察署:731m
    荏原警察署:731m
  • 金杉原南緑地公園:947m
    金杉原南緑地公園:947m
  • 阪急百貨店大井食品館:3391m
    阪急百貨店大井食品館:3391m
  • 私立星薬科大学:712m
    私立星薬科大学:712m
コンビニ
ローソン品川荏原三丁目店
63m
買物
成城石井武蔵小山店
199m
ショッピング施設
阪急百貨店大井食品館
3391m
ドラッグストア
オーエスドラッグ武蔵小山店
129m
ホームセンター
マツヤデンキ武蔵小山店
161m
病院
康済会介護医療院
590m
役所
大田区千束特別出張所
2192m
郵便局
品川平塚橋郵便局
360m
図書館
星薬科大学図書館
721m
交番
荏原警察署
731m
公園
金杉原南緑地公園
947m
銀行
東京シティ信用金庫小山支店
189m
幼稚園
サニーエンジェル保育園武蔵小山
61m
小学校
品川区立小山小学校
476m
中学校
品川区立荏原平塚学園
488m
高校
東京都立小山台高校
638m

取扱店舗

ピタットハウス蒲田東口店
ピタットハウス蒲田東口店
株式会社マイハウス
交通
JR京浜東北線 『蒲田駅』 東口出口よりバス通り沿いを3分
営業時間
10:00 〜 18:45
定休日
毎週水曜日・夏季休業(8/13〜8/15)
お電話 0037-6001-06213 無料
メール お問い合わせ
  • お問い合わせ区分

  • 内見希望日時

    第一希望

    第二希望

  • お名前

    全角
  • ご希望の連絡方法

    メールアドレス

    電話番号

    半角
    半角
  • その他ご希望等

ピタットハウスの個人情報の取り扱いについて

ピタットハウスでは信頼されるサイトを目指して、物件情報の精度向上に努めています。
掲載物件に誤りがある場合は こちら からご連絡ください。現状と異なる場合は、現状を優先させていただきます。
取引態様の欄に「媒介」と表示された物件は「仲介物件」です。ご成約の際には仲介手数料を申し受けます。

その他の取扱店舗

不動産会社毎に募集条件等が異なる場合があります。詳細は各店の物件詳細ページにてご確認ください。
交通
JR山手線「新宿」駅徒歩6分都営大江戸線「新宿西口」駅徒歩2分
営業時間
09:30 〜 18:30
定休日
毎週水曜日・2月・3月は無休、夏季休暇無し・年末年始
お電話 0037-6001-05237 無料
交通
京浜急行本線『京急蒲田駅』西口出口より、アーケード商店街を徒歩2分
営業時間
10:00 〜 18:45
定休日
毎週水曜日・夏季休業(8/13〜8/15)
お電話 0037-6001-09782 無料
交通
東急目黒線・西小山駅より徒歩3分、「にこま通り商店街」の中にあります。
営業時間
10:00 〜 19:00
定休日
毎週火曜日・水曜日 ・夏季休業8月13日〜20日
お電話 0037-6001-09056 無料
交通
JR中央線 『武蔵境駅』 南口より 徒歩30秒 駐車場有 
営業時間
10:00 〜 19:00
定休日
毎週水曜日・夏季休業・8/12から8/20まで
  • 近隣駐車場あり/キッズスペースあり
お電話 0037-6001-08163 無料
交通
JR総武線 亀戸駅
営業時間
10:00 〜 18:00
定休日
毎週水曜日、木曜日・GW休業・夏季休業・年末年始休業・冬季休業:12/28(日)〜1/3(土)
お電話 0037-6001-02650 無料
交通
東横線「都立大学駅」の改札を出て左へ。1Fにラーメン屋さんがあるビルの3Fです。
営業時間
10:00 〜 18:30
定休日
毎週火曜日・水曜日
  • 近隣駐車場あり
お電話 0037-6001-02068 無料

生活情報

品川区の暮らしデータ

品川区は、東京都の南東部に位置し、東京湾に面する臨海部と山の手に連なる台地から形成され、面積は22.85km2で23区では平均的な広さです。人口は約40万人余りで、1964年をピークに減少していましたが、1998年以降は増加に転じています。

基本データ

市区役所所在地 品川区広町2-1-36
公式ホームページURL https://www.city.shinagawa.tokyo.jp/
総人口 422,488人
人口増減率(2015年/2020年) 109.2%
品川区の生活情報を詳しくみる

地域のおすすめ情報ブログ

一覧を見る

武蔵小山駅近隣の駅から探す

品川区の近隣エリアから探す

FAQ

  • A. ルジェンテ武蔵小山(HE3699857_18)の内見は、見学予約でお問い合わせいただくか、直接蒲田東口店(0037-6001-06213)までご連絡ください。
  • A. 可能です。ルジェンテ武蔵小山(HE3699857_18)周辺の情報は、ピタットハウスの地域情報ブログ「街ピタ」住みたい街の暮らしデータをご活用ください。
  • A. ルジェンテ武蔵小山(HE3699857_18)の費用は、こちらよりお問い合わせいただくか、直接蒲田東口店(0037-6001-06213)までご連絡ください。
  • A. はい、可能です。賃貸希望物件リクエストをご利用ください。ルジェンテ武蔵小山(HE3699857_18)に似た物件も合わせてご紹介させていただきます。