
お気軽にお問い合わせください!
物件情報・周辺環境・契約手続きについてなどお気軽にお問い合わせください。
設備・条件
|
|
---|---|
|
|
|
|
|
|
|
|
|
|
|
|
|
|
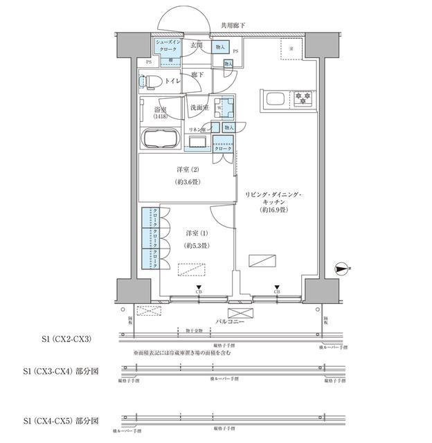
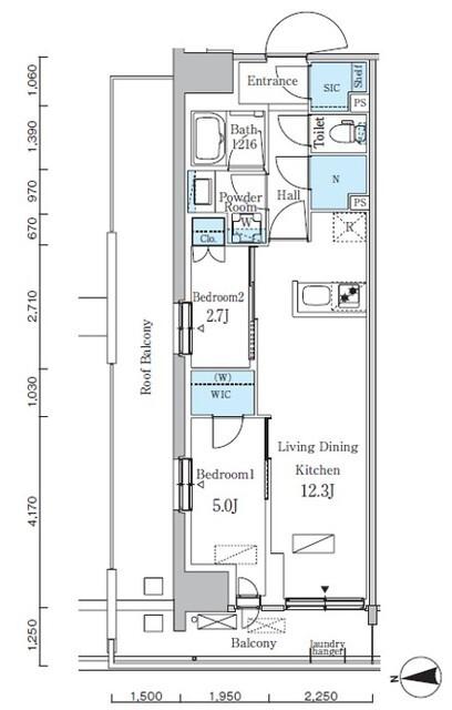
物件概要
物件種別
部屋種別 | マンション | ||
---|---|---|---|
建物名称 | パークアクシス品川天王洲アイル(615) | ||
所在地 | 東京都品川区東品川3丁目 MAP | ||
築年月 | 2025年3月 | 階数 | 14階建ての6階 |
建物構造 | 鉄筋コンクリート造 | 総戸数 | - |
間取り | 1DK | 専有面積 | 29.35㎡ |
向き | 西 | バルコニー面積 | 4.00㎡ |
その他 | 管理形態:日勤管理 |
費用
賃料 |
14.8万円
初期費用の確認をする
|
共益費 | 12,000円 |
---|---|---|---|
礼金 | - | 敷金 | 14.8万円 |
保証金 | - | 償却金 | - |
その他一時金 | 室内清掃費:55000円 | ||
その他月額費用 | 口座振替事務手数料:110円/月 | ||
住宅保険 | 要加入 | ||
保証会社 | 必須 | ||
保証会社補足 | 初回保証委託料(最低20,000円):月額賃料等の50%、 2年目以降:9,600円/年 | ||
更新料 | - | 更新事務手数料 | - |
契約条件
貸家契約区分 | 定期賃貸借 | 契約期間 | 2年 |
---|---|---|---|
入居可能日 |
相談
空室状況を確認をする
|
引渡時期相談内容 | - |
フリーレント | - | ||
クレジットカード決済 | - |
駐車場
駐車場 |
なし
駐車場について質問する
|
||
---|---|---|---|
駐車場契約形態 | - | ||
駐車場備考 | - | ||
バイク置き場 | - | ||
駐輪場 | - |
備考
その他 | |||
---|---|---|---|
関連リンク | |||
取引態様 | 媒介 | 管理コード | 4540322 |
情報登録(更新)日 | 2025年10月18日 | 次回更新予定日 | 2025年10月26日 |
取扱店舗

ピタットハウス都立大学店
カーサ・プラスワン株式会社
- 交通
- 東横線「都立大学駅」の改札を出て左へ。1Fにラーメン屋さんがあるビルの3Fです。
- 営業時間
- 10:00 〜 18:30
- 定休日
- 毎週火曜日・水曜日
ピタットハウスでは信頼されるサイトを目指して、物件情報の精度向上に努めています。
掲載物件に誤りがある場合は
こちら からご連絡ください。現状と異なる場合は、現状を優先させていただきます。
取引態様の欄に「媒介」と表示された物件は「仲介物件」です。ご成約の際には仲介手数料を申し受けます。
その他の取扱店舗
不動産会社毎に募集条件等が異なる場合があります。詳細は各店の物件詳細ページにてご確認ください。- 交通
- JR山手線「新宿」駅徒歩6分都営大江戸線「新宿西口」駅徒歩2分
- 営業時間
- 09:30 〜 18:30
- 定休日
- 毎週水曜日・2月・3月は無休、夏季休暇無し・年末年始
- 交通
- 都営大江戸線 勝どき駅『A3b出口』より豊海町方面へ徒歩3分・都営大江戸線、月島駅『10番出口』より勝どき方面へ徒歩12分。
- 営業時間
- 10:00 〜 17:00
- 定休日
- 毎週水曜日・木曜日
- 交通
- JR中央線 『武蔵境駅』 南口より 徒歩30秒 駐車場有
- 営業時間
- 10:00 〜 19:00
- 定休日
- 毎週水曜日・夏季休業・8/12から8/20まで
生活情報
品川区の暮らしデータ
品川区は、東京都の南東部に位置し、東京湾に面する臨海部と山の手に連なる台地から形成され、面積は22.85km2で23区では平均的な広さです。人口は約40万人余りで、1964年をピークに減少していましたが、1998年以降は増加に転じています。
基本データ
市区役所所在地 | 品川区広町2-1-36 |
---|---|
公式ホームページURL | https://www.city.shinagawa.tokyo.jp/ |
総人口 | 422,488人 |
人口増減率(2015年/2020年) | 109.2% |
地域のおすすめ情報ブログ
一覧を見る
-
心あたたまるパン屋さん本日は、東急池上線・荏原中延駅のすぐ目の前にあるパン屋さんをご紹介します。惣菜パンから菓子パンまで、バラエティ豊かにそろった、ど...続きを読む
-
日本考古学発祥の地こんにちは!ピタットハウス蒲田店です。今回は、歴史好きの方にもファミリーにもおすすめのスポット「大森貝塚庭園」をご紹介します。大...続きを読む
-
坂本龍馬の息吹こんにちは!ピタットハウス蒲田店です。本日は立会川にある坂本龍馬像についてお話します♪薩長同盟や大政奉還の実現に尽力し、幕末の志...続きを読む
-
変わらぬ味のおでん屋さんこんにちは、五反田店の武田です。今回紹介するのは、戸越駅から徒歩6分の場所にお店を構える、「後藤かまぼこ店」です。創業は65年!...続きを読む
天王洲アイル駅近隣の駅から探す
品川区の近隣エリアから探す
FAQ
-
A. パークアクシス品川天王洲アイル(HM4540322_969)の内見は、見学予約でお問い合わせいただくか、直接都立大学店(0037-6001-02068)までご連絡ください。
-
A. 可能です。パークアクシス品川天王洲アイル(HM4540322_969)周辺の情報は、ピタットハウスの地域情報ブログ「街ピタ」や住みたい街の暮らしデータをご活用ください。
-
A. パークアクシス品川天王洲アイル(HM4540322_969)の費用は、こちらよりお問い合わせいただくか、直接都立大学店(0037-6001-02068)までご連絡ください。
-
A. はい、可能です。賃貸希望物件リクエストをご利用ください。パークアクシス品川天王洲アイル(HM4540322_969)に似た物件も合わせてご紹介させていただきます。