前へ
次へ
前へ
次へ
マンション
即入居可

鷺沼デントヒルズ

NEW
18 万円
共益費 10,000
18万円
18万円
間取り
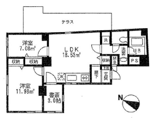
2SLDK
専有面積
58.49㎡
所在階
地下1階・地上5階建ての5階
向き
-
  • アイコン: 住所 神奈川県川崎市宮前区小台1丁目
  • アイコン: 交通 東急田園都市線 「鷺沼駅」 徒歩5分 / 東急田園都市線 「宮前平駅」 徒歩13分 / 東急田園都市線 「たまプラーザ駅」 徒歩25分
簡単無料
アイコン: お電話 0037-6001-09445
IP電話ご利用のお客様 : 045-264-3311
ピタットハウス
センター南店
point!
鷺沼駅徒歩5分の2SLDKおすすめ貸マンションです!
2011年05月築!58.49㎡の便利な東急田園都市線沿線!
お気軽にお問い合わせください!
簡単無料
お気軽にお問い合わせください!
物件情報・周辺環境・契約手続きについてなどお気軽にお問い合わせください。

設備・条件

建物・立地
  • エレベータ
  • 都市ガス
通信
  • CATV
  • CATVインターネット
セキュリティ
  • オートロック
  • TVモニター付きインターホン
  • ピッキング対策キー
  • ダブルロックドア
  • 防犯カメラ
部屋設備
  • 室内洗濯機置場
  • 下駄箱
  • クローゼット
  • 眺望良好
冷暖房
  • エアコン
キッチン
  • IHコンロ
バス・トイレ
  • バス・トイレ別
  • 追い焚き風呂
  • 独立洗面台
  • 温水洗浄便座
  • シャワー
  • 洗面所
  • トイレ
特徴
  • オンライン内見可
  • IT重説対応物件
  • 二人入居可
  • 保証金不要
  • 保証人不要
  • 初期費用カード決済可

物件概要

物件種別

部屋種別 マンション
建物名称 鷺沼デントヒルズ
所在地 神奈川県川崎市宮前区小台1丁目 MAP
築年月 2011年5月 階数 地下1階・地上5階建ての5階
建物構造 鉄筋コンクリート造 総戸数 -
間取り 2SLDK 専有面積 58.49㎡
向き - バルコニー面積 -
その他 -

費用

賃料 18万円 初期費用の確認をする 初期費用の確認をする 共益費 10,000円
礼金 18万円 敷金 18万円
保証金 - 償却金 -
その他一時金 鍵交換代等:35200円
その他月額費用 -
住宅保険 要加入(2年21800円)
保証会社 必須
保証会社補足 加入要 ※初回保証料:賃料等の0.5ヶ月、継続保証料:800円/月、口座振替手数料:440円/月
更新料 更新後賃料:1ヶ月 更新事務手数料 -

契約条件

貸家契約区分 普通賃貸借 契約期間 2年
入居可能日 即可 空室状況を確認をする 空室状況を確認をする 引渡時期相談内容 -
フリーレント -
クレジットカード決済 初期費用クレジット決済可

駐車場

駐車場 なし 駐車場について質問する 駐車場について質問する
駐車場契約形態 -
駐車場備考 -
バイク置き場 なし
駐輪場 なし

備考

その他 オートロック設備完備で安心生活をしっかりサポート! 当店なら各カード会社で初期費用クレジット決済可能!
関連リンク
取引態様 媒介 管理コード 4731147
情報登録(更新)日 2025年12月13日 次回更新予定日 2025年12月23日
備考 めやす賃料:

めやす賃料とは賃料、共益費・管理費、敷引金、更新料を含み、賃料等条件の改定がないものと仮定して4年間賃借した場合(定期借家の場合は契約期間)の1ヶ月当たりの金額です。

※敷引金は、敷金の償却、保証金の償却など、預かった金額から必ず引くものをいいます。
※めやす賃料は、消費者に適切な情報を提供するための表示であり事業者に一時金を推奨するものではありません。
※めやす賃料は、実際の総支払額と異なる場合があります。詳しくは不動産会社にご確認ください。  

周辺環境

  • 川崎市立土橋小学校:879m
    川崎市立土橋小学校:879m
  • 川崎市立有馬中学校:1341m
    川崎市立有馬中学校:1341m
  • さぎ沼なごみ保育園:496m
    さぎ沼なごみ保育園:496m
  • 川崎市宮前区役所:1607m
    川崎市宮前区役所:1607m
  • 川崎鷺沼郵便局:432m
    川崎鷺沼郵便局:432m
  • 鷺沼公園:978m
    鷺沼公園:978m
  • 東急百貨店たまプラーザ店:1960m
    東急百貨店たまプラーザ店:1960m
ショッピング施設
東急百貨店たまプラーザ店
1960m
役所
川崎市宮前区役所
1607m
郵便局
川崎鷺沼郵便局
432m
公園
鷺沼公園
978m
幼稚園
さぎ沼なごみ保育園
496m
小学校
川崎市立土橋小学校
879m
中学校
川崎市立有馬中学校
1341m

取扱店舗

ピタットハウスセンター南店
ピタットハウスセンター南店
株式会社関東住宅流通
交通
センター南駅 出口1から徒歩約3分センター北駅 出口1から徒歩約16分都筑ふれあいの丘駅 出口1から徒歩約17分
営業時間
09:30 〜 18:30
定休日
毎週火曜日・水曜日・夏季休暇(8/12~8/17)
お電話 0037-6001-09445 無料
メール お問い合わせ
  • お問い合わせ区分

  • 内見希望日時

    第一希望

    第二希望

  • お名前

    全角
  • ご希望の連絡方法

    メールアドレス

    電話番号

    半角
    半角
  • その他ご希望等

ピタットハウスの個人情報の取り扱いについて

ピタットハウスでは信頼されるサイトを目指して、物件情報の精度向上に努めています。
掲載物件に誤りがある場合は こちら からご連絡ください。現状と異なる場合は、現状を優先させていただきます。
取引態様の欄に「媒介」と表示された物件は「仲介物件」です。ご成約の際には仲介手数料を申し受けます。

その他の取扱店舗

不動産会社毎に募集条件等が異なる場合があります。詳細は各店の物件詳細ページにてご確認ください。
交通
JR京浜東北根岸線 桜木町駅 徒歩2分みなとみらい線 みなとみらい駅 徒歩14分みなとみらい線 馬車道駅 徒歩7分
営業時間
09:30 〜 18:30
定休日
毎週水曜日・夏季休暇(8/13~8/17)
お電話 0037-6001-05692 無料

生活情報

川崎市の暮らしデータ

川崎市は、自然豊かな多摩川に面し、市内を縦断するJR南武線に加え5つの私鉄が横断する利便性の高い人口増加が続くまちです。首都圏有数の広さを誇る生田緑地には「藤子・F・不二雄ミュージアム」、川崎駅前には世界有数の音響を誇る「ミューザ川崎シンフォニーホール」、さらに市内に2つの音楽大学や日本初の映画の専科大学が立地するとともに、スポーツではJリーグ川崎フロンターレ等の数多くのトップチームが活躍しています。

基本データ

市区役所所在地 川崎市川崎区宮本町1
公式ホームページURL https://www.city.kawasaki.jp/
総人口 1,538,262人
人口増減率(2015年/2020年) 104.3%
川崎市の生活情報を詳しくみる

地域のおすすめ情報ブログ

一覧を見る

鷺沼駅近隣の駅から探す

川崎市宮前区の近隣エリアから探す

FAQ

  • A. 鷺沼デントヒルズ(JQ4731147_2)の内見は、見学予約でお問い合わせいただくか、直接センター南店(0037-6001-09445)までご連絡ください。
  • A. 可能です。鷺沼デントヒルズ(JQ4731147_2)周辺の情報は、ピタットハウスの地域情報ブログ「街ピタ」住みたい街の暮らしデータをご活用ください。
  • A. 鷺沼デントヒルズ(JQ4731147_2)の費用は、こちらよりお問い合わせいただくか、直接センター南店(0037-6001-09445)までご連絡ください。
  • A. はい、可能です。賃貸希望物件リクエストをご利用ください。鷺沼デントヒルズ(JQ4731147_2)に似た物件も合わせてご紹介させていただきます。