前へ
次へ
前へ
次へ
マンション
即入居可

コンフォリア・リヴ谷町四丁目(1001)

28 万円
共益費 20,000
-
28万円
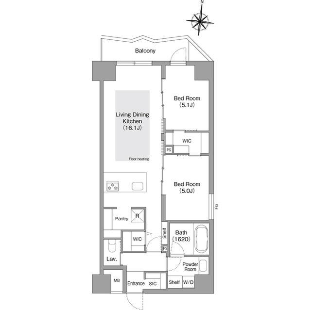
間取り
2LDK
専有面積
63.88㎡
所在階
11階建ての10階
向き
  • アイコン: 住所 大阪府大阪市中央区北新町2−10
  • アイコン: 交通 地下鉄谷町線 「谷町四丁目駅」 徒歩3分 / 地下鉄谷町線 「天満橋駅」 徒歩6分 / 京阪電鉄本線 「天満橋駅」 徒歩9分
簡単無料
アイコン: お電話 0037-6001-05157
IP電話ご利用のお客様 : 06-4399-6811
ピタットハウス
駒川中野店
point!
新築 ペット(小型犬OR猫2匹)飼育可 ネットWi-Fi無料
食器洗浄機 ウォークインパントリー 床暖房 ガス式乾燥機(乾太くん)設置 24時間ゴミ出し可
お気軽にお問い合わせください!
簡単無料
お気軽にお問い合わせください!
物件情報・周辺環境・契約手続きについてなどお気軽にお問い合わせください。

設備・条件

建物・立地
  • 角部屋
  • 宅配ボックス
  • 常時ゴミ出し可能
セキュリティ
  • オートロック
  • ピッキング対策キー
  • 防犯カメラ
  • 電子キー
部屋設備
  • フローリング
  • 室内洗濯機置場
  • 可動間仕切り
  • 24時間換気システム
  • 防音サッシ
冷暖房
  • 床暖房
キッチン
  • システムキッチン
  • グリル
バス・トイレ
  • バス・トイレ別
  • 浴室乾燥機
  • 追い焚き風呂
  • 温水洗浄便座
  • TV付浴室
特徴
  • 二人入居相談

物件概要

物件種別

部屋種別 マンション
建物名称 コンフォリア・リヴ谷町四丁目(1001)
所在地 大阪府大阪市中央区北新町2−10 MAP
築年月 2025年3月 階数 11階建ての10階
建物構造 鉄筋コンクリート造 総戸数 21戸
間取り 2LDK(LDK16.1帖 洋5.1帖 洋5帖) 専有面積 63.88㎡
向き バルコニー面積 -
その他 -

費用

賃料 28万円 初期費用の確認をする 初期費用の確認をする 共益費 20,000円
礼金 28万円 敷金 ペット積み増し(1ヶ月)
保証金 - 償却金 -
その他一時金 鍵交換代:22000円 / 駐輪場ステッカー:440円 / 清掃費:49500円 / エアコン清掃費:26400円
その他月額費用 その他:1650円/月
住宅保険 要加入(2年16550円)
保証会社 必須/エポスカード(RP)
保証会社補足 保証料:賃料等の50%(最低2万)、月額保証料:賃料等の1%(更新料無)
更新料 30,000円 更新事務手数料 -
その他 本物件は、「仲介物件」です。ご成約の際には仲介手数料を申し受けます。

契約条件

貸家契約区分 普通賃貸借 契約期間 2年
入居可能日 即可 空室状況を確認をする 空室状況を確認をする 引渡時期相談内容 -
フリーレント -
クレジットカード決済 -

駐車場

駐車場 なし 駐車場について質問する 駐車場について質問する
駐車場契約形態 -
駐車場備考 -
バイク置き場 -
駐輪場 -

備考

その他 ■保証会社利用必須(一部法人で保証会社免除の場合敷金1ヶ月積増)■契約時デジタルキー発行費22000円■駐輪場1区画無料で利用可■ペット(小型犬OR猫2匹)可※敷金1ヶ月・共益費3千円積増■短期解約違約金:1年以内の解約は賃料1ヶ月■スマモル賃貸プラン利用必須。電気契約が大阪ガス以外の場合1650円/月(別途ガス使用料)要。その他月額費用1650円は大阪ガス「スマモル賃貸プラン」利用料。※利用必須
関連リンク
取引態様 媒介 管理コード 4731984
情報登録(更新)日 2026年5月14日 次回更新予定日 2026年5月22日
備考 めやす賃料:

めやす賃料とは賃料、共益費・管理費、敷引金、更新料を含み、賃料等条件の改定がないものと仮定して4年間賃借した場合(定期借家の場合は契約期間)の1ヶ月当たりの金額です。

※敷引金は、敷金の償却、保証金の償却など、預かった金額から必ず引くものをいいます。
※めやす賃料は、消費者に適切な情報を提供するための表示であり事業者に一時金を推奨するものではありません。
※めやす賃料は、実際の総支払額と異なる場合があります。詳しくは不動産会社にご確認ください。  

取扱店舗

ピタットハウス駒川中野店
ピタットハウス駒川中野店
株式会社ベルエキップ
交通
地下鉄谷町線駒川中野駅からスロープをくぐって右折、ラブリーモール内をまっすぐ進んで左手K&Mビル1階(駅から徒歩3分です)
営業時間
09:30 〜 18:00
定休日
なし・年末年始(12/27〜1/3)
お電話 0037-6001-05157 無料
メール お問い合わせ
  • お問い合わせ区分

  • 内見希望日時

    第一希望

    第二希望

  • お名前

    全角
  • ご希望の連絡方法

    メールアドレス

    電話番号

    半角
    半角
  • その他ご希望等

ピタットハウスの個人情報の取り扱いについて

ピタットハウスでは信頼されるサイトを目指して、物件情報の精度向上に努めています。
掲載物件に誤りがある場合は こちら からご連絡ください。現状と異なる場合は、現状を優先させていただきます。
取引態様の欄に「媒介」と表示された物件は「仲介物件」です。ご成約の際には仲介手数料を申し受けます。

生活情報

大阪市の暮らしデータ

大阪市は、本州の中心あたりに位置し、1889年に市制が施行されました。現在は人口約280万人(2025年5月1日時点)となり、広さは約225.34km2です。また、水都として知られ、花と緑、歴史と文化、芸術やスポーツなどにふれることができる、人々にとって快適で、魅力あふれるまちです。

基本データ

市区役所所在地 大阪市北区中之島1-3-20
公式ホームページURL https://www.city.osaka.lg.jp/
総人口 2,752,412人
人口増減率(2015年/2020年) 102.3%
大阪市の生活情報を詳しくみる

谷町四丁目駅近隣の駅から探す

大阪市中央区の近隣エリアから探す

FAQ

  • A. コンフォリア・リヴ谷町四丁目(UP4731984_7)の内見は、見学予約でお問い合わせいただくか、直接駒川中野店(0037-6001-05157)までご連絡ください。
  • A. 可能です。コンフォリア・リヴ谷町四丁目(UP4731984_7)周辺の情報は、ピタットハウスの地域情報ブログ「街ピタ」住みたい街の暮らしデータをご活用ください。
  • A. コンフォリア・リヴ谷町四丁目(UP4731984_7)の費用は、こちらよりお問い合わせいただくか、直接駒川中野店(0037-6001-05157)までご連絡ください。
  • A. はい、可能です。賃貸希望物件リクエストをご利用ください。コンフォリア・リヴ谷町四丁目(UP4731984_7)に似た物件も合わせてご紹介させていただきます。