前へ
次へ
前へ
次へ
マンション

コンフォリア・リヴ北浜高麗橋(0302)

11.6 万円
共益費 12,000
-
11.6万円
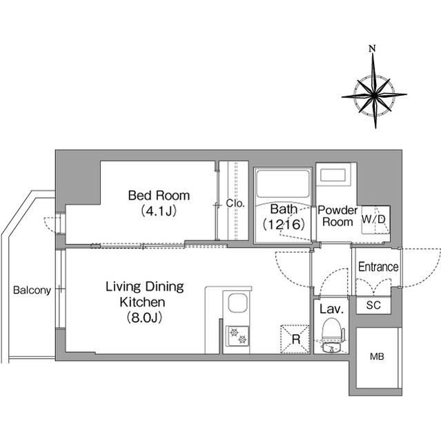
間取り
1DK
専有面積
28.94㎡
所在階
15階建ての3階
向き
西
  • アイコン: 住所 大阪府大阪市中央区高麗橋1丁目3−14
  • アイコン: 交通 地下鉄堺筋線 「北浜駅」 徒歩3分 / 地下鉄御堂筋線 「淀屋橋駅」 徒歩10分 / 地下鉄中央線 「堺筋本町駅」 徒歩10分
簡単無料
アイコン: お電話 0037-6001-05157
IP電話ご利用のお客様 : 06-4399-6811
ピタットハウス
駒川中野店
point!
新築 2026年2月中旬入居開始 専有部にスマートロック導入
ペット(小型犬OR猫1匹)飼育可※2・3階限定 顔認証セキュリティ導入 Wi-Fi無料
お気軽にお問い合わせください!
簡単無料
お気軽にお問い合わせください!
物件情報・周辺環境・契約手続きについてなどお気軽にお問い合わせください。

設備・条件

建物・立地
  • エレベータ
  • 宅配ボックス
  • 常時ゴミ出し可能
セキュリティ
  • オートロック
  • TVモニター付きインターホン
  • 防犯カメラ
  • 電子キー
部屋設備
  • 室内洗濯機置場
  • 下駄箱
  • 24時間換気システム
バス・トイレ
  • バス・トイレ別
  • 浴室乾燥機
  • 温水洗浄便座
特徴
  • 新築

物件概要

物件種別

部屋種別 マンション
建物名称 コンフォリア・リヴ北浜高麗橋(0302)
所在地 大阪府大阪市中央区高麗橋1丁目3−14 MAP
築年月 2026年1月 階数 15階建ての3階
建物構造 鉄筋コンクリート造 総戸数 44戸
間取り 1DK(DK7.9帖 洋3帖) 専有面積 28.94㎡
向き 西 バルコニー面積 -
その他 -

費用

賃料 11.6万円 初期費用の確認をする 初期費用の確認をする 共益費 12,000円
礼金 11.6万円 敷金 (0ヶ月)
保証金 - 償却金 -
その他一時金 駐輪場ステッカー:440円 / 鍵交換代:22000円 / 清掃費:27500円 / エアコン清掃費:8250円
その他月額費用 -
住宅保険 要加入(2年16550円)
保証会社 必須
保証会社補足 保証料:賃料等の50%(最低2万)、月額保証料:賃料等の1%(更新料無)
更新料 30,000円 更新事務手数料 -

契約条件

貸家契約区分 普通賃貸借 契約期間 2年
入居可能日 2026年2月16日予定 空室状況を確認をする 空室状況を確認をする 引渡時期相談内容 -
フリーレント -
クレジットカード決済 -

駐車場

駐車場 なし 駐車場について質問する 駐車場について質問する
駐車場契約形態 -
駐車場備考 -
バイク置き場 -
駐輪場 -

備考

その他 保証会社利用必須(一部法人は保証会社免除相談可) 更新料30,000円 家具家電プラン対応可 大型バイク置き場:月額3,300円・ミニバイク置場:月額1,650円 駐輪代 ラック式下段:月額330円・上段:月額165円、平面:月額330円、駐輪ステッカー代440円 契約時デジタルキー発行費22,000円 ペット飼育2・3F(小型犬または猫1匹まで)の場合、敷金1ヶ月増・共益費3,000円増
関連リンク
取引態様 媒介 管理コード 4732686
情報登録(更新)日 2026年2月2日 次回更新予定日 2026年2月9日
備考 めやす賃料:

めやす賃料とは賃料、共益費・管理費、敷引金、更新料を含み、賃料等条件の改定がないものと仮定して4年間賃借した場合(定期借家の場合は契約期間)の1ヶ月当たりの金額です。

※敷引金は、敷金の償却、保証金の償却など、預かった金額から必ず引くものをいいます。
※めやす賃料は、消費者に適切な情報を提供するための表示であり事業者に一時金を推奨するものではありません。
※めやす賃料は、実際の総支払額と異なる場合があります。詳しくは不動産会社にご確認ください。  

コンフォリア・リヴ北浜高麗橋 の他の空室物件

24
建物の空室物件一覧 次へ

取扱店舗

ピタットハウス駒川中野店
ピタットハウス駒川中野店
株式会社ベルエキップ
交通
地下鉄谷町線駒川中野駅からスロープをくぐって右折、ラブリーモール内をまっすぐ進んで左手K&Mビル1階(駅から徒歩3分です)
営業時間
09:30 〜 18:00
定休日
なし・年末年始(12/27〜1/3)
お電話 0037-6001-05157 無料
メール お問い合わせ
  • お問い合わせ区分

  • 内見希望日時

    第一希望

    第二希望

  • お名前

    全角
  • ご希望の連絡方法

    メールアドレス

    電話番号

    半角
    半角
  • その他ご希望等

ピタットハウスの個人情報の取り扱いについて

ピタットハウスでは信頼されるサイトを目指して、物件情報の精度向上に努めています。
掲載物件に誤りがある場合は こちら からご連絡ください。現状と異なる場合は、現状を優先させていただきます。
取引態様の欄に「媒介」と表示された物件は「仲介物件」です。ご成約の際には仲介手数料を申し受けます。

生活情報

大阪市の暮らしデータ

大阪市は、本州の中心あたりに位置し、1889年に市制が施行されました。現在は人口約280万人(2025年5月1日時点)となり、広さは約225.34km2です。また、水都として知られ、花と緑、歴史と文化、芸術やスポーツなどにふれることができる、人々にとって快適で、魅力あふれるまちです。

基本データ

市区役所所在地 大阪市北区中之島1-3-20
公式ホームページURL https://www.city.osaka.lg.jp/
総人口 2,752,412人
人口増減率(2015年/2020年) 102.3%
大阪市の生活情報を詳しくみる

北浜駅近隣の駅から探す

大阪市中央区の近隣エリアから探す

FAQ

  • A. コンフォリア・リヴ北浜高麗橋(UP4732686_12)の内見は、見学予約でお問い合わせいただくか、直接駒川中野店(0037-6001-05157)までご連絡ください。
  • A. 可能です。コンフォリア・リヴ北浜高麗橋(UP4732686_12)周辺の情報は、ピタットハウスの地域情報ブログ「街ピタ」住みたい街の暮らしデータをご活用ください。
  • A. コンフォリア・リヴ北浜高麗橋(UP4732686_12)の費用は、こちらよりお問い合わせいただくか、直接駒川中野店(0037-6001-05157)までご連絡ください。
  • A. はい、可能です。賃貸希望物件リクエストをご利用ください。コンフォリア・リヴ北浜高麗橋(UP4732686_12)に似た物件も合わせてご紹介させていただきます。