前へ
次へ
前へ
次へ
マンション
即入居可

コンフォリア・リヴ淡路(0902)

NEW
9.1 万円
共益費 12,000
-
-
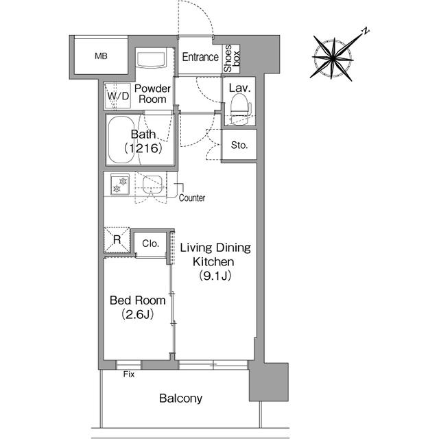
間取り
1DK
専有面積
26.07㎡
所在階
10階建ての9階
向き
南東
  • アイコン: 住所 大阪府大阪市東淀川区菅原5丁目11−10
  • アイコン: 交通 JRおおさか東線 「JR淡路駅」 徒歩1分 / 阪急電鉄京都線 「淡路駅」 徒歩4分
簡単無料
アイコン: お電話 0037-6001-05157
IP電話ご利用のお客様 : 06-4399-6811
ピタットハウス
駒川中野店
point!
新築◆2026年4月16日入居開始◆ネットWi-Fi無料
ペット(小型犬OR猫1匹)飼育可※2〜3階限定◆24時間ゴミ出可◆顔認証セキュリティ導入
お気軽にお問い合わせください!
簡単無料
お気軽にお問い合わせください!
物件情報・周辺環境・契約手続きについてなどお気軽にお問い合わせください。

設備・条件

建物・立地
  • エレベータ
  • 宅配ボックス
  • 常時ゴミ出し可能
セキュリティ
  • オートロック
  • TVモニター付きインターホン
  • 防犯カメラ
  • 電子キー
部屋設備
  • 室内洗濯機置場
  • 下駄箱
  • 24時間換気システム
  • 防音サッシ
バス・トイレ
  • バス・トイレ別
  • 浴室乾燥機
  • 温水洗浄便座
特徴
  • 新築
  • ペット不可

物件概要

物件種別

部屋種別 マンション
建物名称 コンフォリア・リヴ淡路(0902)
所在地 大阪府大阪市東淀川区菅原5丁目11−10 MAP
築年月 2026年4月 階数 10階建ての9階
建物構造 鉄筋コンクリート造 総戸数 55戸
間取り 1DK(DK7.3帖 洋2.6帖) 専有面積 26.07㎡
向き 南東 バルコニー面積 -
その他 -

費用

賃料 9.1万円 初期費用の確認をする 初期費用の確認をする 共益費 12,000円
礼金 - 敷金 (0ヶ月)
保証金 - 償却金 -
その他一時金 駐輪場ステッカー:440円 / 鍵交換代:22000円 / 清掃費:27500円 / エアコン清掃費:13200円
その他月額費用 -
住宅保険 要加入(2年16550円)
保証会社 必須/エポスカード(RP)
保証会社補足 保証料:賃料等の50%(最低2万)、月額保証料:賃料等の1%(更新料無)
更新料 30,000円 更新事務手数料 -

契約条件

貸家契約区分 普通賃貸借 契約期間 2年
入居可能日 即可 空室状況を確認をする 空室状況を確認をする 引渡時期相談内容 -
フリーレント -
クレジットカード決済 -

駐車場

駐車場 なし 駐車場について質問する 駐車場について質問する
駐車場契約形態 -
駐車場備考 -
バイク置き場 -
駐輪場 -

備考

その他 ■保証会社利用必須(一部法人で保証会社利用無しの場合敷金1ヶ月積増)■更新料30,000円■契約時デジタルキー発行費22,000円■礼金0ヶ月短期解約違約金:1年以内の解約は賃料1ヶ月分■法人契約の場合は礼金1ヶ月■駐輪場330円、ステッカー440円■ペット飼育可(小型犬もしくは猫1匹まで)※2-3階限定※敷金1ヶ月・共益費3,000円積増■外国籍の方はGTN利用可(初回保証料100%/月次2%)
関連リンク
取引態様 媒介 管理コード 4740249
情報登録(更新)日 2026年4月17日 次回更新予定日 2026年4月24日
備考 めやす賃料:

めやす賃料とは賃料、共益費・管理費、敷引金、更新料を含み、賃料等条件の改定がないものと仮定して4年間賃借した場合(定期借家の場合は契約期間)の1ヶ月当たりの金額です。

※敷引金は、敷金の償却、保証金の償却など、預かった金額から必ず引くものをいいます。
※めやす賃料は、消費者に適切な情報を提供するための表示であり事業者に一時金を推奨するものではありません。
※めやす賃料は、実際の総支払額と異なる場合があります。詳しくは不動産会社にご確認ください。  

取扱店舗

ピタットハウス駒川中野店
ピタットハウス駒川中野店
株式会社ベルエキップ
交通
地下鉄谷町線駒川中野駅からスロープをくぐって右折、ラブリーモール内をまっすぐ進んで左手K&Mビル1階(駅から徒歩3分です)
営業時間
09:30 〜 18:00
定休日
なし・年末年始(12/27〜1/3)
お電話 0037-6001-05157 無料
メール お問い合わせ
  • お問い合わせ区分

  • 内見希望日時

    第一希望

    第二希望

  • お名前

    全角
  • ご希望の連絡方法

    メールアドレス

    電話番号

    半角
    半角
  • その他ご希望等

ピタットハウスの個人情報の取り扱いについて

ピタットハウスでは信頼されるサイトを目指して、物件情報の精度向上に努めています。
掲載物件に誤りがある場合は こちら からご連絡ください。現状と異なる場合は、現状を優先させていただきます。
取引態様の欄に「媒介」と表示された物件は「仲介物件」です。ご成約の際には仲介手数料を申し受けます。

生活情報

大阪市の暮らしデータ

大阪市は、本州の中心あたりに位置し、1889年に市制が施行されました。現在は人口約280万人(2025年5月1日時点)となり、広さは約225.34km2です。また、水都として知られ、花と緑、歴史と文化、芸術やスポーツなどにふれることができる、人々にとって快適で、魅力あふれるまちです。

基本データ

市区役所所在地 大阪市北区中之島1-3-20
公式ホームページURL https://www.city.osaka.lg.jp/
総人口 2,752,412人
人口増減率(2015年/2020年) 102.3%
大阪市の生活情報を詳しくみる

JR淡路駅近隣の駅から探す

大阪市東淀川区の近隣エリアから探す

FAQ

  • A. コンフォリア・リヴ淡路(UP4740249_28)の内見は、見学予約でお問い合わせいただくか、直接駒川中野店(0037-6001-05157)までご連絡ください。
  • A. 可能です。コンフォリア・リヴ淡路(UP4740249_28)周辺の情報は、ピタットハウスの地域情報ブログ「街ピタ」住みたい街の暮らしデータをご活用ください。
  • A. コンフォリア・リヴ淡路(UP4740249_28)の費用は、こちらよりお問い合わせいただくか、直接駒川中野店(0037-6001-05157)までご連絡ください。
  • A. はい、可能です。賃貸希望物件リクエストをご利用ください。コンフォリア・リヴ淡路(UP4740249_28)に似た物件も合わせてご紹介させていただきます。